該項目位於常州一處高層公寓住宅,使用麵積約為25m²,原始空間是一個大的開間,隻有東側一扇大落地窗戶,用於采光和通風。在公寓建築的前方是正在建設中的商業綜合體,再往前是一片人工湖,在這個極小單元模塊的內部創造出寧靜的氛圍以及實現外部自然的居住體驗是我們的美好願景。
這是委托者的第二居所,閑暇時自己或約朋友來這裏,享受獨處,感受自在與寧靜。
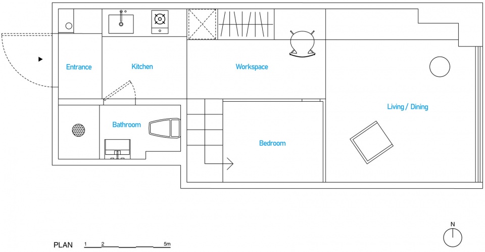
房屋的進深約 8.3m,麵寬為3m,層高僅有3.4m,我們提出 “山梯峽穀 “的概念,在僅有的25m²長方體盒子裏,室內地麵根據等級和功能屬性被劃分出5個不同地勢高度,每個地勢高度對應相適應的功能。入戶玄關為第1個地勢高度,作為落塵區同時解決入戶收納的問題;廚房與衛生間並置過道兩側位於第2個地勢高度;洗衣機、冰箱、衣物收納、工作書桌位於第3個地勢高度;第4個地勢高度是生活起居區,采光和視野最佳;睡眠區則最私密,也是位於最高處為第5個地勢高度。
從入口進入,過道是狹窄的,兩側直立起的高聳的功能家具,讓人感覺仿佛是進入了峽穀,越往裏走,越靠近亮部,空間感覺也就越接近外部,體驗也延伸到了室外。回家就是一場登山之旅,當所有功能落位後,中間形成一道狹長的山穀,山穀的盡頭是開闊明亮的。
雖然每個台階都被賦予了不同的功能,但是這些空間通過開放的平麵與高低錯落的形式緊密地聯係在一起。這種設置增加了使用麵積,抵消了狹小局促的消極氛圍。此外,自然的木質紋理與大麵積的開窗,將空氣與陽光引入室內,形成良好的通風采光,營造出舒適的室內體感環境。我們想在城市中創造出一種室內山居的豐富體驗,這種體驗超越了單純的功能適用性。
我們將所有的功能整合在了一個大空間裏,與其說我們設計了一個25平米的家,還不如說是設計了一個從地板、坐台、桌子、櫃體、床、再到天花板,一個巨大的室內家具。我們希望它具備居住功能以外還能成為一個開放、流動的社交空間,回應屋主作為第二居所的訴求。
根據功能屬性來創造出地形,以沒有邊界為目標,從而孕育出一種開放感,這種開放感似乎比 25 平方米的實際麵積要大得多。這是一個基於生活方式和狹小場地的可能性而建造的大空間。
∇ 平麵布置圖
項目信息
項目名稱:5階之家
項目類型:住宅公寓
項目地址:江蘇常州新北區
設計麵積:25㎡
完成年份:2023年
設計方:MOU建築工社
材料:鬆木膠合板、不鏽鋼、磚
設計團隊:吳狀、付仕玉、陳靜、李逸雯
攝影版權:吳狀


























