本項目位於長沙開福區,建麵50平,層高約4.38米。是長沙臨河天際線的組成部分,也是屋主的第二居所。
我們沒有考慮規整的兩層式空間布局,而希望空間中有完整挑高部分,因為陽光和視野是需要通道的。不管佇立何處,眼前的視角都是通透而明亮的,隨時隨地可以與陽光互動、感受氣流的暖意。
∇ 軸測圖
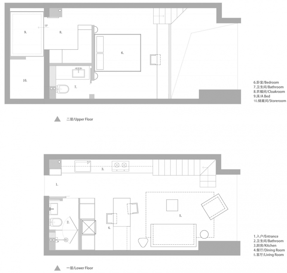
全屋的布局思路是讓兩層空間實現“動靜分離”。底層為“動”區,包含餐廳、廚房、起居室、公衛、洗衣區;上層為“靜”區,包含主臥、書房、衣帽間、主衛、儲藏間、臨時客房。“麻雀雖小,五髒俱全”。
我們將樺木多層板作為家具設計的主要材料,強化空間整體性,營造自然鬆弛的居住感受。瓷磚與牆麵以白色係為主基調,整潔明亮。
西廚櫃與家政櫃以背靠背的方式自然圍合衛浴間的隔牆,閉合成完整的功能環線。
空間中多處用到了鏤空圓孔的元素,如餐桌腿、客廳的小推車、二層的半牆欄杆、衛生間的吊軌門等。
當人仰臥在床上,可以很自然的透過圓孔看到窗外的景色,四季更迭,風景也不盡相同。
二層的半牆中開了四個圓孔,一方麵增加了二層的采光,另一方麵可以作為整體空間的裝飾。桌板固定在牆上,桌板高於圓孔,半牆高於桌板。坐於椅上,視線能夠輕鬆眺望到窗外,辦公、學習成為了幸福指數很高的事情。
主臥床頭背景牆的兩側分別是主衛和衣帽間的入口。
∇ 平麵圖
項目信息
項目名稱:Z住宅
項目類型:住宅室內設計
設計方:畫裏設計
完成時間:2023年
設計主創:湯小糖
項目地址:長沙市
建築麵積:50㎡
攝影版權:立明
合作方:施工:印施工
材料:瓷磚、樺木多層板、乳膠漆
版權聲明:本站所有文章除投稿授權發布外,其他文字內容均為原創,享有著作權保護,未經許可不得以任何形式進行轉載(包括且不限於:媒體、網站、公眾號等)。所有項目照片/設計圖形版權歸原作者所有。本站部分內容源自網絡公開資源或用戶分享,如若侵犯了原作者的合法權益,可聯係我們進行處理。




























