拾柴是一個具有工匠精神、對細節要求很高的茶飲品牌。
品牌突出手藝人手工製作、為客人精心準備一杯茶飲的呈現過程,我們的設計構思首先在布局上展開,將原先發生在後廚裏的蒸煮環節放在了空間中最顯眼的位置;“製茶手藝人的舞台”這一概念由此得以呈現。“舞台“的造型我們采用了火爐的形式,火爐作為整個空間的核心,既與拾柴這一品牌名稱產生了關聯,同時也還原了在傳統家庭中親朋好友之間圍爐品茶、親切友好、溫馨的交流場景。
火爐的支撐結構是一個抽象的中式梁柱體係,它由簡單的木板材料穿插而成,所有的連接點都采用了最為簡單直接的構造形式,這一結架體係同時延伸到了空間的其它部分,以此營造出製茶工坊的整體氣氛;空間中的客座采用了“沉浸式”的設計,客人可以近距離地觀賞製茶手藝人操作的每一個細節,給顧客帶來一種在製茶工坊裏“喝一杯新鮮出爐的奶茶”的幸福感。
家具的設計同樣是空間中木構架係統的延伸,它采用了比一般桌椅用材尺寸略大的板材,這種樸素的設計手法在空間中的每一個細節隨處可見,比如桌子上的餐牌、盛放吸管的容器等,使整個空間呈現出一種質樸、踏實、可靠的工坊氣質,與拾柴想要傳達給客人“認真做一杯好茶”的品牌核心信息一脈相承。
這家店是拾柴手作品牌的首店,將來則會麵臨品牌係列店的設計。如何既保持品牌形象的一致性又能體現“手作工坊”的質樸感覺?我們在這家“原型店”的設計中做出了一些探索。我們嚐試改變一般連鎖店的“模塊化”空間設計方式,而用“方法與體係”代替預製的“模塊”,不再是“把預製好的模塊塞進不同的場地”而是回到“根據不同的場地建一座工坊”。這就像預製食品與有“鍋氣”的手作食物的區別。
如何建一座工坊?如果是傳統工匠來建造,是不需要設計師與施工圖的,隻需要明確“製式與主材”,便可以根據不同場地的尺寸放線下料。我們采用了兩種“製式”:板材邏輯的“大木作”與鋼型材邏輯的“框架廚房”它們分別對應板材與型材兩種主材。大木作以3米為模數,型材框架則以1米為模數。板材寬20厘米,厚4厘米;型材4厘米見方。大木作形成空間框架,型材係統嵌入其中,作為第二級。由於模數和材料的尺寸都存在對應,每三根鋼型材會有一根與板材對齊,並被雙板夾住。這就像傳統建造中的鬥拱,它既是基本節點也是基本模數,有了它,工匠便可以“依法式而建”。我們正在編製的拾柴手作SI手冊就是這樣一本“製茶工坊營造法式”。
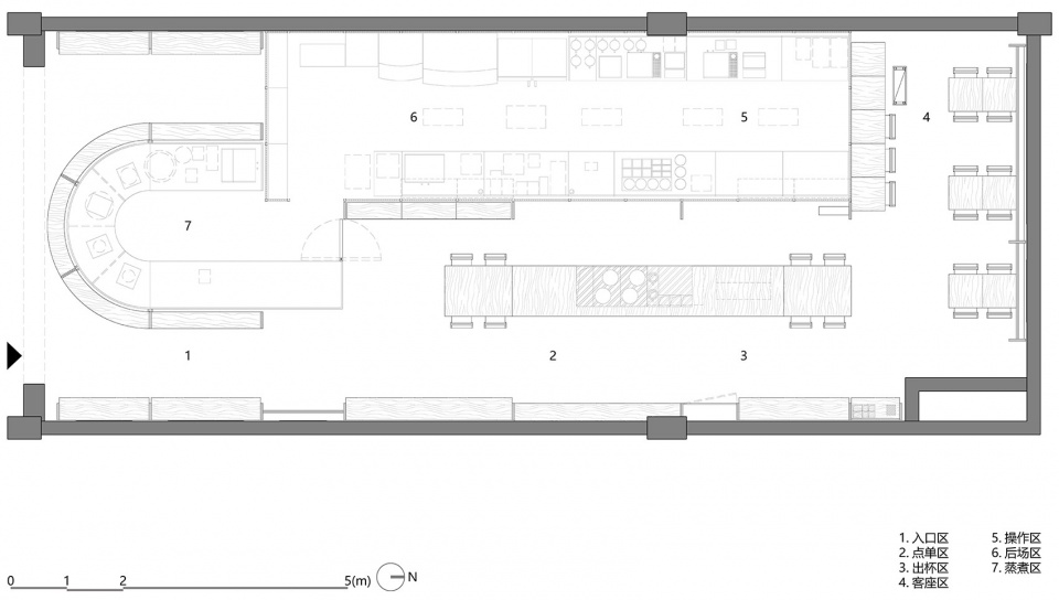
∇ 平麵圖
項目信息
項目名稱: 拾柴手作蘇州觀前街店
設計: 空間站建築師事務所
設計:2023年12月-2024年3月
施工完成:2024年3月
主創設計師:汪錚
項目負責人:楊傑
設計團隊:劉文龍,向懷誌,周季敏
施工圖負責人:許輝
攝影:金偉琦
項目地址: 蘇州市,姑蘇區
建築麵積: 130平方米
攝影版權: Spacestation
視覺形象設計:702design
施工單位:江蘇格沃建築裝飾工程有限公司
客戶: 上海百分茶供應鏈有限公司
卷簾製作:浙江曼詩菲紡織品有限公司































