內境外象
風雅自庸附
沿著海峽潮濕炙熱的風,追溯百年前南洋複古的格調,以摩登視角展開福州本地與海外僑胞共榮的曆史歲月圖景,開啟這場奢華的『經典回歸』。
項目地址位於福州城市CBD核心地段——信和廣場,客群定位是以高端商務宴請為主。設計團隊便以品質、精致與時尚定位空間,試圖為城市精英們,提供一個足夠匹配他們身份的宴請場所。
整體空間承襲名門望族府邸的東方禮序,中國傳統院落中的“三進製”規劃原則。東漢鄭玄注 《禮記•玉藻》記載“天子五門,諸候三門”,秉承千年的貴胄禮序與形製等級演化出現今尊貴的待客之道,拉長的徑深賦予場域強烈的儀式感,進而打造“出則繁華,入則寧靜”的空間氛圍。
一進門廳,設置於吊頂的鏡麵金屬材質提升空間縱向尺度,並以蘊含嶺南特色的醒獅作引,與福州漆器髹飾技藝相結合。兩地非遺文化在作為空間點睛之筆的同時,也為每一位賓客送以象征吉祥如意的歡迎禮。
轉入深深廊道,點點亮光似繁星墜入其中,紅稠綠暗,燈影晃耀,似煙霞輕攏,又如碧波瀲灩。原本荒廢的采光中庭走道,搖身變為商場裏別具一格的休閑花園。
花園牆麵的巨幅藝術作品,出自福州在地攝影藝術家——宋蓬勃先生。以暗調的紅綠撞色對閩地山水進行再創作,特殊的製作工藝與金屬材質的碰撞,於無聲中詮釋雍容華貴的複古美學,演繹優雅的摩登浪漫。
以細觀之
亦如琢如磨
二進中廳,特以中島接待台為軸心,開辟出一百多平的空間,建立和諧統一的對稱布局。在理性和浪漫的有序組合裏平衡內外空間的秩序。懸掛於中心的Art deco幾何藝術吊燈,與地板經典的黑白條紋石材相互呼應,解鎖空間更多元的視覺層次。
迎客的禮儀彰顯主人的待客之道。繁花盛開的中島接待台,為客人帶來多感官的沉浸式體驗。
景致的植入曲折了空間動線,與燈光的切換一齊重新梳理了空間關係,成為過渡與連接內外空間的第二個視覺中心,營造“二進院落”的四季景致。
“天下大事,必作於細。從空間材質的嚴選、軟裝定製、燈光氛圍的精微營造,到客人看不見的地方,都藏著精奢之微。”樸拙的空間底色,配合精致寫意的裝飾,才能將空間串聯為有機的整體。
拉長的連廊宛如舊電影的長焦,鏡頭之下,自動恒溫酒櫃映於流光曳影中,反射出璀璨光澤,其奢華質感不言而喻。
清朗的玻璃陳列櫃,切換出光與影的動效。隨著位移的產生,光軌不再是平鋪直敘的衍射,而是在空間體塊中穿透、交疊。借位的藝術手法,勾勒出空間氤氳的複古質感。
三進大廳,延續南洋建築獨有窗格元素的屏風裝飾,複古之中兼有摩登氣質。極具觀賞性的器皿與綠植倒映於牆麵的複古鏡麵,在熹微燈光的烘托下,延展空間的虛實關係。
對品質的極致追求,使得備餐台也一反常態,大膽采用了透明玻璃的形式。這一設計亮點既是出於對餐廳運營極高衛生標準的信任,也是針對客人高規格服務細節的體現。
一抹湧動的色彩映襯在過道盡頭,在交疊的大廳空間層次內起伏躍動,高飽和色調的嵌入未顯蕪雜,卻恰好達成了時尚與複古的微妙平衡。食物之精髓以藝術的表達、摩登的裝飾掀起局部的視覺盛宴,食客也由此以探索者的形象展開對味蕾之旅的期許。
目光移轉,進入包廂前區,長島台的設置化解了悠長通道的無趣。設計依附於實用主義的外殼,在增強空間節奏體驗的同時,也解決了實際運營中送餐及收餐所需的中轉台功能。
通過幽暗的燈光氛圍控製,營造進入私密區域的靜謐感,牆麵序列延申的壁燈,提取了品牌符號:四葉草。作為空間的燈光點綴,亦在食客的行走過程中起到指引的作用。由物衍生的感官體驗和情緒變化被恰到好處的細節所關照,這未嚐不是一種人與景的聯動。
隰有荷華
亭亭自清絕
恰如粵妃之名,包廂空間便似著綠衣裳,點紅胭脂的妃子,自簾後款款而來,其墜飾奢美華貴,舉手投足間,若有國色天香之韻。
入室門拉手,采用奢石鑲嵌的藝術設計,增加推門進入的儀式感。
進入空間內部,吊頂波浪形態的設計,隨日影與燈光的變幻泛出不同的光彩,牆麵點綴的獨家攝影藝術作品,於細微中透出金屬質感,與其他晶瑩的材料,共同彰顯空間奢華與摩登的完美邂逅。
一處專供泡茶雅談的私人茶桌,讓包廂擁有更多的自由空間,身與心的鬆弛,隻為食客更滿意的體驗感。
新式與經典的交鋒,不僅停留於色塊的錯綜程度,亦表現於物品材質所營造的空間質感。從水晶杯盞到奢石台麵,皆使用高端品牌,質感華麗,造型簡約,臻享尊貴的同時避免空間喧賓奪主,讓客戶將注意力更多停留於味蕾之上。
衛生間除了在使用功能的歸置與細節上的處理,在空間設計上延續複古與時尚相融合的調性,鋼琴漆木麵,水墨紋路的奢石麵板,乃至衛生間潔具品牌甄選,隻為給客人更尊貴的獨特體驗。
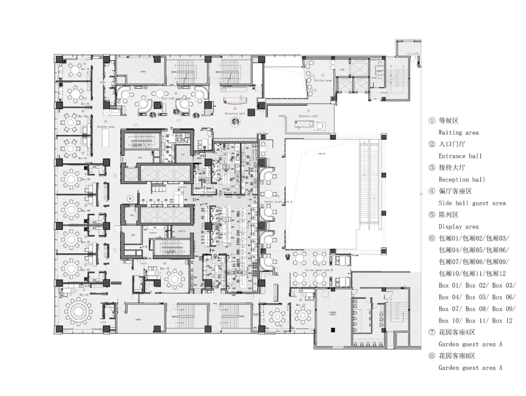
∇ 平麵圖
項目信息
項目名稱|粵妃·公館
設計公司|YaoDesign耀設計
項⽬地點|中國 福建 福州
項⽬⾯積|1360㎡
主案設計|朱壽耀
設計團隊|陳麗媛、萬楠
軟裝設計|居合陳設
照明設計|葉李平燈光設計
圖像製作|MAX視覺
藝術作品|宋蓬勃藝術工作室
品牌設計|StudioJU聚品牌
品牌營銷|美凱成創
施工單位|五維裝飾
項目攝影|賀川
內容策劃|橙設傳媒
設計時間|2022.05
完⼯時間|2023.05
主要材料|皇家翡翠、皇家紅、冷翡翠、宇宙星雲、進口岩板、定製櫻桃木鋼琴烤漆板、定製鋸齒紋實木地板、定製暗古銅不鏽鋼格柵、定製夾絹玻璃
品牌支持|中策標識、金仕敦奢石、北美ICC瓷磚、奧勝火金屬、漢諾地板、科洛德塗料、賢赫木品、輝格美晶酒窖、元居陳設、福州蜜邸軟裝、德國杜拉維特衛浴、德國高儀衛浴















































