這是一個複興東京足立區北千住一棟舊私人住宅的項目。現任業主出於保護城鎮景觀的願望,將建於 1938 年的舊私人住宅“舊板垣住宅”改造成一個由三種類型的餐廳組成的新集群。該項目於 2019 年夏天開始,當時新冠病毒引起的混亂尚未開始。此次事件的起因是有傳言稱舊板垣官邸可能會改建為公寓樓。
現在的主人是在舊板垣住宅前出生和長大的,自江戶時代以來一直在這裏經營殯葬服務公司,他決定保護老房子並將其維持為餐廳,以“保留出生長大的小鎮風景,從物業的收購到餐廳的構思,設計、地產、管理團隊反複討論,經過7個月的建設,餐廳於2020年11月開業。
大部分建設都是在當地北千住工匠的合作下進行,提高了社區對保護城鎮景觀的認識。不用說,在新型冠狀病毒傳播且項目正在推進的情況下,餐廳現任老板對於是否適合開辦一家新餐廳感到矛盾。然而,在我們與他的持續對話中,我們發現他不僅希望保留舊板垣住宅,而且還表達了他恢複城鎮與人民之間聯係的強烈願望,他說:“我不想失去一個人們可以聚集在一起的地方。”
舊板垣住宅位於 JR 線北千住站,沿著直通荒川河床的舊日光街道步行約 15 分鍾。它也是舊日光街道和舊水戶街道的交彙處,在江戶時代(1603-1867),這裏是客棧小鎮的繁忙入口。如今,雖然勉強保留了當時的記憶,但幾乎沒有任何商店或行人經過,道路也隻是稀疏地用作通往附近住宅和荒川河床的道路。
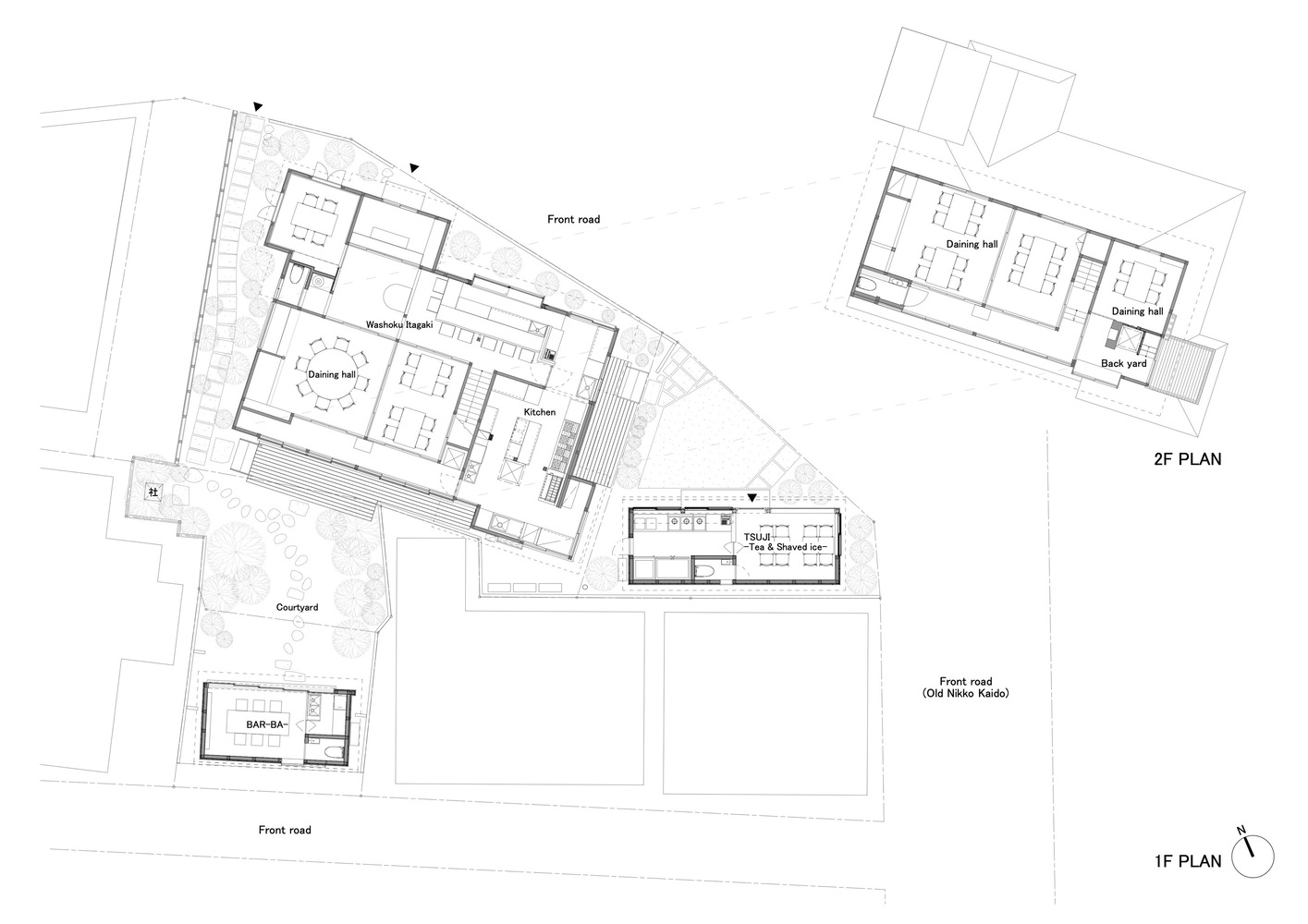
在煥然一新的舊板垣住宅內,“和食板垣”、“TSUJI – 茶和刨冰”、“BAR – BA”這三家商店將共存。除了看似令人生畏的日式餐廳外,前院還有一家休閑刨冰咖啡館“TSUJI – 茶和刨冰”,適合各個年齡段的人享用,還有一家酒吧,“ BA – Place”位於後院,經常戴著耳機舉辦無聲劇院。這些小商店的集合被命名為“板垣,辻,Place”。這不是一座大型商業建築,而是一群小商店,將形成住宅和商店的混合體,並將成為創建城市充滿活力的區域的催化劑。
∇ 平麵圖































![[4K] 4.84G WABI – SABI侘寂視頻](http://www.online4teile.com/wp-content/uploads/2024/04/f5b8aca9e-1-414x550.jpg)

