VICUTU旗艦店將鋁板巧妙彎曲編織成建築外立麵
全新的VICUTU時尚品牌旗艦店的設計通過探索與重塑,將品牌的核心元素進行構建化和空間化。通過未來感官與細膩的建築語言對時尚界的服裝屬性重新詮釋,為顧客提供了獨特的體驗,同時通過空間展示保持對服裝麵料、剪裁和時尚質量的真實表達。
曆時三年的設計與傾力打造,全新的VICUTU旗艦店坐落於北京上德中心的核心沿街地段,分為上下兩層,總建築麵積1680平米,包含三大品牌Gornia, Vicutu-藍標,Vicutu-紅標。設計理念從VICUTU品牌的 “V” 字形狀圖形提取,融入時尚界紡織物的柔性編織,形成 “生生不息” 的生態編織體係, 連續的語言貫穿於建築的外立麵到室內的展示細節。
∇ 立麵概念
外立麵設計- “生態編織體係”由服裝麵料的柔性編織啟發
布料從編織物中發展而來,線與線的交織產生更大的成衣麵料。在旗艦店的外立麵,這種語言以巨大的建築尺度來闡述,為觀者提供了一種新穎的建築外觀。與將平麵織物裁剪成三維服裝的性質類似,立麵的構造來自於將鋁板彎曲和彎曲成雙彎曲幾何圖形的創新製造過程。在建築界首次采用大型三維立體造型金屬編織體係,把男裝的製作工藝與麵料的屬性體現在建築外觀,生生不息的柔性編織成為項目的核心IP與視覺符號。編織體係從大廈的底部一直“生長”到頂部與大廈玻璃幕牆的金屬格柵造型融為一體,象征著品牌從大地中汲取營養與智慧,源源不斷地輸送到頂部,循環往複。
∇ 立麵分析圖
室內設計- “自然生長”創造一種沉浸式的購物體現
在旗艦店的室內,整個空間語言模擬自然界中的山川、瀑布、沙漠及天象,創造了生生不息,涅槃重生的沉浸式場所,體現了男性堅韌不拔的性格。有機理的藝術水泥牆麵體現了經典、低調同時具有雕塑感的環境。所有的牆體與展示櫃台是從地麵與頂麵“生長“出來,通過隱藏的光源強化連續與生長的效果。連貫的曲線空間是從流動和懸垂的織物中提煉出來的幾何語言創造的。豎向的柱子和水平的橫梁在整個建築空間中交織在一起,通過動態流動生成,在瞬間形成連續性的造型,同時在更大的空間內起到圍合的作用。通過對織物的感知和將其轉換為建築語言,同時將流動性升華為模塊化規範的形式,出現了新的空間體驗品質,為參觀者提供了鼓勵其近距離感知的私密空間,同時曲麵“生長”牆體及動感的天光造型引導顧客進入到不同的展示區域。
在整個店麵空間中,“生生不息”的柔性編織的語言通過其多樣的表達和體現細節創造了一種統一性。這種編織漸變元素體現在以浮雕的形式嵌入在展示牆龕之中;也作為休息區地麵的嵌入式圖案;也作為室內商場立麵的中的三維編織體係。這種幾何形狀的統一表達其實是服裝織物編織本質的升華與演繹,既從字麵上看是織物生產的一種手段,也作為VICUTU品牌的一種表達,作為行業的領導者,他已成為中國時尚界服裝發展中交融與引領的位置。
VICUTU旗艦店是從新材料,新科技,新觀念入手,創造一個深度而多方麵的展示場所。不僅可以展示品牌的最新設計,還可以展示與建築、藝術、3D數字建造技術等其他行業的獨特合作中的創新潛力。空間通過在整個項目規模上對細節的細致關注,與參觀者建立了深刻的體驗式互動。促進空間交互和原創的線下體驗,為顧客提供了全新的沉浸式的購物體驗。
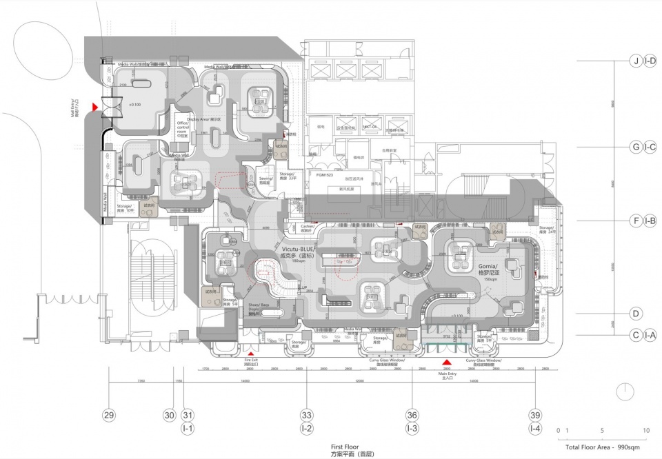
∇ 首層平麵圖
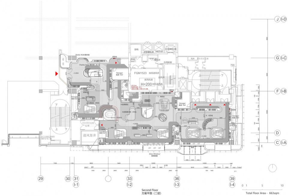
∇ 二層平麵圖
∇ 空間分析圖
∇ 空間透視圖
∇ 玻璃幕分析圖
∇ 立麵分析圖
項目信息
項目名稱: VICUTU威可多北京旗艦店
項目完成年份: 2022年11月
建築麵積(平方米): 1,680
建築設計: 北京非靜止建築設計有限公司
室內設計: 非靜止建築設計AntiStatics Architecture
主創建築師: 鄭默
項目地址: *精確到街道 北京市廣茂大街19號院上德中心4號樓一層 VICUTU(威可多上德中心旗艦店)
攝影師: UK Studio, AntiStatics, Arthur Yang楊軒
項目參與者
委托方(公司名稱): VICUTU 北京格雷時尚科技有限公司
結構設計(公司名稱): 中京方正(北京)工程技術有限公司
施工方(公司名稱): 北京晨峰珀浪建築裝飾工程有限公司
主創設計師(人名):鄭默、Martin Miller(美)、Christopher Beckett (英)
設計團隊(人名): Yasser Hafizs (印尼)、Theodorius E. D. Santoso (印尼) 、Frank Feng(美), 劉宣灼, Dhaga Aman(印度)、張博研、白雯霖,奚悅,楊軒,李勇,張衛東,張靜微
材料品牌
GRG供應商:上海恒豪Egrow
牆麵藝術水泥漆: TT TOP PROJECT 西班牙公司名稱:MTECH INNOVATION,S.L. 施工方:北京鬆格裏科技
燈具: 供應商:惠州市西頓工業發展有限公司,品牌:西頓照明
外立麵雙曲麵鋁板幕牆: 施工單位:利達裝飾集團有限公司
水磨石: Sterrazzo 星磨石 施工單位:上海星崮環保科技有限公司
燈光智能控製係統: 施工單位:廣州河東科技有限公司, 品牌: HDL














































