【可感知的集體印象】
中山路位於廈門島的西南部,是現有保留較為完整的南洋騎樓建築的舊城街區。它猶如廈門這座城市經濟與人文進程的縮影,新與舊、喧嘩與寧靜、當代與傳統互相滲透。
∇ 上世紀50年代的廈門思明南路
原有的騎樓建築風格將門店與外界街道保持了適當的距離。此間所形成的“公共走廊”,將商業屬性“隱匿”於街道。我們在審視“地標性”時需要警惕對“符號式”的盲目追求,對於BOLON而言,融入在地性的人文與傳播品牌的願景同等重要。
∇ 軸測圖|Some Thoughts
設計師希望在完成基礎的功能設定後,將更多的自由度還給消費者。所有的組織都將圍繞“自由瀏覽”而展開。在相對鬆弛的尺度中,通過設計語言的關聯性,在空間中構建出微弱的整體性。
結構不同層次的疊加會使得場地的比例發生變化。在三層空間的門店中,垂直交通的存在正以其獨有的敘事方式,在客觀上為樓層空間的轉換提供了情緒上的過渡。拾級而上,我們試圖讓人們感知空間的特質,並以自身為尺度去體驗這種結構所帶來的豐富性。
在閩南地區,明顯的地域自然條件與特殊的人文經濟因素下,石材以其耐鹽堿、易加工等特性,在相當長的一段時間裏被地方工匠的創造與智慧所驗證。在凝結了地域屬性與情感記憶的材料麵前,我們希望所有的到訪者皆能感受到自然所賦予的溫潤與鬆弛。
∇ 軸測圖|Some Thoughts
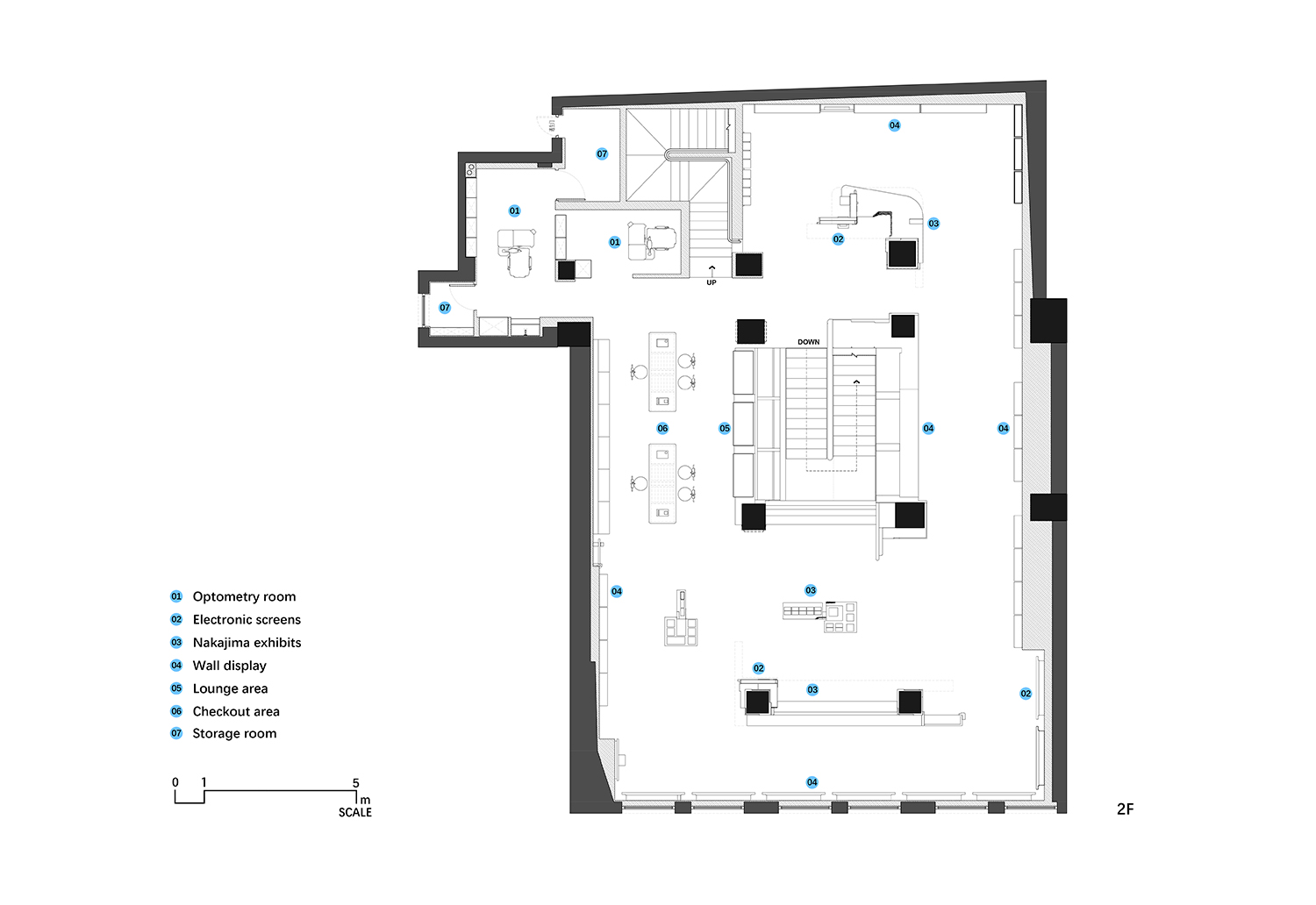
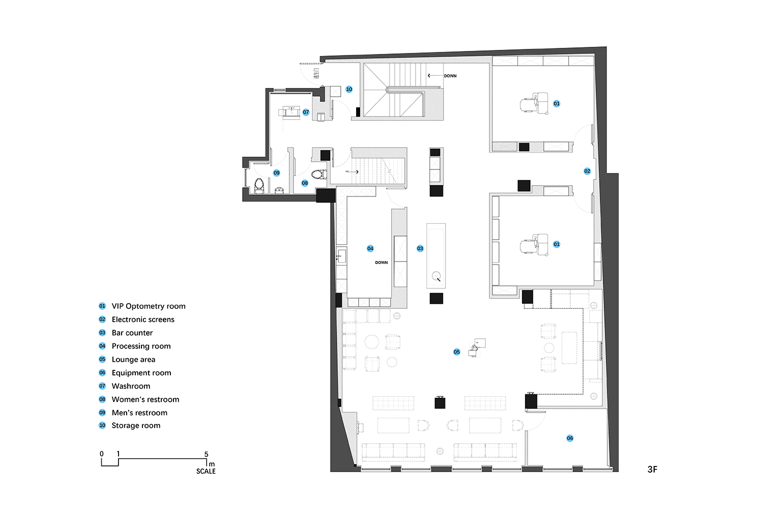
∇ 平麵圖|Some Thoughts
∇ 剖麵圖|Some Thoughts
項目信息
項目名稱:BOLON廈門旗艦店
項目地點:福建省廈門市思明區中山路59-61號
空間與陳列設計:Some Thoughts空間設計工作室
主持設計師:李京澤
設計師:向國、金強
項目業主:廈門愛亦銳光學有限公司
主要用材:水洗顆粒塗料,木飾麵、回收舊木,黃洞石 、白麻石、鬆香玉大理石、做舊金屬、鏡麵不鏽鋼
室內麵積:890㎡
設計時間:01/2023-4/2023
建造時間:05/2023-8/2023
攝影:SFAP



























































