我坐在窗旁
風有點涼
人群走過
望了望
有一位工匠
握一隻茶杯,坐靠方窗
有一扇方窗
伴一片白牆,立身街坊
有一處街坊
擇一條小河,安躺城市
有一座城市
居一位過客,耽於想象
有一場想象
隨一陣輕風,縈繞工匠
忘了忘
人群已去
天下起雨
我坐在窗旁
——朱浪進
“傳統是一條小河,生活的小河,靜靜流淌。現代與傳統並非敵對,恰恰相反,現代就是傳統,或者說是傳統延續下去的唯一途徑。建築的過程不是實驗,是理解後的小心探索。所以形式的表達不應是形式自身的創新或者其他標榜,而應是對於當下生活的關心與熱愛,即是對傳統的尊重和傳承。”
河邊的房子
小河茶館位於杭州小河直街曆史保護街區的一片民宅內,街區位於杭州北部,地處京杭大運河、小河、餘杭塘河三河交彙處。街區的曆史可追溯到南宋,這裏曾經是河陸轉運的重要物資集散地,由此形成了運河商埠文化和下店上宅的水鄉民居形式。
∇ 區位分析圖
∇ 京杭大運河的運河船隊
小河民居作為清末民初所建典型的受商埠文化影響的水鄉民居,呈現一河兩街格局,麵向街道一樓為商鋪,二樓為居住。這些民居沿小河東南至河港交彙處布局,是一整片木結構建築,主街長約300米,還有狹街窄巷夾於住宅之間。
∇ 場地分析圖
小河茶館坐落其中,西南側朝向小河,東北側朝向街道。茶館一側有一條小路可以直接從街道走到茶館的院子裏。整個建築占地麵積很小,隻有30平方米,雖然處在景致之中,但如何最大化地利用空間、引入景致是我們最初思考的問題。
小河“山居”
謝靈運在《山居賦》中寫到:“古巢居穴處曰岩棲,棟宇居山曰山居。”山居在中國文化中,最早代表山中居住的意思,之後代表一種人與自然在精神和審美上的和諧相處關係。進而山居漸漸成為了中國文人對居住的最高要求體現,其中最直接的表現即是中國古典園林的出現,形成了如“先抑後揚”“雖有人作,宛自天開”等造園理念。
小河茶館坐落於河畔綠柳茵茵處,又緊鄰熱鬧的小尺度街道,且小河直街保留著傳統的人文居住氛圍。我們很自然的想到要在這裏“造個園”。造園須有山、水、草木、建築等,小河水景以及河邊的柳岸成蔭是最自然的景觀,也在茶館後院處。我們將其設為觀景造園的高潮,並在其他處依次借“造園”的思路設置空間與場景。
∇ 錢選山居圖卷(局部)
∇ 小河茶館剖透視插畫
模山障景
入口
傳統入園借山石樹木或開窗隱藏園內天地。茶館入口麵向熱鬧街區,雖居於鬧市,但隱逸於市。因此,我們設置一個相對封閉的入口和兩個小窗,來往的人需要停下駐足或特意低頭才可以一窺室內的景象。
∇ 小河茶館視線設計分析圖
門前的踏步和景觀成為了“第二層立麵”。野生杜鵑高度延至屋簷,恰好給小窗進行了二次遮擋。石台形式取自太湖石,也是我們“模山障景”的第一處,它與幾何形的石階景觀共同構成了入口的屏障,也是街道與室內空間的過渡之處。功能上,門口的石台是物品展示和台階結合的結果。
∇ 入口場景畫
一樓立麵上部的長窗高於人們站立的視線,給臨街茶室提供必要的采光,透過長窗也可以望向對街的老房子。下側正方形的小窗與人端坐後的視線平齊。坐在小窗旁,可以無意一瞥經過的遊客,再回頭靜靜品茶,和兩三好友談天。而窗戶外又借用景觀進行了二次遮擋,讓室內和路人保持一種恰好的距離感。
茶室空間
造園常常講究“抑景”與“障景”,在空間設置上最忌諱“一覽無餘”,總是“先藏後漏”,“欲揚先抑”,讓人有“柳暗花明又一村”的驚奇。我們通過門窗的虛實處理對空間進行視線分隔,從而達到景觀的視覺轉換。
∇ 拙政園三十一景圖(其一)
∇ 室內場景畫
在中部服務空間兩側我們分別設置了兩道木質移門。從正門延入茶室,第一道移門嵌有一扇形似“太湖石”的窗,其材質采用半透明的長虹玻璃。視覺上,觀者透過朦朧的”太湖石”窗,雖不能看清真切的精致,但依稀婆娑的光,卻分明暗示著門後別有洞天。
推開第一扇移門後,便馬上可以看到另一側的移門,上麵是一個透明的圓洞窗,透過圓窗,一眼便可以看到隔壁茶室的一靜一動。操作區隨著圓洞窗透入的光線變得明亮,也可以隨時觀察客人需求。當兩扇移門一同推開時,觀者進門便可以直接看到河邊院落的楊柳依依。
兩扇移門之間是操作空間以及電梯空間。電梯的位置起初曾是原始的樓梯空間,應業主要求,將一層到二層的樓梯改為電梯,並在二樓增加了疏散洞口。操作台由白色整體台麵製成,上方是不鏽鋼的置物架。交通及服務空間居中設置,在功能上,它將最好的景致留給了茶室與客廳。當移門關閉時,也可以滿足茶空間或客廳所需要的獨立性與私密性。
移門右側設置了一處置物空間,點綴山石小景。關上移門,置物櫃被遮擋在門後。
我們在入口處左側牆體上方的配電箱外側做了一個內嵌式的壁龕,可拆卸的金屬壁龕既可以遮擋配電箱,又形成了一處局部小景。為了使突出的部分不那麼生硬,我們用弧形線條過渡。壁龕下方安裝了一個小射燈,夜晚降臨,射燈可以照亮下方承板上的小物件。
河邊庭院
經過第二扇移門後,茶室和河邊庭院就展開在眼前。為了更好地引入光線,我們將原本房屋臨河界麵設計成大麵積的電動玻璃移門。當移門打開,這便是一處進入自然的茶空間。
從小河回望,透過移門縫隙可以瞥見遠處街上的路人。功能上,移門可以靈活地控製三個空間的邊界,利用景色的滲透引導觀者的行進。將兩扇移門移動至不同的位置可以形成豐富的變化組合,從而使觀者欣賞到多種不同的風景,極大豐富了空間中的視覺體驗,也是“借景”及“障景”的意趣之處。
我們在平台設置了沿河茶桌,人們可以在此處停留、眺望,也可以沏一壺茶和三兩好友聊天。我們利用太湖石造景,太湖石一分為二,上部的太湖石主體佇立在茶桌旁,茶桌部分嵌入石內,融為一體。太湖石景似乎成為了茶桌的一部分。
岸邊的茶台采用黑色烤漆玻璃材料,將岸邊的綠意都映照在了台麵上,綿延了景色的邊界。而黑色的反射材料也可以很好地融入在環境之中。
太湖石的另一小半被用作落雨鏈下的承接石。台階是用自然石頭形成的雲步踏跺。整個戶外平台的景觀選用自然的石頭搭配植物造景,呼應入口處景觀,同時也連接了小河的自然景觀,是造園景觀的高潮處。
造一個“石頭”窗戶
太湖石是中國古典園林營造中最常用的石種,深受文人墨客的喜愛。關於太湖石,古人曾留下不少膾炙人口的詩句與畫作。在五代周文矩所作《文苑圖》中,就出現了幾位文人鬆下雅集的畫麵,其中一位文士正俯身倚靠一處黑色太湖石,提筆思索。
∇ 《文苑圖》周文矩作
除了入口處太湖石形的石階及庭院內直接使用的一塊太湖石造景外,我們還造了一個“石頭”窗戶。“石窗”的形式取自太湖石的造型,意在汲取古代文人對石頭和園林之美的意趣。我們並沒有將石頭原樣臨摹,而是更希望通過抽象的形態來體現意趣的精神。
造一個“石頭”家具
二層空間是業主個人的茶室和待客空間。為了增加室內的可利用空間,空間中原本巨大的混凝土柱被替換成鋼柱,鋼柱又和所需的置物家具結合在一起。我們假借山石之型用海洋板打造太湖石形態的置物架。置物架底部露出鋼柱的柱腳,展現出置物架內部隱藏的真實結構情況。太湖石形的置物架除了可以放置物品外,同時還可以休憩倚坐。
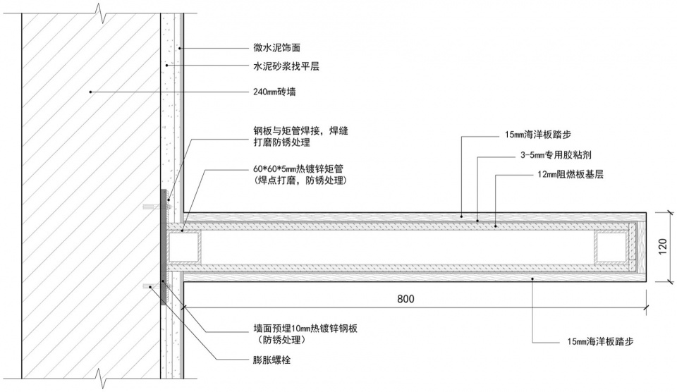
我們將操作台上方的空間有效利用,設計了懸挑式樓梯踏步。空調內機藏在了台麵下的櫃體內,確保建築主體空間上方的完整性,出風口采用海洋板特別定製而成。
∇ 懸挑式踏步節點做法
樓梯臨河牆麵上的一處圓窗,采光與框景的同時,還呼應了一樓移門上的圓窗。當人們經過此處,不由地低下頭俯身觀察窗外的景色。
透過二樓茶室空間的窗,恰好可以看到對麵民居的屋頂與一扇老虎窗。這裏不時會上演各種有趣的景象,或見鄰居開窗,或見小鳥停駐,或見散步的小貓。一切皆是生活。
閣樓空間被我們設計成為主人休憩的私密一角。為適應電梯井道高度而自然形成的突出被設計成榻榻米,可以在此休憩、喝茶。天窗的加入,讓閣樓更加明亮舒適,夜晚可觀星。
空間秩序
空間“對稱”
小河茶館在原有老房子的基礎上改建,一二樓之間的電梯以及茶室操作空間布置在茶館的中部。通向閣樓的樓梯借用二樓操作台上部的空間。茶室、休閑空間等則占據了兩端視野和光線最好的位置。
電梯和茶室操作間的居中布置使得小河茶館在功能上和空間上都呈現一種對稱的秩序關係。而街道與小河、室內豎向的交通服務空間與二樓橫向的交通服務空間也相應形成了兩組對稱且均衡的空間狀態。
∇ 小河茶館功能和空間分析圖
與此同時,一樓入口處的抽象“石頭”台麵與庭院的自然石頭,一樓移門上的圓窗與二樓樓梯旁的圓窗,一樓的“石頭窗”與二樓“石頭”置物架都彼此呼應,呈現某種內在的秩序關係。而空間與符號的成組秩序關係使得小河茶館更整體和統一。
∇ 空間“對稱”分析圖
材料與照明
小河茶館整體呈現一種宋式美學,在材料的選擇上麵我們整體統一了一個淺黃基調。牆麵使用了米白色的微水泥塗料,而摻雜其間的稻草不僅回應了傳統的工藝做法,也讓牆麵材料更加堅固,顏色上更加柔和。
在燈光設計中,為了更好地展現空間本身的特質,我們取消了常規的主燈。轉而采用大量磁吸軌道燈及小射燈來點綴空間,再輔以若幹可移動的氛圍燈,補充照明。
工藝與細節
在確保施工品質的基礎上,我們希望強調手工製作之美。空間裏的木質品,包括移門、層板、櫃子、架子、門套均采用樺木海洋板,由經驗豐富的木工在現場手工製作而成。而後經過油漆工精心打磨、上漆、打磨、再上漆,確保木質表麵的光滑,同時還保留住樺木板原本的紋理及風格。
樺木海洋板我們挑選了檔次較高的單麵完美無疤品級,而在實際施工中,木工師傅在製作一扇木質移門時不小心將有疤的一麵朝外放置了。但當我們發現的時候,依然決定保留了這個失誤,因為恰是這個失誤,讓我們意識到應該在一些局部讓人們看到最真實的情況。而這個看似“表演”的呈現並非有意為之,反倒更加有趣了。
結語
小河茶館不同於現代建築改造。我們嚐試將“山居”思想運用在現代的建築空間營造中,利用傳統造園的手法如“借景”、“障景”、“模山造石”,營造多層次的立麵。利用盆栽、石頭、花器等,點綴空間,也是造園的心思所在。最終通過空間的逐步展開,拉開它的序章,又緩緩結束,皆是我們在小空間內能夠創造的豐富的空間序列。小河茶館也是我們第一次通過使用“模山造石”這樣具像的形式手法去回應中國傳統建築與文化。我們希望更多地參與到當代中國建築的探索與實踐中來,並時刻保持對中國傳統文化的學習、以及讓傳統如何回歸當下的傳承性思考。特別的是,在項目施工收尾階段,業主希望這裏除了可以作為茶室之外,未來還可以滿足居住功能。為了讓茶室和住宅可以非常好地互相兼容,我們設計了兩種狀態下的家具擺放方案。設計風格上,我們希望減少過多裝飾,並不過分強調空間的屬性,從而增加空間自身的可變性、包容性和前瞻性。在未來,業主如果需要長期居住此地,隻需要簡單調整家具,住宅空間與茶室空間就可以互為轉換。此刻建築是生活的容器,住宅和茶館僅僅是生活的不同體現。
∇ 一層家具轉換圖
∇ 二層家具轉換圖
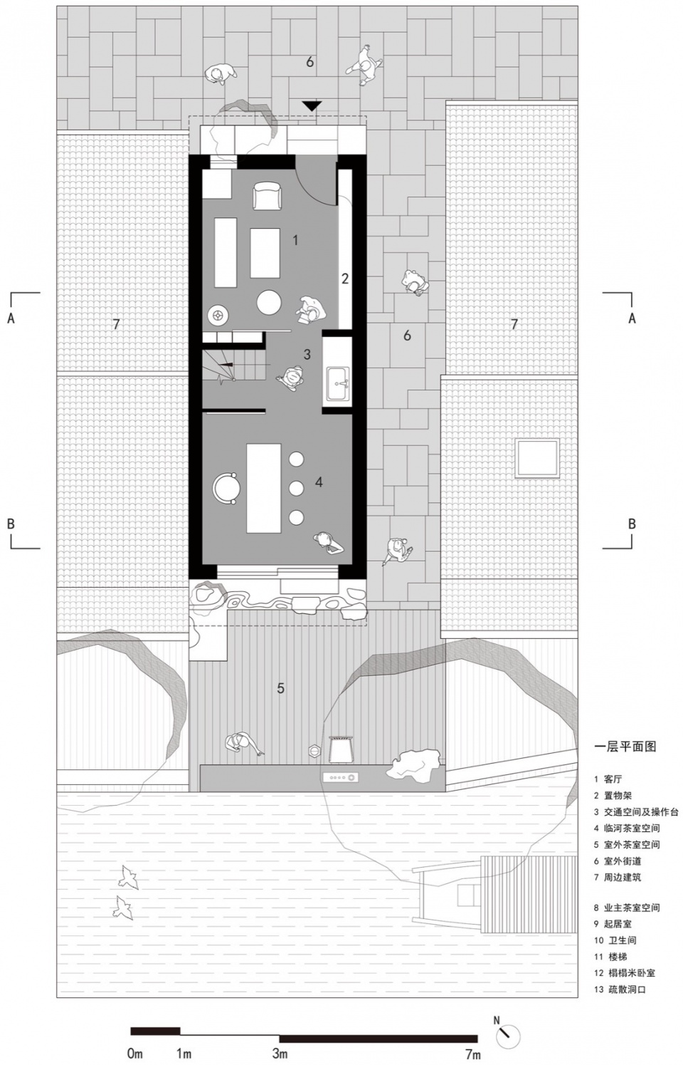
∇ 一層平麵圖
∇ 二層平麵圖
∇ 三層平麵圖
∇ 屋頂平麵圖
項目信息
項目位置:浙江杭州
建築及室內設計:房子和詩建築工作室
主持建築師:朱浪進
項目成員:朱浪進、金新如、趙詩雯、齊玥、牛新佳
景觀設計:山山園林
業主方:私人業主
建築及室內施工:杭州極物裝飾工程有限公司
景觀施工:山山園林
建築結構:磚混結構、鋼結構
建築材料:海洋板,微水泥、黑色花崗岩、人造石台麵、水磨石地磚、長虹玻璃、黑色烤漆玻璃、實木多層木地板等
材料品牌:SVEZA海洋板、杜邦可麗耐台麵,菲羅娜地磚,術木地板,蒂森克虜伯電梯,FLOS燈具,Cassina家具,U+家具、旭格鋁合金門窗,威盧克斯天窗等
建築麵積:80平方米
建築占地麵積:30平方米
景觀麵積:22平方米
設計時間:2020年8月-2020年10月
建設時間:2020年10月-2021年9月
撰文 | 朱浪進 齊玥
圖文編輯 | 朱浪進 齊玥
文字校對 | 操拓
攝影 | 朱雨蒙
插畫 | 齊玥
文章來源參考:
《杭州運河風俗》——顧希佳
《山居賦》——謝靈運





























































