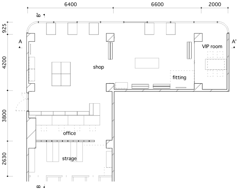
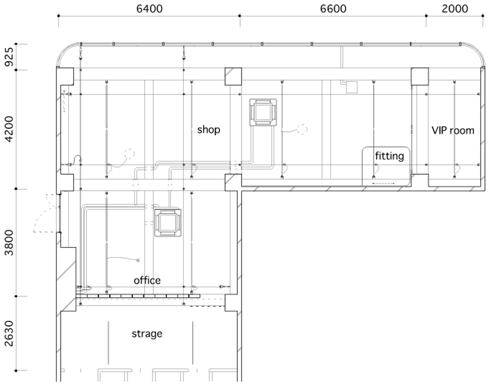
EEL精品服裝店位於日本東京Higashiyama Meguro區,麵積為123平米,由Schemata Architects事務所設計。
整個服裝店在設計和施工過程中大多數是采用的“減法”,拆解、脫皮、除去額外的元素等。店麵采用LOFT風格的設計會給人更自然、平和的感覺,且能突出展示產品忽略或減弱背景,設計師提出的“不完整性”是整個服裝店空間設計的關鍵,設計師認為衣服與顧客看到衣服後內心的溫暖感有關,而且那種感覺有時會讓人變的緊張或不舒服,所以設計師要把整個空間環境做的“心平氣和”,讓產品和環境成為統一體,少其一則為“不完整”。
Schemata Architects事務所官方網站:Schemata Architects
Photos © Takumi Ota
Content Copyright © www.online4teile.com
版權聲明:本站所有文章除投稿授權發布外,其他文字內容均為原創,享有著作權保護,未經許可不得以任何形式進行轉載(包括且不限於:媒體、網站、公眾號等)。所有項目照片/設計圖形版權歸原作者所有。本站部分內容源自網絡公開資源或用戶分享,如若侵犯了原作者的合法權益,可聯係我們進行處理。

























