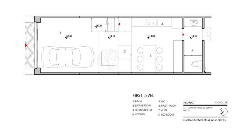
這間民宅位於河內,隻有46平方米,屋主是一對年輕夫婦,狹小的空間要保證基本和必須的功能,但是屋主的預算是有限的,建設時間越短越好,還要考慮到將來的需求而做的重新布置和更替。在多種方案的討論下,建築師最終確定了最佳的方案。從用自然元素連接生活空間的角度來看,中庭扮演著重要的角色,聚集了陽光、風和樹等所有元素,能淨化心靈營造健康的生活環境。
住宅的空間布置通風且流暢,非傳統的方式構造了車庫、客廳、廚房和餐廳區,最終呈現出寬敞、舒適的感受。二樓是業主的隱私區域,臥室的窗戶直接開向中庭,這樣每天早上都能呼吸到新鮮的空氣,通過中間的走廊,連接著家庭辦公室,家庭辦公室除了辦公的需求,同時還是儲存區的作用,當然以後還可能被改造成嬰兒房。
家具選用的是溫暖、質樸的顏色,從吊頂板和防白蟻處理過的鬆木材到能引起懷舊風的花磚,所有的這些都創造了一個真實、質樸的氛圍。
Photos © Nguyễn Quốc Anh.
版權聲明:本站所有文章除投稿授權發布外,其他文字內容均為原創,享有著作權保護,未經許可不得以任何形式進行轉載(包括且不限於:媒體、網站、公眾號等)。所有項目照片/設計圖形版權歸原作者所有。本站部分內容源自網絡公開資源或用戶分享,如若侵犯了原作者的合法權益,可聯係我們進行處理。
























