這間建築師的辦公室和住宅位於斯裏蘭卡的沼澤區內,這棟建築位於城市的的邊緣,接近眾多高層建築,而且靠近主幹道。因為科倫坡的高溫氣候,雙層的特別設計減少了西部和南部的暴露,交通和道路上的噪音因為緊鄰的沼澤而緩解,這棟住宅完全融入到自然環境中。建築內分布有生活區、工作區和休閑區,因為材料和建築的構造的緣故,室內構造了小小的涼爽氣候,陽光、沼澤風景、雨水調節和生物多樣性的花園。
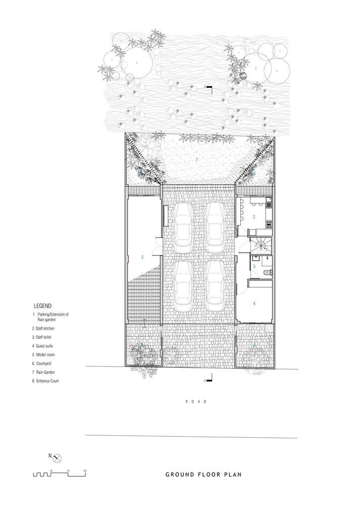
占地253平方米的建築內有三層空間,地下室有四個車位的停車場、廚房、模型製作室。一樓就是大廳和工作室;二樓就是會議室、休息室和書房,以及北翼帶有陽台的臥室、開放天空浴室;最上麵的三樓是客廳和娛樂館,能俯瞰生態池塘。
Photos © vermilion zhou.
版權聲明:本站所有文章除投稿授權發布外,其他文字內容均為原創,享有著作權保護,未經許可不得以任何形式進行轉載(包括且不限於:媒體、網站、公眾號等)。所有項目照片/設計圖形版權歸原作者所有。本站部分內容源自網絡公開資源或用戶分享,如若侵犯了原作者的合法權益,可聯係我們進行處理。























