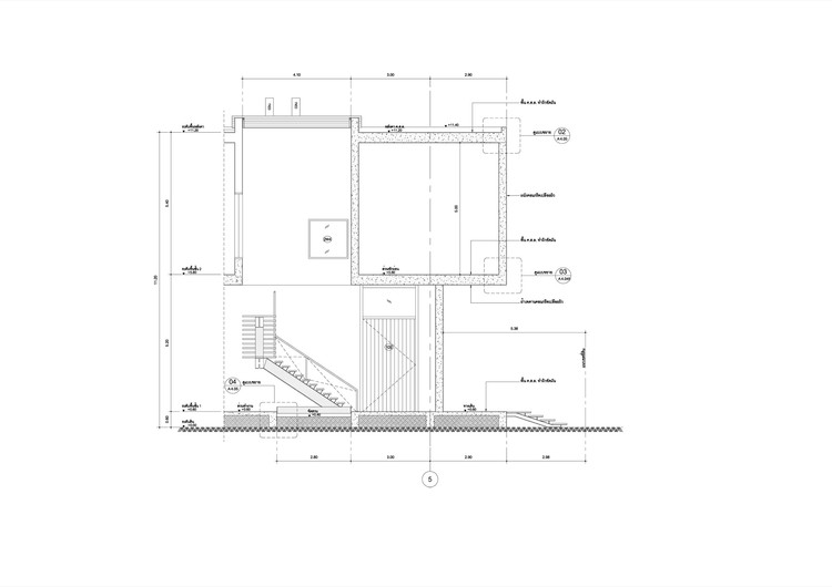
這座實心混凝土建築位於泰國曼穀,占地900平方米,是ASWA建築師在2015年完成的項目。這個建築是泰國藝術家的私人工作室和畫廊,正如其他藝術家一樣,他對工作室的設計要求是打造私密的空間。
整個赤裸的混凝土建築僅有一麵朝街道的窗戶,周圍的植物牆做外圍,龐大且原始的感覺給人震撼,就像一個荒廢的工地,少有人光顧的地方。建築的中間有一個中庭,現代設計感的梯子鏈接一二樓,光線從中庭照射下來點亮了整個空間,二樓的樓梯井的位置布置了大小不一的玻璃窗戶,純灰色的建築,鮮豔的藝術作品,強烈的對比感襯托出生命力。
Photos © Phuttipan Aswakool.
版權聲明:本站所有文章除投稿授權發布外,其他文字內容均為原創,享有著作權保護,未經許可不得以任何形式進行轉載(包括且不限於:媒體、網站、公眾號等)。所有項目照片/設計圖形版權歸原作者所有。本站部分內容源自網絡公開資源或用戶分享,如若侵犯了原作者的合法權益,可聯係我們進行處理。















