Alphabeta building位於倫敦芬斯伯裏廣場,這是一座建於1904年的曆史建築,經過設計團隊的全力改造,這幢建築煥發出令人驚歎的時尚魅力,以卓越不凡的姿態擁抱當下創新辦公新模式,成為倫敦又一時尚創意新地標。重新打造後的Alphabeta彙聚了兩大主要行業領域:金融業和創新媒體與技術產業。
在倫敦芬斯伯裏廣場經常看到很多人騎著自行車進入到Alphabeta大樓,沿著一條醒目的黑黃相間的熒光坡道直接騎行至地下室。這裏有超過兩百多輛的自行車停車位,還配有專門的更衣室和儲物櫃、以及自行車維修空間。這裏是倫敦首個可以騎行入內的辦公大樓,也是本案與眾不同的一大亮點,鼓勵健康出行的生活模式。這幢大樓的每個空間都可以騎著自行車去欣賞、去體驗。
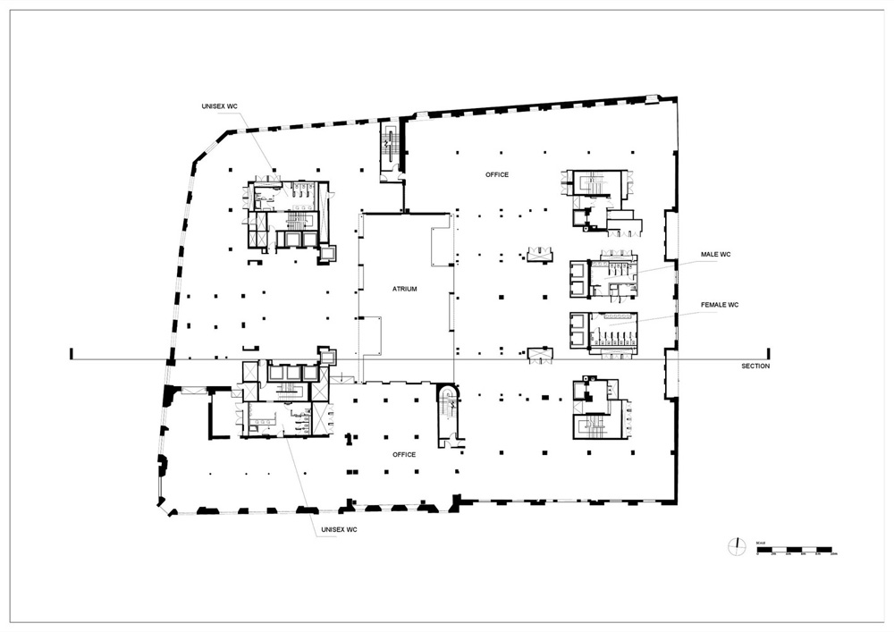
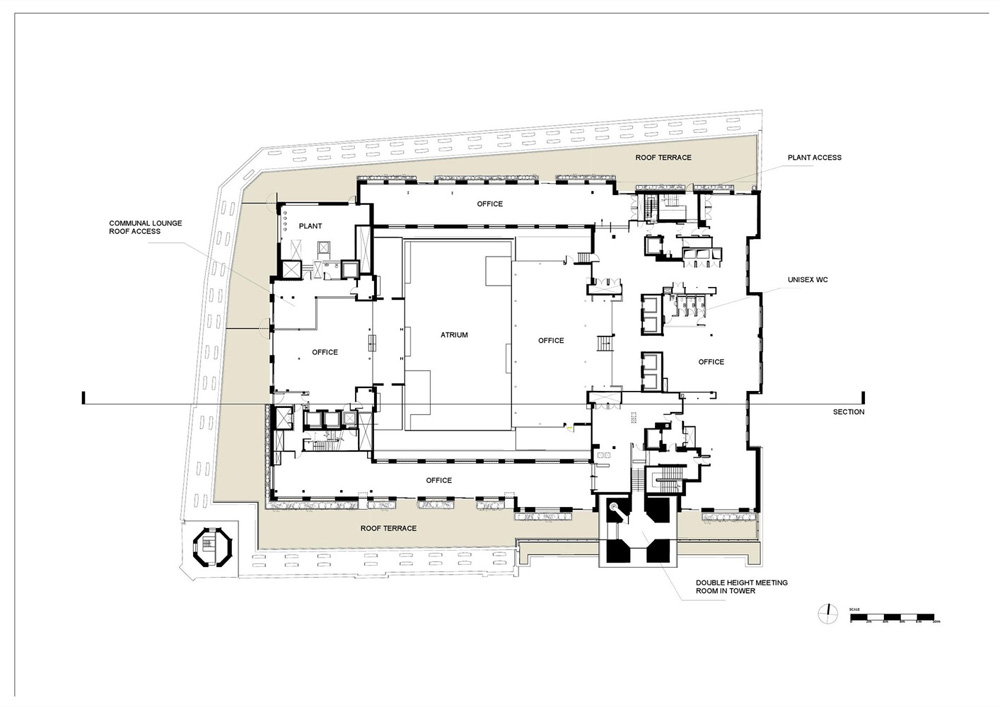
Alphabeta大樓共有九個樓層,擁有750 平米的超高中庭和共享的休閑設施以及屋頂露台。改造後的中庭不再是財富和權力的象征,而是一個充滿時尚活力的公共休閑工作空間,一進入這裏創新辦公文化氛圍撲麵而來。一張長達五米的實木“餐桌”和各式好玩的座椅、漂亮的飾麵板裝飾的閱覽區、新鮮烘焙的咖啡和蛋糕間、各式洽談桌和時尚摩登的沙發裝點了整個中庭,讓中庭不再隻是空間的營造,更具有了實際功用和活力氛圍。建築內部采用通透的箱型懸挑結構向中庭突出,長短大小尺度各異,形成豐富的空間層次感。新改造的Alphabeta大樓還增加了一個籃球場,豐富而多元的功能配置,讓時尚人士紛至遝來。
Photos © Hufton + Crow
版權聲明:本站所有文章除投稿授權發布外,其他文字內容均為原創,享有著作權保護,未經許可不得以任何形式進行轉載(包括且不限於:媒體、網站、公眾號等)。所有項目照片/設計圖形版權歸原作者所有。本站部分內容源自網絡公開資源或用戶分享,如若侵犯了原作者的合法權益,可聯係我們進行處理。







































評論(1)
倫敦Alphabeta辦公大樓改造設計