751創意產業辦公室位於北京東北部一個老煤氣廠轉型的時尚設計園區內。舊園區始建於1954年,是中國“一五”計劃期間175個國有重點工業項目之一,曾經供應北京市三分之一的煤氣。隨著產業的轉型,751轉型成為北京時尚產業的聚集地,呈現出大量的工業遺產與前沿的時尚設計並融的景象。
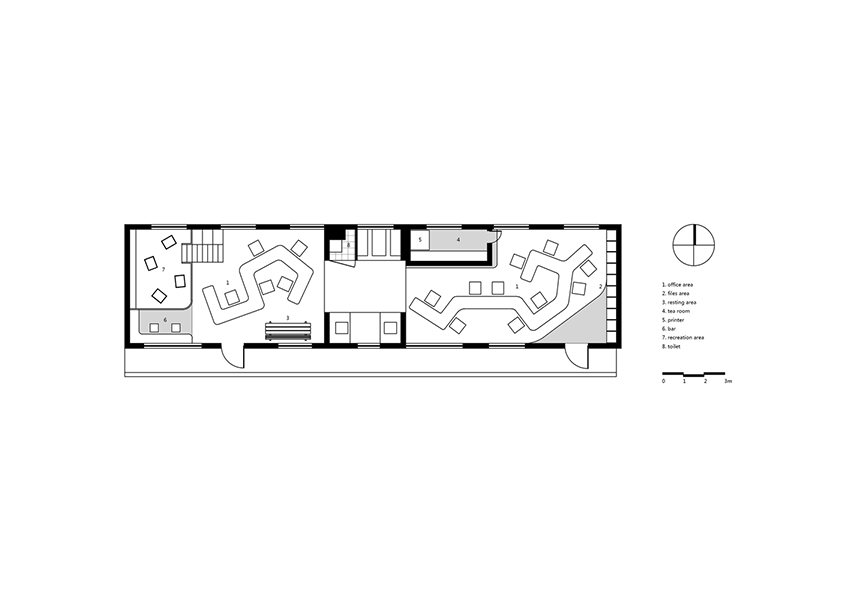
新的園區創意產業辦公室位於一座三層磚樓的頂層,麵積約為150平米,東西朝向,分別連接園區的二層空中景觀步道係統與鍋爐區。由於園區工業遺產的保護策略規定了在建築外觀上不做大的改變,方案外觀上隻針對性的對門窗、欄杆扶手進行更換,整體保持老建築的工業感,並通過在建築中心位置加入兩道剪力牆以維護老建築的結構穩定性。
辦公室內部首先將原先的隔牆拆除,將整個空間變成一個完整的大空間。利用新加入的兩道剪力牆空間,設計成為相對獨立的主任辦公區與茶水間。南北兩側分別為開放工位區、會議室、吧台休息區等空間。
由於整個空間為長條形線性空間,工位被設計成為連貫的異形穿梭於長條形平麵之中。與工位對應的燈具照明的設計,也采用了這種連貫性有機造型的處理手法,在保證工位足夠照明的前提下,也成為空間中的一組構築物。大量采用這種連貫性的設計令團隊之間的聯係更加緊密,也給原先方正的空間增加活潑的趣味性。
辦公室的最南端利用辦公室的層高優勢設計一處小型二層空間,底層為會議室,二層為一個小型榻榻米休息區。這裏的樓梯空間既是交通,又是儲物空間,在特定時候又可以變為座椅形成一個小型的階梯影院,為工作之餘提供放鬆的場景。二層空間旁邊設計成小型吧台卡座區,平時用於休閑聊天,在工作緊張時期也可以用於實習生的臨時工位。
在整個辦公空間中,除了新加入的設計元素外,許多老工業建築的曆史痕跡予以保留改造。原先大型的儀表箱經過重新粉刷與維修被改造成為更衣室與儲藏空間,儀表箱下麵的水磨石地麵也被局部保留並重新拋光,辦公室的北側被設計成為整牆的書架與儲物櫃,以容納創意辦公室大量的文獻資料。書架的中心位置保留了老的辦公室的黑板,甚至黑板上的粉筆文字也被保留,老的記憶被植入了新的空間之中,希望在創造新的使用功能的前提下,盡量保留原先的工業味道。
整個空間的改造是在極低的預算造價下完成的,大量使用秸稈板這一低碳、可循環再生的材料進行空間、家具、燈具的設計。也體現了創意產業通過利用設計與創意重新發掘傳統行業新價值的核心理念。
Photos © hyperSity 工作室/archdaily




























