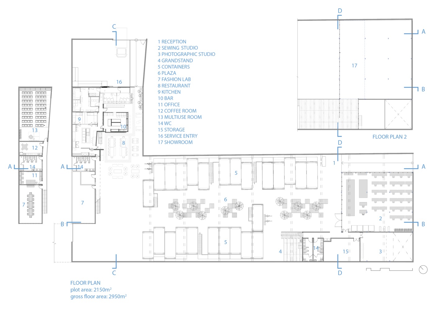
MALHA是時尚界的一個創新平台,它位於巴西裏約熱內盧,為創造者、企業家、生產者、供應商和消費者在時尚界建立一種新的經營方式,可以建立彼此間的聯係。整個空間主要由居民、攝影工作室、縫紉工作室、展示廳、天然食品餐廳、共享廚房、行政區域、多功能會議廳、協同辦公空間、禮堂等組成。
一些托盤被鋪在了整個公共空間裏,作為座位,還有一些小的植物床,這些床和沙發、長椅和桌子一起,營造了一種氛圍,把房子的氛圍和公共空間融合在一起。對於集裝箱內部的使用,設計師提出了六種不同的用途,包括辦公室,會議室和彈出式門店。
photos © Ilana Bessler
版權聲明:本站所有文章除投稿授權發布外,其他文字內容均為原創,享有著作權保護,未經許可不得以任何形式進行轉載(包括且不限於:媒體、網站、公眾號等)。所有項目照片/設計圖形版權歸原作者所有。本站部分內容源自網絡公開資源或用戶分享,如若侵犯了原作者的合法權益,可聯係我們進行處理。






















