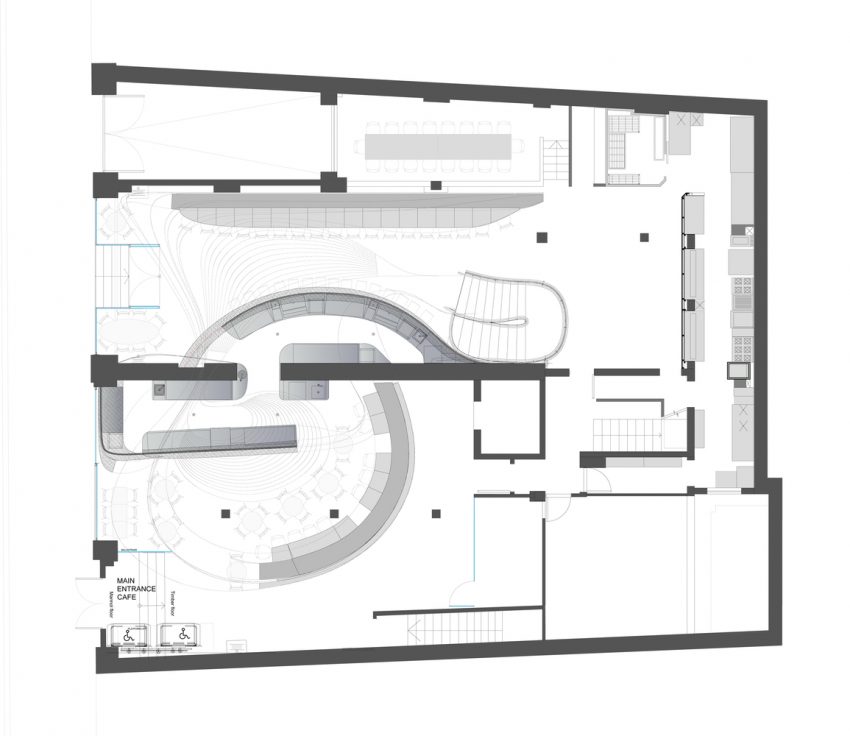
設計公司Enter Projects被委托設計了澳大利亞悉尼的LOT1咖啡廳和餐廳的內部。這座建築曾經是一個倉庫,現在已經變成了咖啡館和餐館。其空間的設計理念來自咖啡漩渦圖案。該設計探索了複雜的幾何結構,以及形式和功能的連接,利用了數字化的內部設計。並使用了澳大利亞本地材料的彎曲木結構,無縫地連接,展開和連接所有的功能。
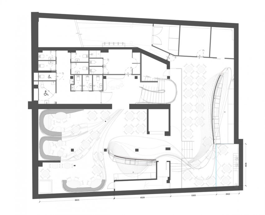
空間被剝離,揭示了建築物的現有織物; 能看見空間裏暴露的磚,砂岩牆,木柱和舊鋼鐵。精心設計的空間規劃,極大地增加了在咖啡店和餐廳之間的客流量。樓下的餐廳提供了私人休息室和用餐區,並提供露天用餐的場所。動態幾何圖形將許多空間與三維曲線交織在一起,
Photos © Brett Boardman
版權聲明:本站所有文章除投稿授權發布外,其他文字內容均為原創,享有著作權保護,未經許可不得以任何形式進行轉載(包括且不限於:媒體、網站、公眾號等)。所有項目照片/設計圖形版權歸原作者所有。本站部分內容源自網絡公開資源或用戶分享,如若侵犯了原作者的合法權益,可聯係我們進行處理。























