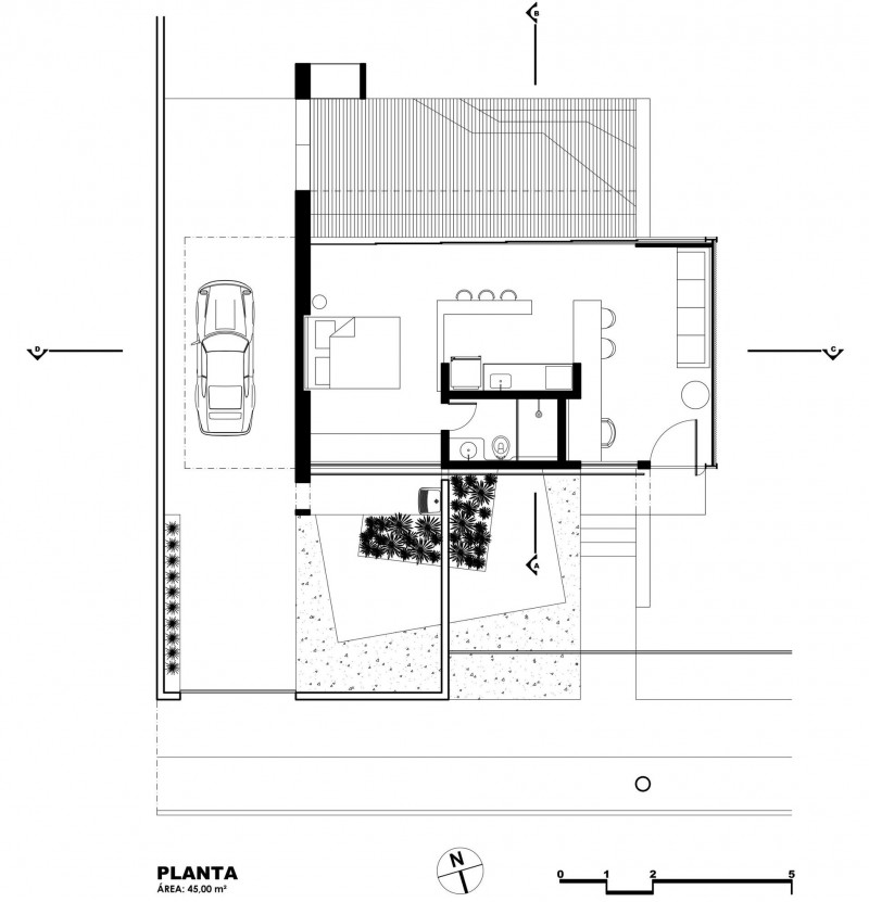
1220即為這棟住宅的門牌號,其位於巴西馬托格羅索州,由Alex Nogueira設計事務所設計,住宅總麵積為720㎡,建築麵積為45㎡。
強烈的幾何特性,為普通的房子增添了幾分藝術氣息,典型混凝土和金屬型材完美結合,值得一提的是,巨大的玻璃門幾乎占了整個後方門麵,並延伸到外麵的木板上,臥室、廚房、客廳的無縫化連接增加了不少的實用性。
Alex Nogueira設計事務所官方網站:Alex Nogueira
Photos © Alex Nogueira
Content Copyright © www.online4teile.com
版權聲明:本站所有文章除投稿授權發布外,其他文字內容均為原創,享有著作權保護,未經許可不得以任何形式進行轉載(包括且不限於:媒體、網站、公眾號等)。所有項目照片/設計圖形版權歸原作者所有。本站部分內容源自網絡公開資源或用戶分享,如若侵犯了原作者的合法權益,可聯係我們進行處理。






























評論(1)
為什麼會有這麼酷的房子啊?