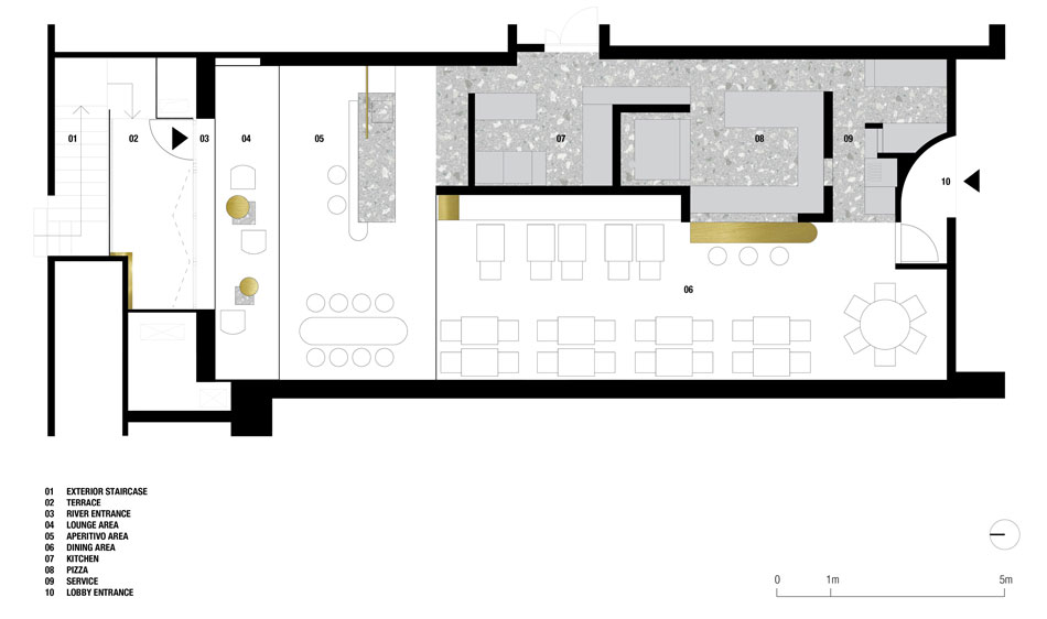
Lievito是一家新型的社交餐廳,由北京當地的MDDM工作室設計了這個200平米的空間。在這你可以分享美味的披薩餅,灰色石材的體量和黃銅裝飾的細節滿足了或許與友人分享一塊美味披薩,又或許享受一杯紅酒的社交空間的想象。
在這長條形的空間裏,南側從酒店大廳起至北側麵向一條河流打開。沿著長條形空間,設計團隊設計了一係列不同的微環境-從公共的到私密的,借用自然光線介入空間的不同的姿態為使用者創設不同的空間氛圍。一個可完全開啟的大型折疊門意在吸引顧客走進餐廳吧台和餐區。特製的黃銅屏風插在獨立的石頭吧台上,成為空間中精致優雅的視覺焦點。一些由黃銅製作的小元素節製地點綴在空間之中,豐富空間的同時並不打破原本優雅的灰色調。吧台區域為各種形式的社交活動提供了足夠的可能性。
photos © Jonathan Leijonhufvud
版權聲明:本站所有文章除投稿授權發布外,其他文字內容均為原創,享有著作權保護,未經許可不得以任何形式進行轉載(包括且不限於:媒體、網站、公眾號等)。所有項目照片/設計圖形版權歸原作者所有。本站部分內容源自網絡公開資源或用戶分享,如若侵犯了原作者的合法權益,可聯係我們進行處理。



















