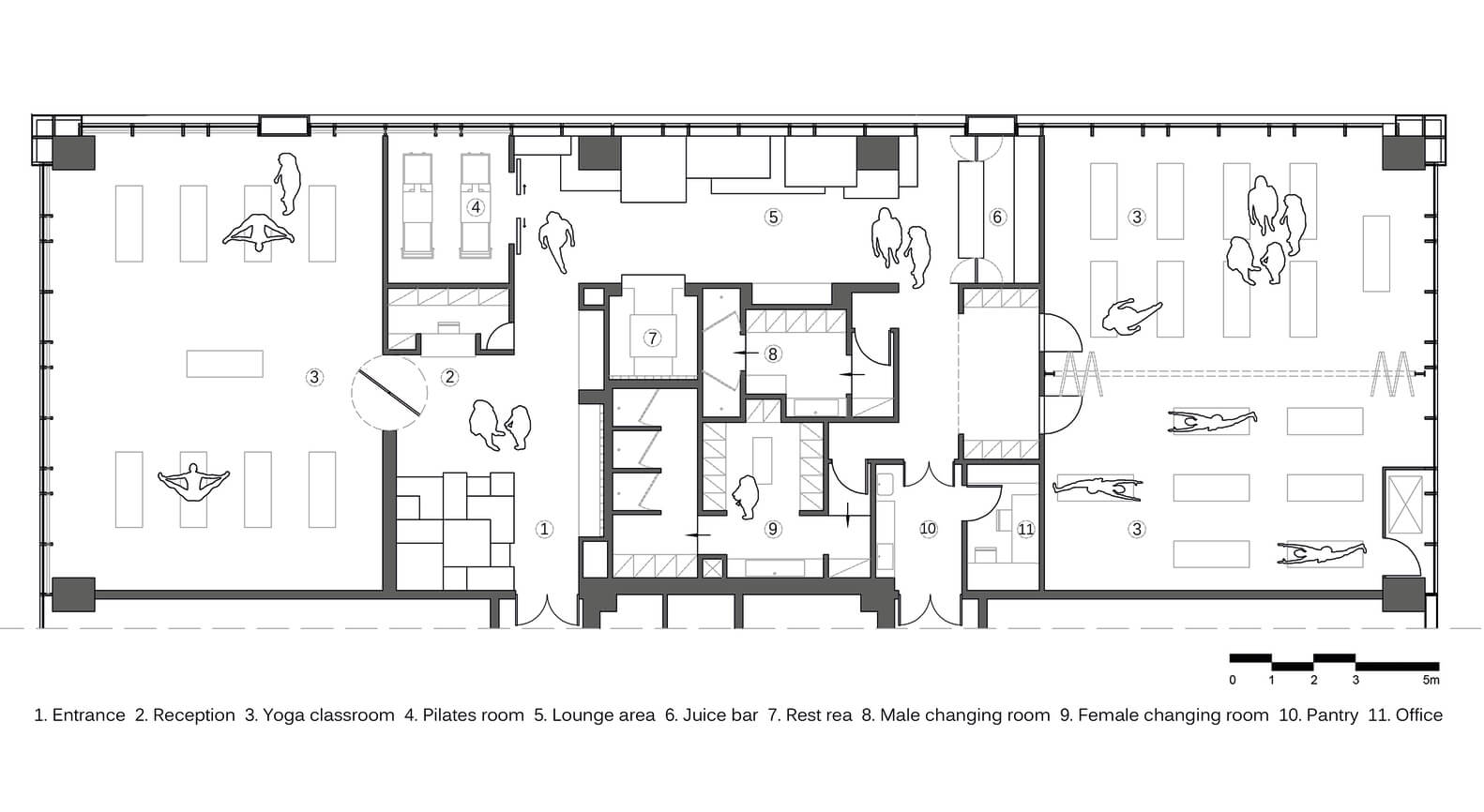
這間上海瑜伽教室由康希建築設計事務所設計,其靜謐的氛圍和平靜祥和的體驗與周圍密集嘈雜的生活環境形成對比。瑜伽館的內部空間被構思設計成城市的縮影。作為主體,不同的房間像是城市中聳立的建築而公共區域的空間更像是城市中來往的街道點綴著城市裏的風景。
室內的牆麵及地板都鋪上了鵝卵石、水磨石和水泥,仿佛漫步在城市中的街道上,寧靜平和。而這些原生材料和木製,竹子,編織物以及榻榻米這些柔和的材料在不經意間趨向於一種平衡的狀態。大部分材料都采納於20世紀的上海本地或者半殖民時期的建築,材料在空間上的分布和色調的平衡更像是在和城市作進一步的對話。
在休息室和接待處,設計師采用了不規則的木藝品及榻榻米平台,提供給客人一個小憩和靜思的地方。同時,燈光的光線通過竹子互相交錯,給人一種午後的太陽照射到身上暖洋洋的感覺,心情頓時平靜下來,平和的氣氛正好呼應了瑜伽館的主旨讓身心回歸自然。
瑜伽教室通過一個巨大的旋轉門和8米長的折疊門被分成了不同的區域,在私密領域和公共區域之間形成一個良好的平衡。走進瑜伽教室,形態各異的燈具和編製籃刻意的懸空,連同飄蕩在空中的瑜伽帶延伸至天花板,創造身臨其境的視覺效果,提高練習瑜伽的體驗。
© Joshua Tintner, Cai Yun Pu
版權聲明:本站所有文章除投稿授權發布外,其他文字內容均為原創,享有著作權保護,未經許可不得以任何形式進行轉載(包括且不限於:媒體、網站、公眾號等)。所有項目照片/設計圖形版權歸原作者所有。本站部分內容源自網絡公開資源或用戶分享,如若侵犯了原作者的合法權益,可聯係我們進行處理。

























