家是來自時光的禮物,居住30年的老房子,有著四代同堂共同的點滴回憶。本案由構設計為其翻新,無多餘浮華的點綴裝飾,用最純粹、真摰的設計,麵對生活中的表情,營造出家最放鬆的休憩區域。空間的材料以線條、幾何型態,經由不同材質的演繹,展現出各個場域的鮮明意義。玄關、書局、餐廳利用具回廊效果的雙動線,打造采光明亮、動線流暢的家庭新生活。室內三個大儲藏室,收納著家的傳承與滿滿的共同回憶。巧妙的收納空間不僅僅把家的效能發揮得比想象中大,更是孩子的遊戲場。
基本資料
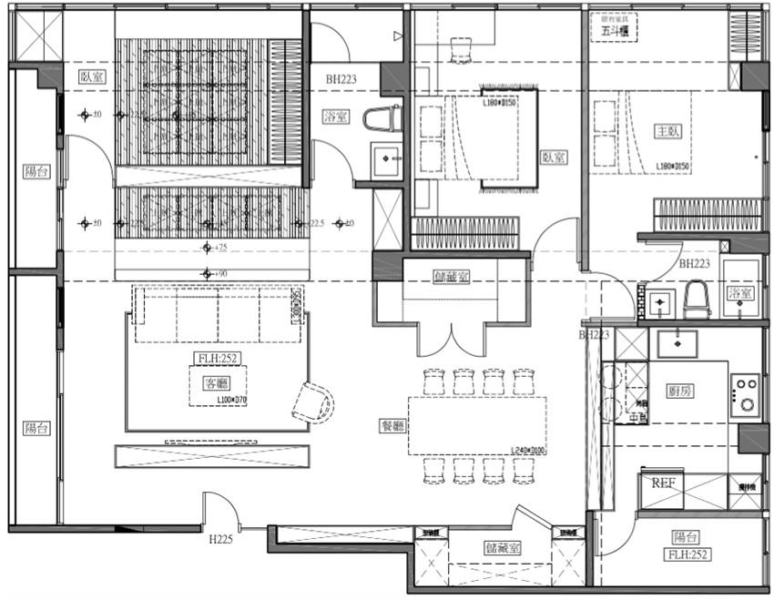
中國台北/屋齡35年/室內麵積132㎡/戶型格局3房2廳2衛/居住人數3大
<需求>
充足收納空間。
通透采光。
無障礙空間。
<各別空間>
1.客廳設計:
整麵落地窗帶來自然光線,白色烤漆電視牆搭配溫暖木地板,讓開放式空間中充滿放鬆氣息,加上入口處電視牆具有雙麵機能,另一麵同時是鞋櫃,塑造居家雙動線設計,家人可隨著動線隨意移動,小孩也多了自在的遊戲空間。此外,屋主希望將天花板化作真實天空,因此用淺藍色明管跳色,清新北歐風宅也能有不一樣的活潑玩心。
2.書房設計:
為增加長型屋采光,設計師將原本客廳落地窗延伸至書房,增加日光麵積。書房刻意設計成開放式區域,閱讀、使用計算機時方便和在客廳看電視的家人互動,兩個空間用水泥板區隔,添加木係元素與後方木作櫃體相互呼應,縷空房屋造型象征溫馨居家回憶、歸屬感,也能放置相框、植栽等展示物品。另外,地板也妙藏玄機,隱藏式收納再也不用煩惱行李箱無處擺放。
3.餐廚設計:
女主人平時喜愛烘培,因此廚房重新規劃成開放式空間,地麵用不同紋路木地板作為場域分割,背牆以淺藍色烤漆玻璃帶出清爽氛圍,讓平時下廚時光顯得悠閑寫意,也方便清理,加上電器櫃做到頂部,滿足東西較多的一家人日常需求。在橫梁不包起情況下,設計師在餐廳置入流明天花板,類似天井概念,提升長型屋中段亮度,光源均勻灑落,居家空間更舒適宜人。
4.臥室設計:
臥室床鋪架高,保留斜麵天花板不特意包起,弱化臥房給人的壓迫感,床頭背牆運用薄荷綠營造清新感,層架、抽屜和窗邊書桌均為木工,而左邊衣櫃則為係統櫃。
5.客房設計:
原先客房麵積較大,設計師將部分空間交還給公領域,此區改為多功能的複合式場所,以係統櫃為主做出收納空間,高低差區別場域,九個隱藏式收納,可放置棉被、行李箱等大型物品,左側為活動式桌麵;此區同時是小朋友活動區域,客人來訪時也能打地鋪。避免視覺壓迫感,設計師不特意將橫梁包起,天花板斜麵設計反而有另一種設計感。
6.浴室設計:
主牆用複古磚做出變化,不僅增強衛浴空間個性感,也能適度降低預算;地磚選用自然風板岩,表麵細致紋理與柔嫩色係,與住宅風格一致,偏灰色調也不易發現髒汙。
7.收納規劃:
居住時間久,收納重要性越提高,家中有許多集郵冊、多年累積下來的物品需要收納,因此自然也是當初主要需求之一,設計師規劃了三個儲物區域,內部不做設計,留給屋主較多發揮空間,目前置入鐵架,方便擺放收藏品。
8.建材挑選:
木地板是營造全屋溫暖氣息的重要推手,另外,設計師也推薦客廳與書房隔間的木紋水泥板,比起一般水泥板更有變化性,同時具備防潮、不變形等特征,戶外陽台也能使用。
9.家具配置:
家具是住宅不可忽視的一環,在此案中沒有置入太多家具,保留了空間機動性,當家中人數較多時,長凳也可搬移到客廳使用。另外,因家中多是輕柔色係,設計師特別強調餐廳深色實木餐桌,麵積為 100 x 240 公分,整體份量感十足,為居家配置中增添沈穩氣息。
photos © Hey!Cheese

























