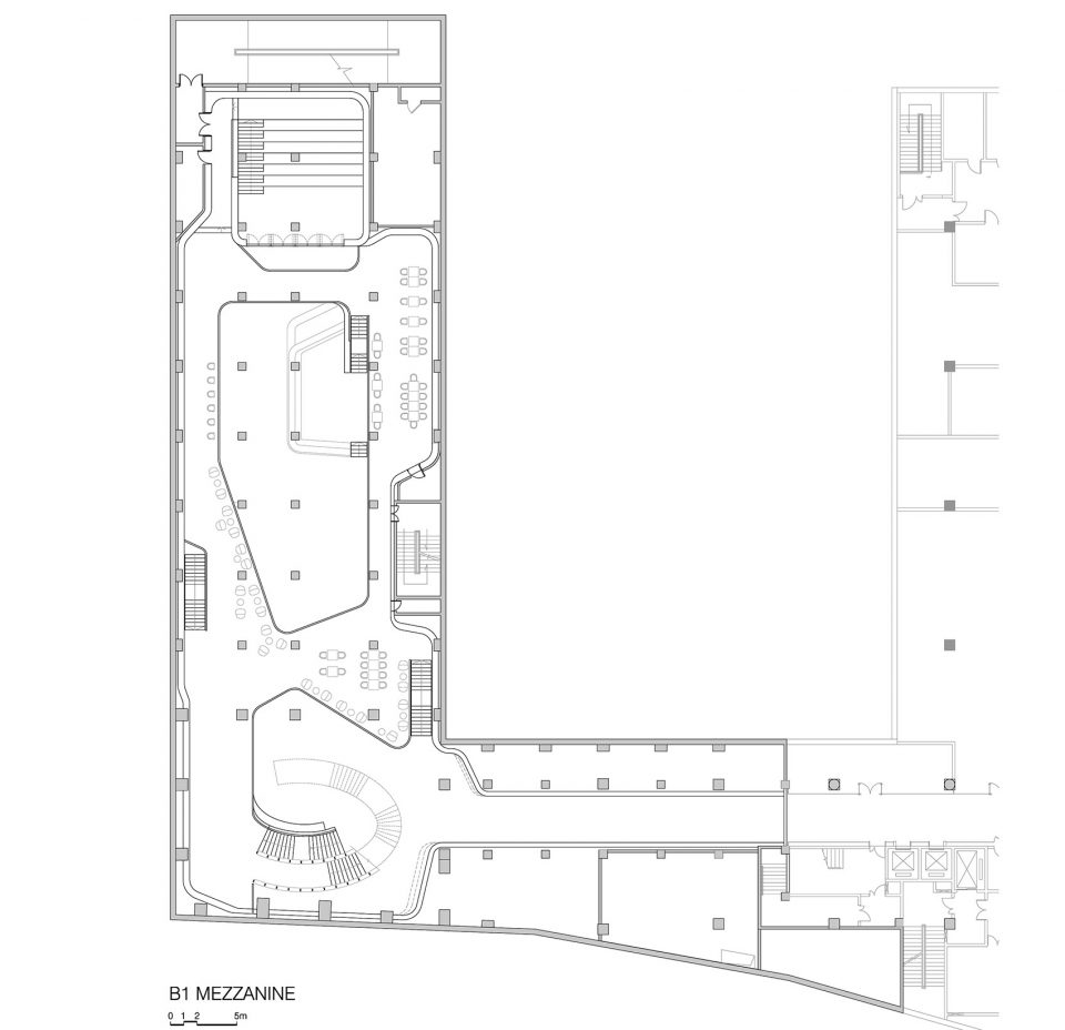
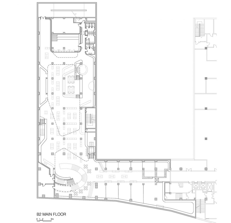
由意大利建築設計公司 Kokaistudios 創造充滿設計感的築蹊生活書店,位於浙江省第二大城市寧波市中心,1844 藝術生活中心廣場地下,建築第一眼就已經讓人留下深刻印象,由扇形玻璃排列出現代化外觀,也呼應內部 L 型內部半透明壓克力板、水泥地麵的原色低彩。
書店內部有著如迷宮般蜿蜒廊道,縷空吊掛書架錯落,加上壓克力板將陽光自然灑落,形成彷佛光圈般聚焦主體,一進入便能從俯視欣賞全貌;設計師不隻采取幾合拚排,書刊區域運用溫暖木色,將鐵件與木板作為獨立書架,中央貼心置入椅墊,看到有興趣的書本方便坐下閱讀。築蹊生活書店顛覆舊有書籍型態,轉為閱讀與生活、學習、餐飲緊緊相連形式;此外,設計師不以純淨空間為滿足,設立草綠色環境滿足視覺活潑感,也適合家長帶孩童飽覽童書,從小培養閱讀習慣。
photos @ Dirk Weiblen
版權聲明:本站所有文章除投稿授權發布外,其他文字內容均為原創,享有著作權保護,未經許可不得以任何形式進行轉載(包括且不限於:媒體、網站、公眾號等)。所有項目照片/設計圖形版權歸原作者所有。本站部分內容源自網絡公開資源或用戶分享,如若侵犯了原作者的合法權益,可聯係我們進行處理。




























