拱廊的計劃是什麼?
2022年,MOU建築工社受邀為拱廊計劃設計其位於南京的公共文化空間。拱廊計劃的名字來源於德國學者本雅明未完成的寫作計劃。拱廊是19世紀巴黎消費文化誕生的實體空間,購物中心以街道市場的形式出現,狹窄蜿蜒,容納了咖啡館、修理店、沙龍、餐館、劇院等場所,本雅明驚歎於這些“內部的林蔭大道,玻璃屋頂”,人們不必再經受風吹雨打,拱廊就像是一座城市,是世界的縮影,這也是拱廊計劃文化空間想要實現的一個美好願景。希望通過本次改造設計,能夠激活本土社群活力,促進城市社區文化生活的交流與聯結。
宛如公園般的公共場所
項目位於南京洪武北路116號2-3層,這棟建築正好處於從繁華街道進入到社區生活的邊界點。正麵沒有入口,隻能從側麵的肚帶營街道的一條很不顯眼的樓梯通道才能進入。第一場去現場勘查,發現樓梯通道的入口狹窄冗長,倘若未來樓上作為公共文化空間確實有一種大隱隱於市的感覺。我們利用鋼板在原始入口通道處再嵌套進一個白色走廊,將入口門內退到內側,新的白色走廊和街道形成一個過渡灰空間,與街道建立起新的連接方式。
∇ 軸測分析圖
原建築雖然位於街角,擁有比較開闊的視野,但是二三層場地的使用原先是一家教育培訓機構,內部利用片牆分隔出了若幹個相連的小房間,特別是二層臨街兩側窗戶竟然是被完全封堵上的。我們可以想象學生在如此封閉,沒有自然采光的環境下學習是一件多麼糟糕的事情。於是拆除了窗戶外圍的封閉結構,內部環境得以重見天日,透過窗戶看向室外,仿佛置身於城市規模的尺度中。如何營造出一個輕鬆、自在、具有包容性的空間氛圍至關重要。
∇ 空間分布分析圖
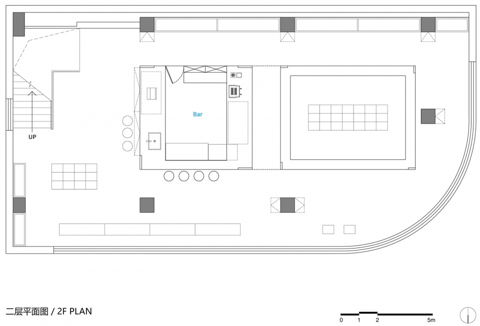
二層是一個功能複合型空間,在這個140平的單層空間內需要滿足圖書展陳、收銀、文創展示、咖啡、調酒、客座區域、休閑、活動沙龍、Live等功能。白天是以書店為業態模式對外開放,晚上則會在此基礎上融入酒吧的功能。
作為公共空間是需要能夠包容不同人群使用的場所,大家在這裏能夠創造出自己的空間,發掘出屬於自己的使用方式。就像在公園裏,我們時常看到長凳上亦或是涼亭內有人靜靜地讀書;有嬉鬧的孩子;有促膝攀談的大媽;有圍坐下棋的大爺…不同年齡不同目的的人聚集在一起呈現出一片輕鬆的場景,有各種事件在同一時間和空間內發生,有著豐富多樣的狀態。我們希望在這裏也能夠實現公園般的場景意向。是否可以有這麼一個涼亭也能實現這樣的場景並解決相應的問題呢?幾經推敲後,建構可以容納所有功能和場景的涼亭方案得以成型。
一組3.6mX10m的長方形涼亭同時收納進吧台、陳列、休閑和活動沙龍等功能。原始場地梁下高度隻有2.4米,頗顯壓抑,因此構建的亭子必須足夠輕盈通透才能抵消空間的消極影響。最終被掏空隻剩下功能和結構屬性的亭子被澆築的混凝土基座輕輕抬起,懸浮在場地中央。
在拆除的時候發現了它建造過程中的許多記憶點,這些即使看似不完美的記憶點在原始混凝土的表麵呈現出一種原始的氣質。於是,我們清除了抹灰層,不斷打磨,讓這種原始氣質上升到具有自身魅力的狀態,原建築的記憶得以延續。
從入口上到二層,正對著樓梯口的方向,可以看到白色金屬書架依托牆麵順次展開,與涼亭中間形成一段通長的走廊,從書架上取下書籍後身體可以順勢後退坐在亭子邊緣的長凳上閱讀。亭子的內外都是可以坐人的,中間被圍合成的區域像是劇場,進入的方式很特別,需要抬腿跨進去。到了晚上,這裏也成為了三五好友小酌的“逍遙池”。
構建彈性的場景使用機製
二層空間在晚上同時需要滿足酒吧的功能,如此受限的麵積是無法滿足同時構建兩種獨立的場景使用機製,因此轉而考慮如何讓兩者功能屬性互相融合借用的方式來實現。
新構建涼亭的吧台區域白天是咖啡製作的功能,晚上則是調酒的功能;柱子上可翻折小桌板,白天可作為閱讀桌來使用,晚上就是一個獨立的單人位小桌台;不論白天還是晚上大家都可以坐在亭子四周和臨窗一側的長凳上。兩種功能場景重疊在一起,甚至我們每天也會看到左手捧著書右手端著酒杯的情景在拱廊計劃出現。
如果把圖書展陳和活動狀態進行分類,可以分為靜態場景和動態場景。這兩種場景各有各的優勢和不足。作為固定的常規展示,這些靜態的圖書陳列雖然維護比較方便,但也容易讓人感到乏味。對於精心策劃的動態活動,如果順利的話可以持續保持人氣和氛圍,但也會加大運營成本,在沒有開展活動的時候硬件也就失去了它存在的意義。除此之外,我們實際還麵臨著日常的圖書展陳所需要的展台規模大小;活動時所需要滿足足夠的座位數;以及活動結束後這些椅凳的搬運撤離;如何收納儲藏等問題。因為場地所帶來的諸限製因素,我們不得不考慮采用融合靜態場景和動態場景的運營機製。
通過構建方凳的組合機製,將若幹個問題融合成一個問題,最終得以巧妙化解。方凳可以自由堆疊成展台,根據所需要展陳的規模可以自由擴大或縮小。一旦場地需要用於舉辦活動,大家可以順手搬個凳子在場所內找到自己舒適的位置坐下,等到活動結束後再放回原處作為展台使用。我們希望方凳的組合機製不單單是解決功能的問題,更是希望能夠通過這個過程和所有參與者之間建立起深刻的聯係。
離散配置,通過走廊創造環境
三層場所的常態化功能主要是自修室、心理抱持室、辦公室以及圖書的展陳。傳統的自修室是在一個大房間裏盡可能多的擺布座位,為了兼顧功能的相對私密性,又能實現場地內部的流動性,於是有了將空間進行拆解、分離的想法。有別於傳統在一個大空間裏做出隔間,想要創造出一種截然不同的空間係統。
最終空間被拆解成6個獨立的房間,設置成同一高度不同尺度規模,在場地內離散分布,通過走廊又彼此連接,並創造出周圍環境。其中兩個容納6人間的自修室和2人間的自修室在其內部我們還設置了走廊。內部走廊一側用於圖書的展陳,因為走廊分別設置了兩個進出口,所以可以選擇任意進出的方式,從書架上選擇一本書後身體可以本能性的倚靠在窗洞處。房間及其內部走廊,白色輕盈的房間既獨立又不完全封閉,和外部走廊空間保持著適度的透明度。
沒有將這些功能塞滿在一個大房間裏,而是由離散的配置方式來創造場地的開放性,同時也賦予了這些獨立房間使用上的彈性。考慮到場地也會策劃舉辦小型展覽,除了外部的走廊可以作為開放式展覽空間,這些獨立的小房間也可以作為獨立的內容來展陳。並且可以根據展覽規模靈活使用這些獨立房間,也可以同時舉行不同主題的展覽。
透過空間縫隙看得到內部靜態或動態的場景,穿梭在眾橫交錯的走廊中,身體時而擴大,時而收縮,仿佛置身於街巷裏,漫遊在微縮的城市中。
∇ 一層平麵圖
∇ 二層平麵圖
∇ 三層平麵圖
項目信息
項目名稱:拱廊計劃文化空間
項目類型:書店文化空間
設計方:MOU建築工社
項目設計:2022年5月
完成年份:2022年12月
設計團隊:付仕玉、陳靜、李逸雯
項目地址:南京市玄武區洪武北路116號
建築麵積:280㎡
攝影版權:吳昂、DONG建築影像、吳狀
合作方:南京邦喜建材有限公司
材料:鬆木多層板、水泥、鋼板、陽極氧化鋁、玻璃










































