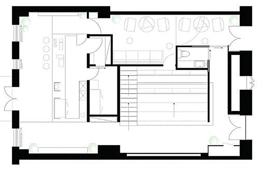
日本設計師青山周平為大業傳媒集團在北京規劃了一間結合文化活動、媒體及商務用途的交流中心「好時光空間」。兩層樓約160平,劃分為入口吧台、大廳、休息室、會客室及輔助區域五大空間。整體以無彩度的灰、白搭配大量木作,給人具現代感的整潔印象;休息室及會客室的隔間使用超白玻璃,除了讓室內空間顯得通透而統一,又方便置身其中的賓客一同觀看大廳的活動。各通道及房間皆設計線條圓滑的拱形天花板,視線朝上延伸時會看見相互交錯的圓弧,讓結構更有層次。
大廳正前方設置投影布幕,正對著底座位區的木製台階,台階可依不同需求選擇是否收起,展開時可直接作為座位,最多可容納 70 位觀眾,收起時則能延伸講台空間,也可作為小型表演場地。照明部分大量使用內嵌崁燈,不讓燈具阻礙天花板的流暢線條,並在樓梯、書架、走道等處設計間接照明,完成低調又具現代感的商業空間設計。
photos @ B.L.U.E.
版權聲明:本站所有文章除投稿授權發布外,其他文字內容均為原創,享有著作權保護,未經許可不得以任何形式進行轉載(包括且不限於:媒體、網站、公眾號等)。所有項目照片/設計圖形版權歸原作者所有。本站部分內容源自網絡公開資源或用戶分享,如若侵犯了原作者的合法權益,可聯係我們進行處理。

















