奇客巴士是一家定位為拉近科技與生活的距離,讓科技把生活變得更美好的“高顏值”黑科技集合店。作為奇客巴士的品牌升級,零壹城市建築事務所為其打造了全新的店麵空間設計產品。在其杭州西溪銀泰店的奇客巴士支付寶旗艦店中,設計受“劃分東經與西經的格林威治線”啟發,采用充滿未來感的科幻空間以及對於傳統的人文情懷的區域對比,來描繪技術發展的過程中未來與傳統、冰冷的科技科技與溫暖的生活之間的對撞,以此營造出貼近品牌定位的高科技零售店。
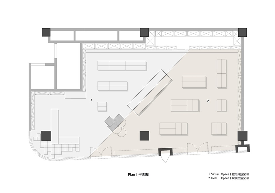
在設計中,奇客巴士以“虛擬與現實的連接者”的角色出現:將規矩的方形場地進行斜向劃分,而劃分的0度交接線如“格林威治子午線”般作為空間的主軸線,將整個空間分割成強烈對比的兩部分,分別定為“虛擬科技空間”和“現實生活空間”,於180度相遇。“格林威治子午線”使虛擬和現實在最大界麵上相互對撞,也對空間形成了導向性,將客流引入空間內部。人們在購物的同時,還可以同時腳跨“虛擬”和“現實”兩個空間攝影留念。
以一條從地麵延伸到天花板的無形分割牆為界,兩側空間的差異為顧客提供了“虛擬”與“現實”截然不同的空間體驗。明暗分明的兩側空間是針對不同性質產品打造而成的,一邊擺酷酷的、年輕化的高科技產品,一邊放潮潮的、生活化的傳統產品。明亮的“虛擬空間”與深色的“現實空間”之間,雖形式不一而涇渭分明,但其展櫃布置與空間材質的統一規劃加強了整個設計的完整性。
由淺色矩陣構成的高科技產品區域裏,透光的“能量盒”展櫃和通透光滑的表麵為“虛擬空間”營造出如履夢境的未來感。大麵積鋪設深色木板的傳統產品區域,搭配金屬質感的黃銅,形成質感粗野的工業氣息濃厚的“現實空間”。
室內燈光為營造不同的空間氛圍而采用特定的照明手法。“虛擬空間”的照明設置在頂麵矩陣的相交節點,以此強化空間的矩陣關係,並且從整體上塑造出明亮的“虛擬空間”;而亮度驟降的“現實空間”,則采用金屬質感的吊燈與暗藏燈帶的組合照明,在深色木材烘托的氛圍中,形成傳統人文情懷交融的空間體驗。
photos @ Elton 朱恩龍, Xianjuan Hu 胡嫻娟
















