公寓運用了大量水泥材質,從電視牆麵的清水模質感牆,到地板的混合水泥建材,搭配加寬原本窗戶麵積,引入大量采光,同時利用夾膜玻璃處理,即便透光也可兼顧隱私。清爽灰色係的生活氛圍,讓人忽略此處原本是 32 年老公寓,百處待修的狀況下,藝棠設計重新製定格局使用,以開放式規劃為主,將所有收納貼齊牆麵,並整合多元空間,讓這裏除了是與太太的自宅工作室,更是一狗三貓的玩樂天地。
基本資料
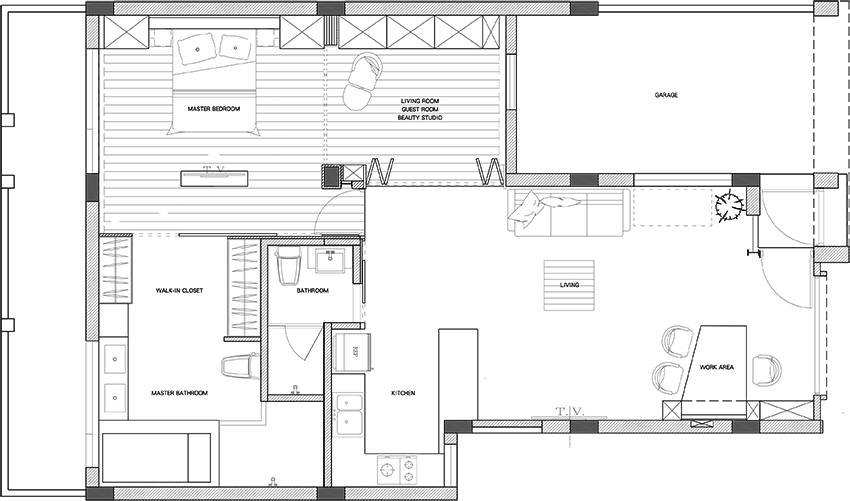
中國台灣高雄/屋齡32年/室內麵積90㎡/戶型格局2房2廳2衛/居住人數2大1狗3貓
<需求>
作為自宅+工作室使用。
喜歡開放式格局和水泥材質。
需要大量收納空間,甚至連家具也希望能一並收到櫃體內。
<各別空間>
1.客廳設計:
將原本三房空間改成兩房,通往主臥與起居的門片都是以拉門或折迭門設定,因此串連客廳、餐廳與廚房的公共空間,成為放大視覺的超寬敞舒適區域,沒有太多家具擺放,主要收納都留牆麵壁櫃,客廳隻以水泥材質為主體,搭配橘褐色沙發和木棧板改裝桌幾點亮活潑感。而電視牆麵所有管線都已預埋,外表再利用清水模質感材料加上養護漆打造,呈現設計師所喜愛的輕工業風。沙發上方更預留貓跳台空間,讓一家同樂的貓咪多了活動場地。
2.廚房設計:
原本廚房位置隱身在空間內部,喜歡開闊感受的設計師,運用加裝吧台設計,在角落創造開放格局,同時用白磚拚貼成人字型創造獨特感。這裏也是貓咪的貓砂擺放區,就位在吧台下方,設計師特別裝設貓咪進出活動門與抽風機,形成良好抽風循環,也能打造不被狗兒幹擾的寧靜區域。
3.餐廳設計:
餐桌擺放在靠近窗台的位置,考慮到同時是設計師工作的地點,需要大量采光,因此將原有窗戶放大,並以夾膜玻璃處理,原本一樓老公寓采光便不好情況下則不另外裝設窗簾,白天不開燈也依舊明亮。
4.臥室+起居室設計:
不同於公共空間的水泥地麵,主臥室透過人字型木地板拚貼,營造複古又溫暖的感受。開放式規劃也在此處展現,隻要打開起居室的萬向拉門隨時都能看到客廳,引入更多采光。同時設置在床鋪前方的可旋轉電視架,能滿足在床上觀看,沐浴時也能享受的需求,電視架背部則運用九宮格收納擺放香水等陳列。收納小物的規劃不僅於此,電視上方的天花頂端擁有許多縮小型方格,裏頭全都是太太喜愛的火材盒小汽車,無需因為空間受限而犧牲興趣,貼心又愛妻的舉動在此展現得一覽無遺。
善用拉門創造寬敞空間感的設計師,將起居室同時設定為太太工作時使用的美容室,利用鋼刷白橡木染黑折迭木門成為與客廳區隔,另一側和主臥相連部分,則選擇隔音效果較好,並可全部收藏起來的萬向拉門形成活動隔間,隨著需求改變使用型態。由於這間起居室也同時擁有客房需求,設計師特意設置 280 公分的白色貼壁收納櫃,甚至連美容床也能一並被隱藏,讓空間更顯幹淨利落。
5.浴室設計:
位於主臥的浴室空間擁有太太最喜愛的大浴缸,和主臥相連僅靠拉門設定,隨時保持寬敞視覺,其中在雙洗手台的旁邊更隱藏更衣室需求。
























