初識官也街大概是十年以前, 在我們北京工作室附近,依稀記得大概是一個不大的門麵,材質已經記不清楚了。當時豆撈火鍋盛行的年代,一家名不見經傳的澳門火鍋小店,並不惹眼。餐廳味道很好但價格卻不貴,慢慢的我們就成為了餐廳的老主顧,幾年後從門口經過突然發現它吃掉了隔壁的門麵,當然我們並不了解在這幾年裏他們做了哪些努力。直到一天店老板Frankie找到我們,並委托我們幫他設計一家新的分店,位於北京央視大樓正對麵的CBD位置。
角色對換,從餐廳的老主顧成為餐廳的設計師,從那以後我們對官也街有了深層次的了解。先天優勢是我們對餐廳的發展經曆和文化已有認識,餐廳名字的由來就源自澳門小小的一條街道“官也街”,這也是出身澳門的餐廳老板Frankie從小長大的一條街。用官也街來命名,訴說一個澳門人心中對故鄉的牽掛,無論腳步走多遠,在人的腦海中,隻有故鄉的味道,孰悉而頑固,就像一隻在高空中翱翔的風箏,一頭鎖定了千裏之外的異地,另一頭則永遠牽絆著記憶深處的故鄉。
也許我能夠想到十年前Frankie創業時候的艱辛,無論是當年名不見經傳的小店,還是今天名聲遠播的國貿餐廳, 官也街都一直追求著食物本身的味道。“澳門食者民之本也”吃本身一直都是人最重要的事情,現代人對於溫飽來說吃確實簡單,但是要想吃出品質並非易事。官也街就把這件事做到了極致。空運的鮮活海鮮和極品澳洲牛肉有機農場的新鮮蔬菜保證了食物的本身味道,再加上精心熬製8小時以上的湯底更讓食材錦上添花。當你喝上第一口湯的時候你一定會覺得不虛此行。國貿官也街餐廳坐落在京城最繁華的CBD,有北京東三環做好的景觀帶,超高的玻璃幕牆讓CBD美景盡收眼底。
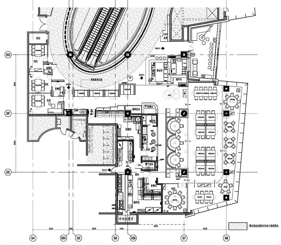
在設計之初我們就確定了以玻璃幕景觀區域為設計的切入點,利用原有的下沉空間把餐廳設計成一個微縮小劇場,以玻璃幕區域為最低點向內部空間依次抬高,並形成三個劇場式台階,那麼在不同高度上就餐的人們就能更好的欣賞到三環美景,其他的剩餘空間較為私密正好作為包間使用同時也提高了零散空間的使用效率。在材料使用方麵主要運用了原木為主的自然材質,並利用最為原始的搭建手法製造出豐富的空間效果。
另外值得一提的就是餐廳的外立麵設計,原來的紅線是半弧形曲線,如果按照原來的形狀立麵效果勢必被平麵化,也不能與內部空間有機結合,所以我們以退為進把弧線轉化成折線,這樣一來就能讓原本平淡的立麵變得多變且負有韻律感,同時利用時空轉化關係延長了外立麵的長度無形中增加了餐廳的展示麵。當然,在施工的過程中也遇到了很多困難,比如:地麵水磨石與銅板密度存在差異造成了地麵發黑和平整度不夠。
還有原木的尺寸加工與現場尺寸不吻合造成安裝困難。再有天花造型遮擋了消防噴淋等等諸多問題。當然有時候現場出現的問題是難以預見的,但這也是設計的魅力所在,現場的突發事件更能讓我們增長臨時處理問題的能力,更能增長我們的設計熱情,對於我們每一個項目都是一個全新的課題,每一個案例都是獨一無二的,學習與設計我們永遠在路上。
關於VI我們也下了功夫,品牌識別圖像設計承襲傳統、創造經典為首,運用東方翠玉綠搭配經典古銅金做搭配,將享用鍋物時的相聚與圍繞作為形象展演。字體圖像設計分為上下部,頂部展現掀起鍋蓋時熱氣延散的輕盈,筆畫收尾則有湯煲鍋物在味蕾上所留下的餘韻,鮮濃深刻。品牌形象設計的延伸則將煙霧之間的虛實,轉化為具現代感的透明漸變線條,透過彼此交錯、層層堆棧的畫麵,除了演繹鍋物熱氣升騰的透氣感也提升作品畫麵表現的層次。
photos © Luluxi.





























