Aurora Arquitectos將葡萄牙一座百年曆史別墅改造成了一座現化的旅舍Hostel in Parade,旅舍位於葡萄牙裏斯本的海濱郊區卡斯卡,雖然建築外部經過精心修複,恢複了昔日的宏偉氣息,但其內部已經徹底改變了,極簡主義的風格符合當代氣氛,以迎合青年旅社的功能要求,同時也適應了建築年久失修的新結構設計。
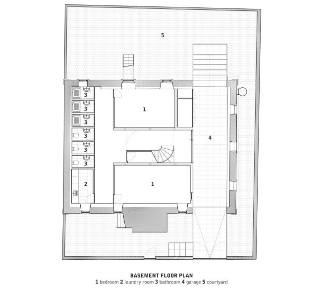
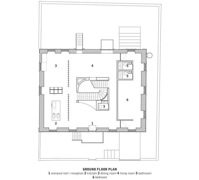
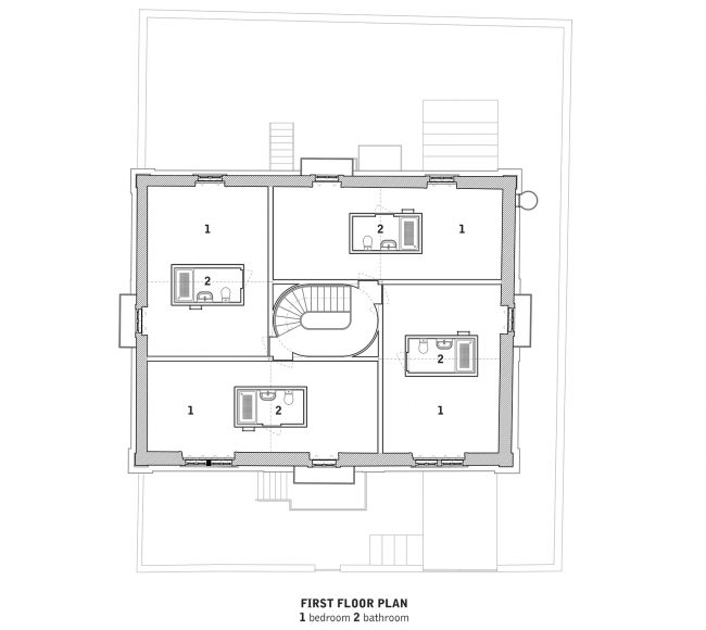
內部布局由一個3乘3的網格控製——中心是一個垂直的核心,它包含一個連接地下室和地麵和一樓的樓梯,並整合了所有建築的垂直服務。明黃色點亮了整個室內空間,並將自然光從天窗引入室內。
設計師被要求為建築賦予極高的靈活性,以滿足未來的使用需要。首先建築要滿足旅舍的功能,其次還要為一戶家庭提供適當的居住空間。因此房間中設置了包含浴室功能的獨立盒子,可以在需要較大臥室時輕鬆地移除。整個建築的結構也源自於簡單的未來轉型的邏輯。主要的結構網格是由層壓鋼結構組成的,在厚板和牆壁上有輕鋼框架。
photos © o mal o menos.
版權聲明:本站所有文章除投稿授權發布外,其他文字內容均為原創,享有著作權保護,未經許可不得以任何形式進行轉載(包括且不限於:媒體、網站、公眾號等)。所有項目照片/設計圖形版權歸原作者所有。本站部分內容源自網絡公開資源或用戶分享,如若侵犯了原作者的合法權益,可聯係我們進行處理。









































