該住宅是為一對夫婦和他們的三個孩子而設計。考慮到既有的公寓顯得有些擁擠,建築師決定為業主打造一個開敞的、擁有一體化空間的住宅。場地麵積約為150平方米,坐落在市區,擁有優越的地理位置,距離最近的車站僅有15分鍾的步行路程。業主夫婦希望擁有一間寬敞的客廳,使家庭成員能夠舒適愉悅地聚集在一起,同時還要為三個孩子們準備一個足夠大的儲物空間,並隨著他們的成長容納越來越多的東西。
設計師試圖在有限的空間內創造足夠多的儲物空間,同時使五口之家的生活質量得到改善。在此基礎上,設計師以儲物空間為切入點,對空間進行了盡可能高效的利用。
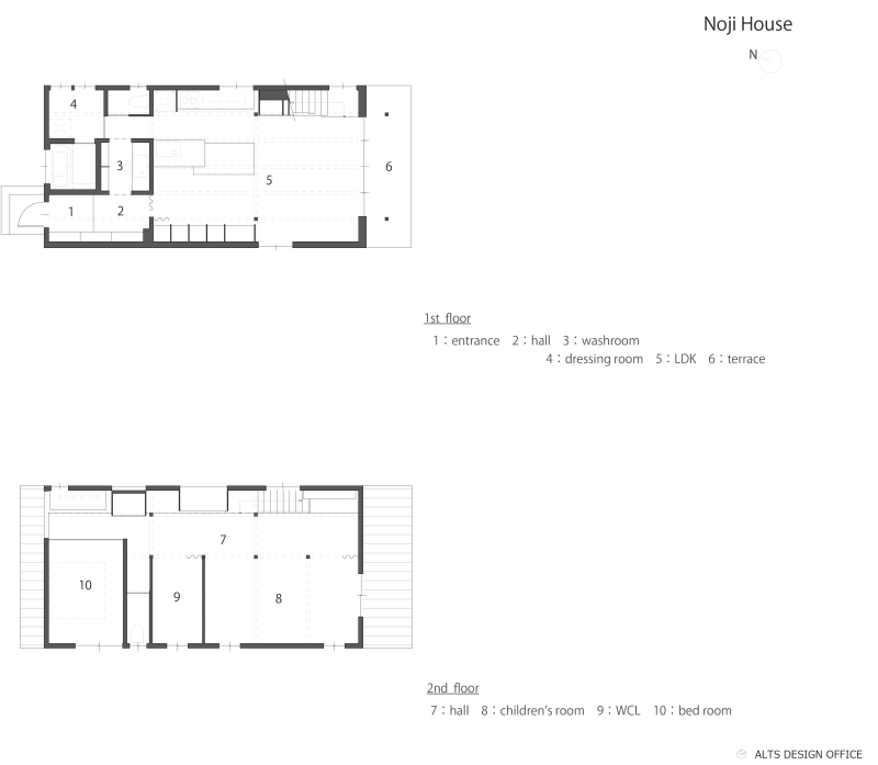
儲物空間往往是一些封閉的壁櫥、儲藏室或衣櫃,在有限的空間內設置儲物空間意味著要犧牲大量的起居空間,例如客廳等。考慮到被存放的物品種類,設計師嚐試為存儲空間賦予額外的功能,使其不僅僅作為存儲空間而存在。在改造後的住宅中,樓梯不僅成為了儲物空間的一部分,還可以用作學習的桌子,同時椅子也可以用來存放物品。通過為儲物空間賦予另外的功能,住宅中得以空出更多空間供孩子們遊戲和學習。相互交織的儲物空間、功能空間和起居空間共同創造了多樣且豐富的空間體驗。
設計師將儲物空間設置於牆壁之中,使其不僅僅局限於收納的功能,而是成為了日常起居的一部分。由於減少了空間的浪費,孩子們可以在寬敞的空地上自由玩耍,大人們也可以隨時看到他們遊戲的樣子。具有多重功能的儲物空間最終使住宅變得意想不到的寬敞開闊。
photos © KENTA KAWAMURA
版權聲明:本站所有文章除投稿授權發布外,其他文字內容均為原創,享有著作權保護,未經許可不得以任何形式進行轉載(包括且不限於:媒體、網站、公眾號等)。所有項目照片/設計圖形版權歸原作者所有。本站部分內容源自網絡公開資源或用戶分享,如若侵犯了原作者的合法權益,可聯係我們進行處理。































