在孟加拉國達卡一個僻靜的郊區,建築公司river & rain將四個集裝箱的部分改造成一幢三層的住宅,並起名escape den。它由鋼架骨架和回收的容器組成,房子由一係列的大開口、露台和大量的戶外空間組成,給人一種輕盈、精致的感覺。
architecture firm river & rain has repurposed parts of four shipping containers into escape den, a three-storyresidence in a quiet, secluded suburb of dhaka, bangladesh. comprised of a steel frame skeleton and the recycled containers, the house is completed with a series of large openings, terraces, and plenty of outdoor space that attribute a lightweight, refined feel to its otherwise bulky appearance.
在達卡的bashundhara住宅區內,river &rain的房子孤零零地矗立在一大片土地上,讓人想起了鄉村浪漫主義。當地的建築工作室開發了這個設計,住宅上有著較大的窗口和反光的材質表麵,在室內可以充分利用早晨的光線,而在晚上則可以發出暗淡的光線。
evoking a rustic romanticism, river &rain‘s house stands solitary on a large piece of land in dhaka’s bashundhara residential area. the local architecture studio has developed the design with large openings and reflective surfaces, which allow the interior to make the most of the morning light and emit a dim glow at night.
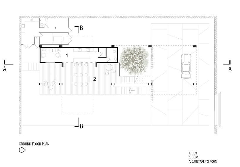
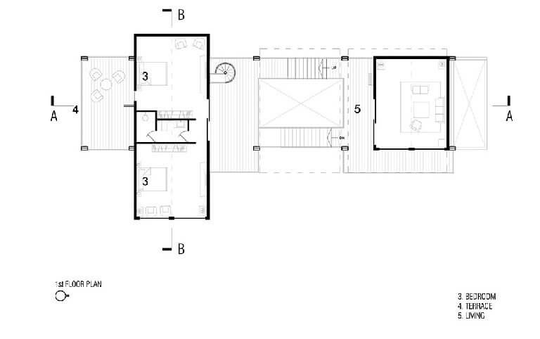
escape den包含了一層的廚房和用餐區,而起居室和臥室則位於二層。三個容器通過一組樓梯連接,樓梯也連接著房子的各種平台和露台。
escape den contains the kitchen and dinning area on the ground floor, while the living room and bedrooms are situated on the two upper levels. the three containers are connected via a set of stairs which also connects the house’s various decks and terraces.
完整項目信息
項目名稱:Container housing design
項目位置:達卡, 孟加拉國
項目類型:建築改造/住宅設計
使用材料:集裝箱
設計公司:river & rain
設計團隊:kazi fida islam, md abdul awyal, sumaiya shameem, mousumi kabir, irtefa iradat, abid khan
攝影:river & rain




























