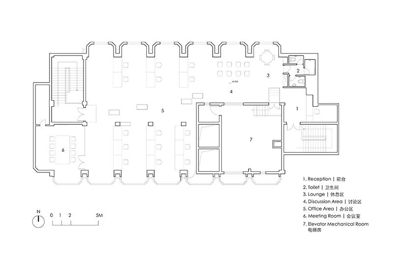
零壹城市建築事務所新辦公空間設計是對杭州市中心一棟大樓舊有頂層空間的改造更新。原有頂層空間是大樓屋頂加建的倉庫,包括電梯機房、消防樓梯間和傾斜的排水屋麵,麵積為350平方米。設計理念通過把握建築材料的同質性、異質性以及時空性,創造舊有倉庫空間和新辦公空間的並置。
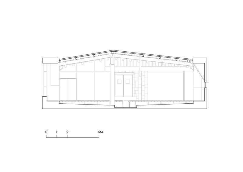
為了彰顯正統建築語言與建築“方言”之間互動並行與辯證關係,設計保留、改造了一係列能夠揭示其原有搭建的“非職業”的設計元素:鋼構架屋頂通過白色噴漆處理,使原有鏽蝕的混凝土梁柱依然作為結構核心被完全保留;房間采用架空的白色地膠板,五個鏤空設計的地下櫥窗玻璃鑲嵌其中,展現了原有粗糙傾斜的排水屋麵;從屋頂到倉庫,從廢棄到重新利用,疏散門的雨棚和粗糙的馬賽克牆暗示著這片空間定義的變遷。
在這個延續、重組、再現的空間設計中,馬賽克和裂縫質感的材料層次,與白牆的嶄新交織出一種曖昧的凝視。褪色而帶有多次修補痕跡的舊水泥牆體與白色新牆體的並置創造了另一個層次的異質性。重工業感的電梯機房通過窗口展示成為事務所空間的一部分,延伸了時空感並創造了其自身的語境。壞損的橙紅色疏散門扇被移植作為事務所會議室的大門,使舊建築的元素得到尊重,煥發它旺盛的生命力。零壹城市建築事務所的空間設計,試圖在與空間功能吻合的職業建築設計和粗獷的原有非職業設計之間,創造一種辯證的對立關係。超越單一的設計風格,謳歌創作的不拘一格,這也是“零壹城市”的設計理念之一。
關於零壹城市建築事務所:
零壹城市建築事務所(LYCS Architecture)是一家創立於2010 年的國際新銳建築設計事務所。事務所基於數字城市建築設計平台,對中國城市發展和建築問題進行批判性研究和創新性設計,共有來自中國、歐洲、美國的設計師20餘人。目前設計項目涵蓋城市規劃、住宅、商業、文化教育、辦公、展示及相應的室內設計等多個類別,項目分布在北京、香港、上海、深圳、杭州、三亞等地。
零壹城市的設計作品獲得2014年“A+Awards-類型分類-辦公室室內設計”評委特別獎,2013年“中國室內設計十大年度人物”,2013中國建築與藝術“青年設計師獎”,2013LEAF商業建築室內設計提名,2012世界建築新聞-最佳住宅設計獎提名,2011加拿大Azure最佳建築與設計最受歡迎獎,2011現代裝飾國際傳媒獎-年度辦公空間大獎,2010年威尼斯建築藝術雙年展“中國新銳建築創作獎”,2008年VELUX國際建築設計競賽銀獎等各類獎項;並曾參展於2013上海藝術設計展,2010、2008威尼斯建築藝術雙年展等。(以上文字信息來自零壹城市建築事務所)
零壹城市建築事務所官方網站:零壹城市建築事務所
Photos © LYCS Architecture
Content Copyright © www.online4teile.com





















