峴港是越南的一座著名的海濱旅遊城市。它不僅有美麗的海灘,還有美不勝收的漢江和山茶半島。峴港也是通往世界遺產地會安途中的一個旅遊目的地。因此近年來峴港由於旅遊業而迅速發展起來,建設了許多度假村與酒店以服務來自世界各國的遊客。但是旅舍(hostel)這種酒店類型在這四五年才受到注意並逐漸建設起來。這種類型的住宿在峴港並不流行,因此並沒有足夠多的旅舍來服務這類需求。
越南旅舍位於漢江市場的對麵,這是整個峴港對所有居民和全世界的遊客來說都最著名的景點。漢江市場被視作城市的心髒。每天數以千計的遊客前來參觀購物,尤其是購買本地特產。此外,從越南客棧到浪漫的漢江步行隻需一分鍾;從這裏出發,遊客可以方便地遊覽整座城市。
越南旅舍的設計采取了極簡主義的方式,摒棄了一切複雜的元素以降低投資成本,同時依舊保障使用效率的最大化。因此我們使用了許多簡單而平價的材料。同時我們尤其限製了可能造成環境破壞的材料的使用,例如油漆、石膏等等。我們選用了環境友好的建造方案,例如在屋內砌築生土磚而非抹灰牆體,以控製水泥的使用。此外,我們還使用了許多樹木和自然照明,引入太陽光和自然風以讓整個空間更加通風而友好,這種做法也降低了材料的硬度。
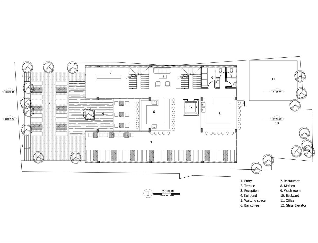
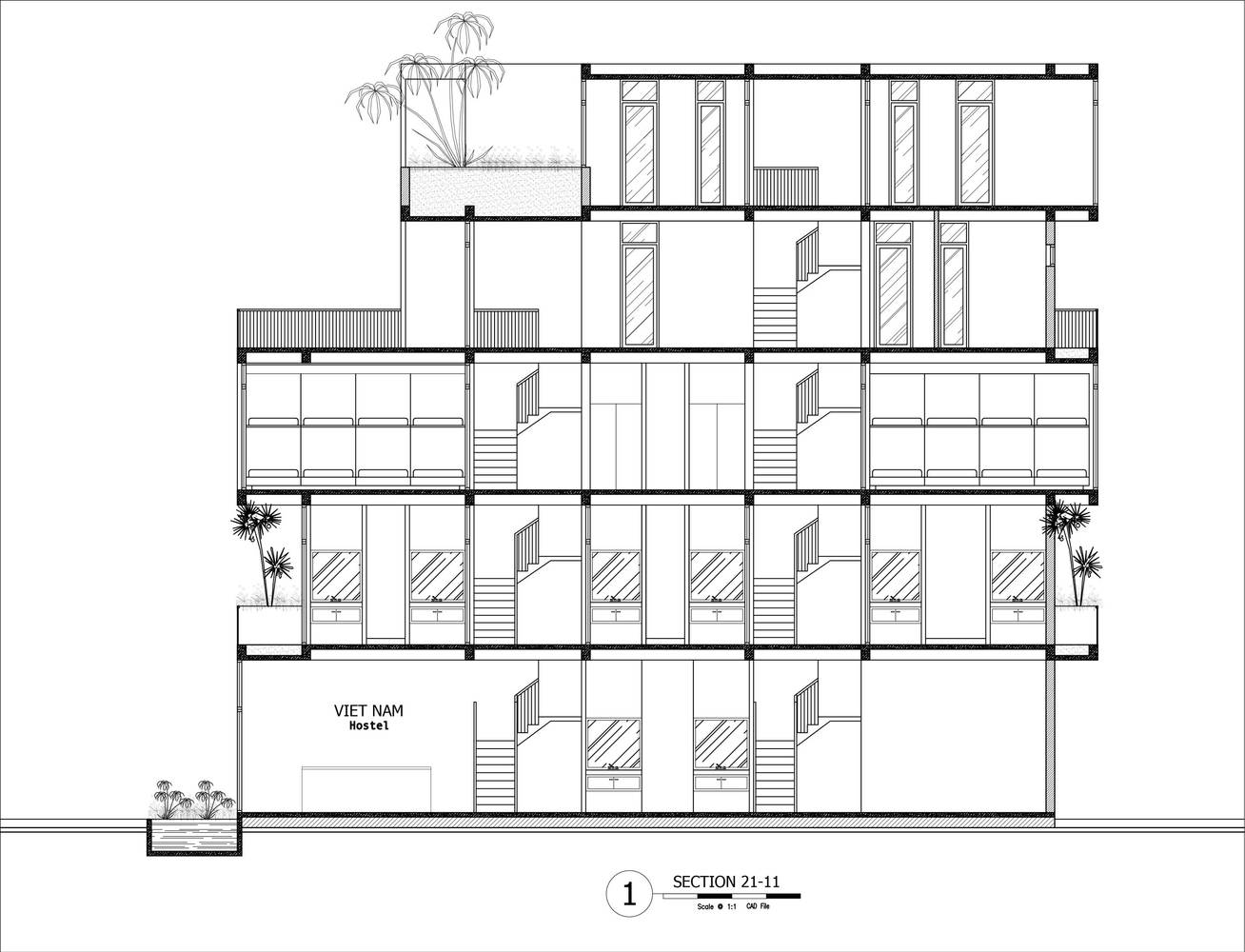
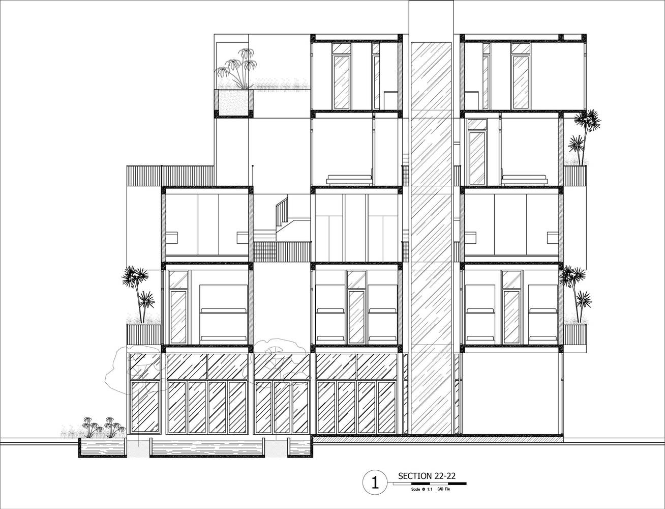
在一層:我們將整座建築推到後麵,以保留出泊車與花園的空間,並隔離漢江市場與街道嘈雜的噪音。此外這片區域還可以用來享用咖啡以及觀看街景。在室內的一邊是用於接待的前台,其餘部分則用作餐廳和咖啡廳,接待旅舍的住客和外來的常客。建築的後部是辦公室和花園。玻璃電梯營造了寬敞而清新的感受。
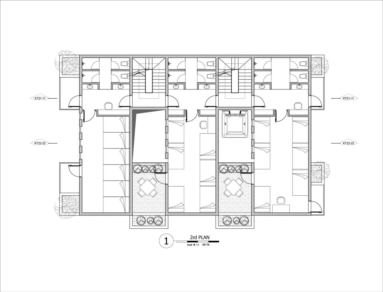
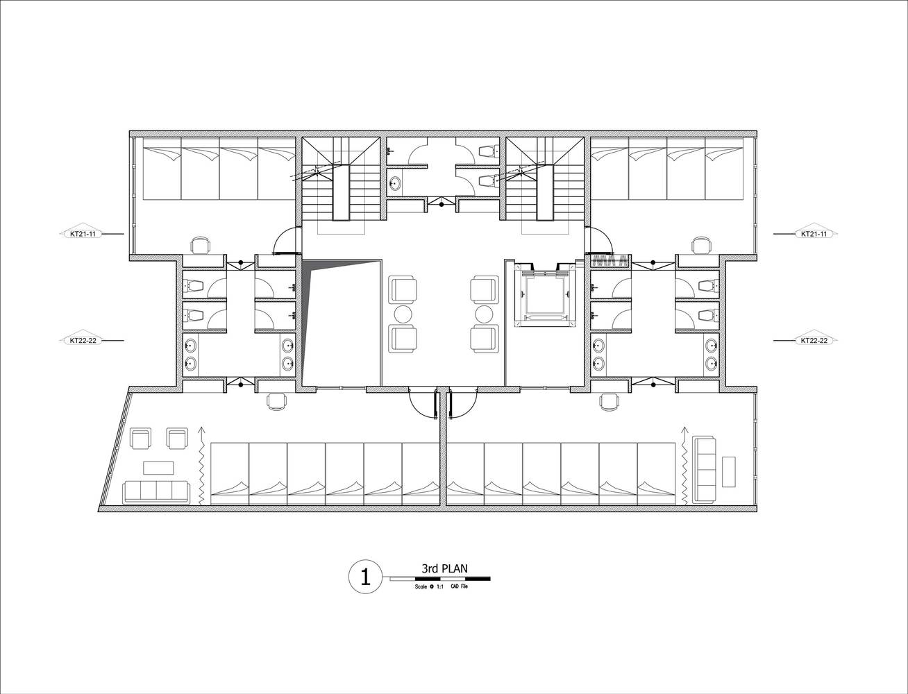
在二、三層:這兩層是居住樓層的開端,容納了多人間的宿舍。在房間之中是一個有著綠色樹木的天井,住客可以走到這些區域工作、休閑、交談以及舒適地吸煙,同時避免對房間裏其他人的幹擾。
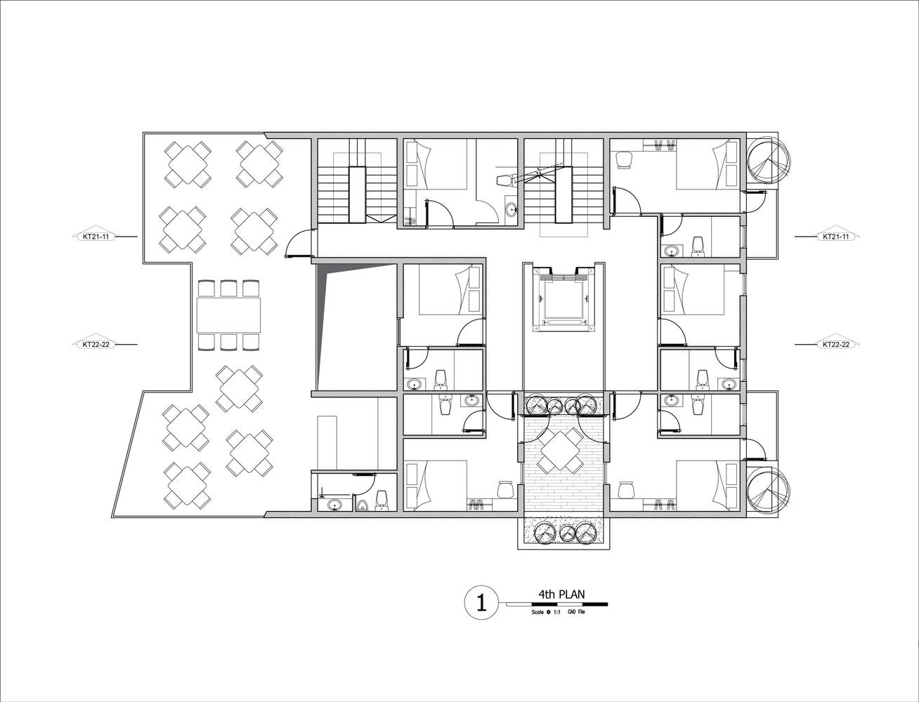
在四層:這一層包括了大床間、娛樂區、咖啡店以及共享廚房。
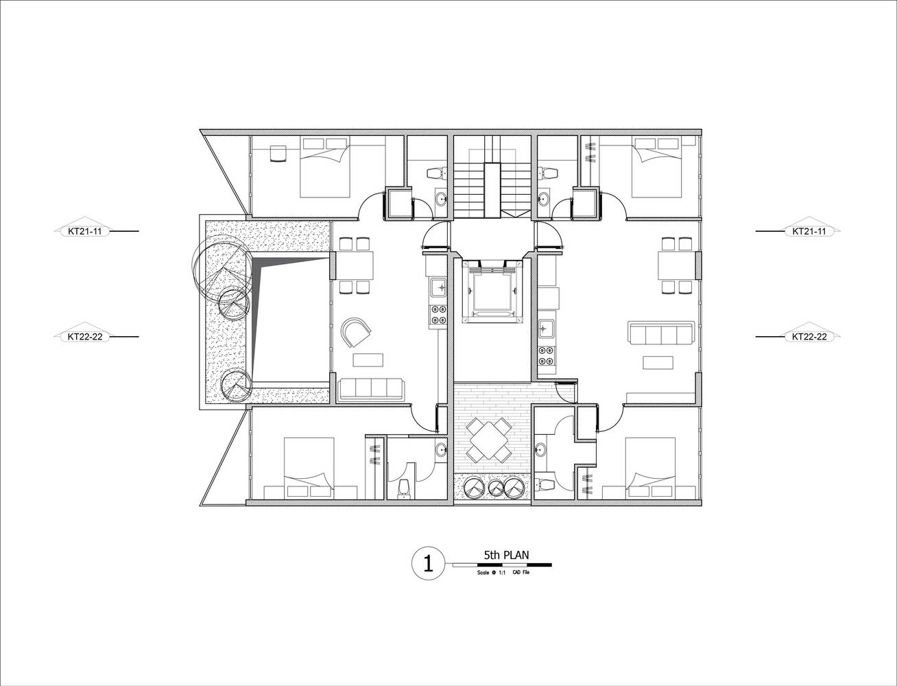
在五層:我們設計了兩套公寓。為什麼要這麼做呢?有兩個原因:首先,這塊用於建設的土地是租來的,所以房主需要一個能夠保證收入的方案;在上麵建公寓的話,可以輕鬆地收到比旅舍更高的租金。第二,由於這一地區對度假公寓的需求巨大,但周邊地區並不能滿足這一需求,因此公寓的出租率能得到保證。
設計和建造越南旅舍的目的是為來到峴港的訪客帶來精彩的體驗。通過這個項目,我們想對公眾傳達這樣的信息:我們完全能夠在低成本、選擇對環境危害較少的建設方案的情況下,仍然建造出漂亮的作品。最重要地,它們能夠滿足用戶的需求。
▼二層平麵圖
▼三層平麵圖
▼四層平麵圖
▼五層平麵圖
▼立麵圖
▼剖麵圖
完整項目信息
項目名稱:The VietNam Hostel
項目位置:越南峴港
項目類型:酒店空間/旅館
完成時間:2018
項目麵積:600平方米
設計公司:85 Design
主創設計:To Huu Dung
攝影:To Huu Dung


































