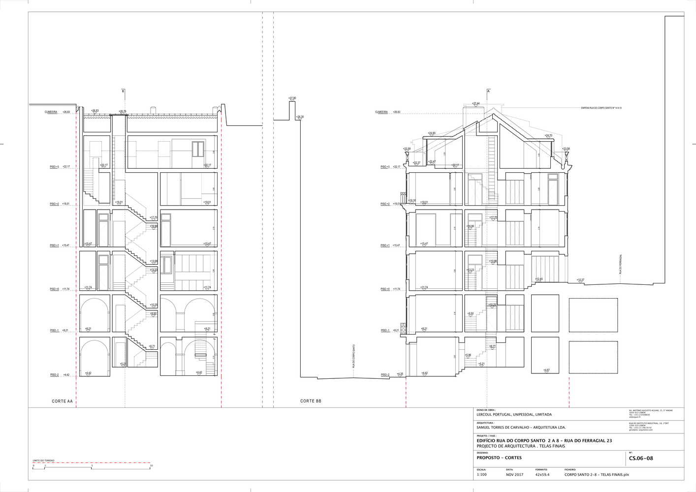
位於葡萄牙裏斯本的Corpo Santo 6 公寓有兩條不同樓層的通道,主要入口是通過Rua do Corpo Santo街道,次要入口是通過7米高的Rua do Ferragial街道。這種差異源於位於Rua do Corpo Santo街道下的兩個半地下的樓層。
The building in question has its access made by two streets at different levels, the main access being through Rua do Corpo Santo and the secondary through Rua do Ferragial, which is at a height of 7 meters. This difference originates two semi-buried floors, below the ground of Rua do Corpo Santo.
該建築可以追溯到十八世紀,在裏斯本城市中得到了完美的構建。該建築共有6層,前兩層用於商業,其餘四層用於住宅。
The original construction dates back to XVIII century and is perfectly framed within the Lisbon urban network. The building consists of 6 floors, with the first two being dedicated to commerce and the remaining four to dwellings.
在商店一層,前兩層的路麵是用大石板鋪成的,還有由柱子支撐的拱形邊緣,由橫向拱門加固,這是當時Pombaline建築的典型特征。此外,Corpo Santo大街的主入口也得到了維護,並修複了石頭砌成的中庭。
At the shops level, the first two floors were recovered with the pavement made up of large stone slabs, as well as of the vaulted edge supported by pillars, reinforced by transverse arches, which are a typical characteristic of the Pombaline building of that time. Also the main entrance on Corpo Santo Street was maintained and recovered with atrium in stone.
每棟公寓樓層都有兩個住宅,這被認為是建築的初始布局。隻有最後一層被改變了,而這一層恰好是以複式公寓的形式組織起來的。
Each apartment floor gives rise to two dwellings, as is believed to be the initial layout of the building. Only the last floor (in mansard) was changed, which happens to be organized in the form of duplex apartment.
在室內,住宅的設計特點是注重細節,在自然環境下使用石材和木材創造溫暖、舒適和現代的環境。
On the interior, the houses are characterized by the great attention to detail, creating warm, cozy and contemporary environments with the use of stone and wood in its natural state.
屋頂保留了原有的形狀,但重新定位增加了生活區,並創建了一個小露台,可以欣賞塔霍河的美景。建築立麵被修複,保留了原有的窗框、石材砌體和金屬護欄,這些共同維護了Pombaline建築的建築基礎。
The cover was retained in its shape but was repositioned to increase the living area, and to create a small terrace with stunning views over the Tagus River. Building façades were recovered, preserving the original window frames, stone masonry and metal guards, which together maintain the architectural foundation of Pombaline architecture.
完整項目信息
項目名稱:Corpo Santo 6公寓
項目位置:葡萄牙裏斯本
項目類型:住宅空間/公寓住宅
完成時間:2018
項目麵積:11818.77平方英尺(≈1098平方米)
使用材料:石材、木材、金屬
設計公司:Samuel Torres de Carvalho Arquitetura
攝影:Alexander Bogorodskiy









































