LOFT中國感謝來自 超級平常空間設計 的辦公空間案例分享:
空間並非填充物體的容器,而是人類意識的居所。我們所要關心的不是房屋形式或舒適與否的分析,我們想要研究的實際上是很簡單的形象,就是幸福空間的形象。” ——《空間詩學》
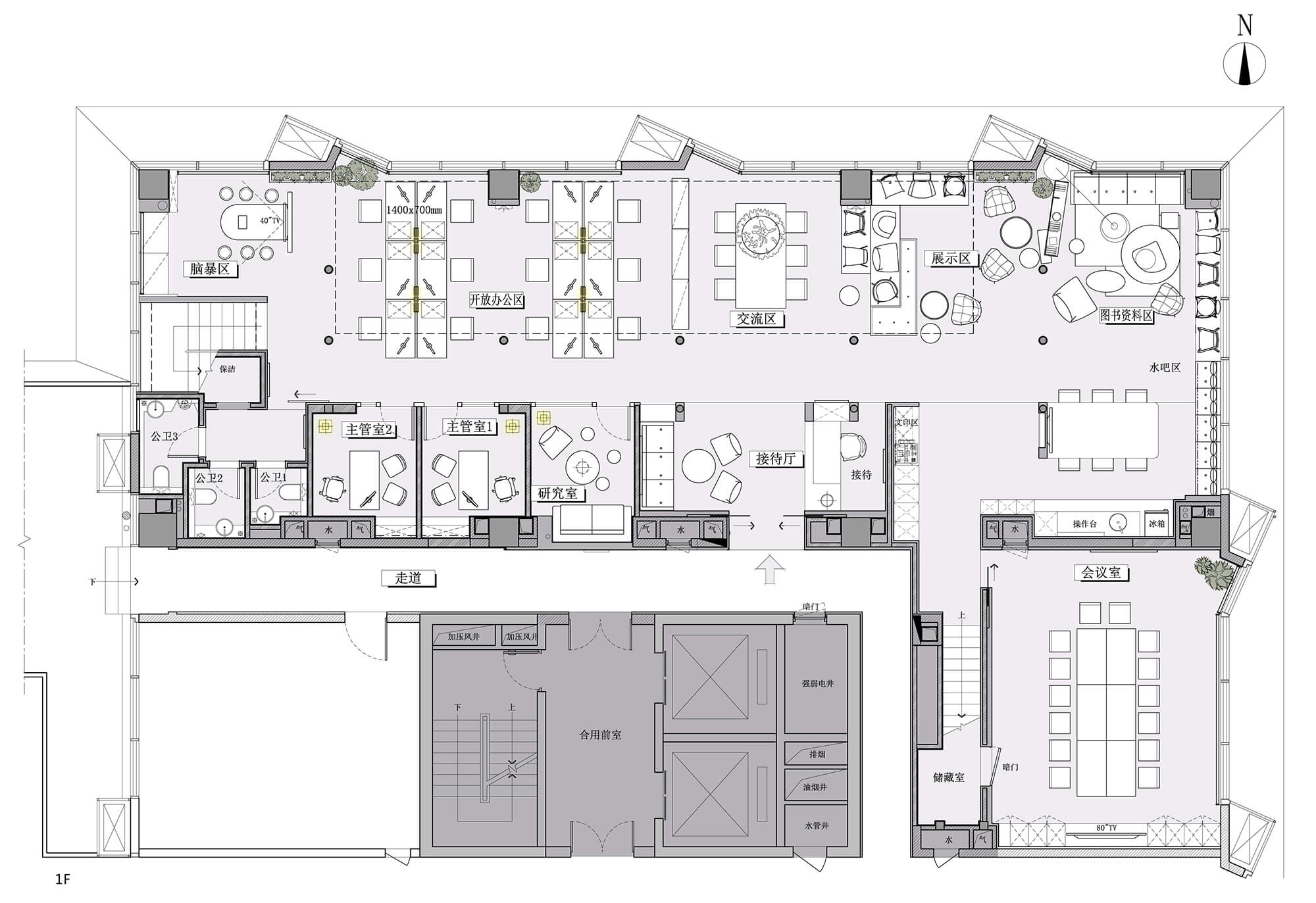
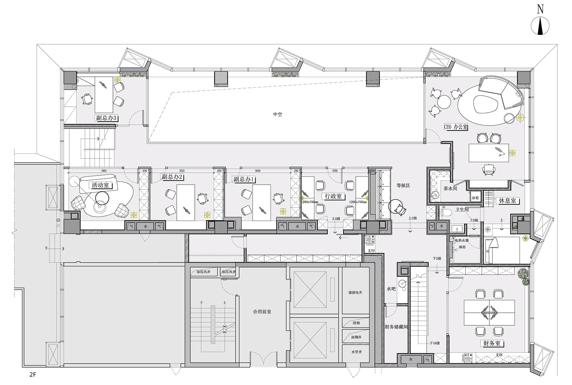
如何讓工作與生活的界限在一個空間裏消融,如何使共事的人與人之間回歸簡單樸實的交流,是南寧格洛伊辦公室的設計訴求。這與超級平常崇尚“容易被忽視卻能真正改變生活”的簡約理念不謀而合。他們提取自然、簡單、色彩、童趣等關鍵詞,構建了一個具多功能和情感聯結的辦公生態。
格洛伊項目麵積500m2,建築層高5.09m,超級平常團隊遵從了結構顧問的建議,計算出最輕薄又堅固的樓板搭建兩層空間,並優化結構柱與牆體的位置布局,創造出敞亮通透的空間且達到使用麵積的最大化。
不加修飾的白淨牆麵和大麵積的落地門窗為通高的公共空間奠定簡潔的基調,紅黃藍色塊穿插跳躍於地毯、家具和配飾,色係之間的微妙轉換恰到好處,賦予純白空間豐富的表情卻不覺淩亂。永生苔蘚綠牆充當巨幅掛畫,更為空間注入大自然鮮活的生命力。
靈動開敞的空間使用方式滿足了員工對固定工位或共享工位的自由選擇,精心考量布置的溝通交流區域將室內弱化成一個環境背景,人作為空間的核心釋放自己的能量,重獲孩提時的好奇無懼。
從全世界搜羅而來的現代家具經典之作分布在五百平米的空間中,其卓絕的工藝水平與永恒的美學價值成為當下的靈感源,驅動每個人細微的內心感觸和真實的情緒表達。
室內的燈光設計不乏亮點,公共區域以桌上燈照明解決超高層高照明問題,頂部大角度軌道射燈注重防眩,多層蜂窩網讓每一個座位都感受不到炫光。所有獨立辦公室天花未做任何燈具,僅靠上下發光落地燈來解決照明,創造最柔和的環境光,即使長時間工作也不致視覺疲勞。
簡約是在無形中弱化各種繁瑣,但每一個細小局部都深思熟慮。超級平常以基於基本形式的整合設計,表達和影響產品與空間、空間與人以及人與人之間的多種可能性,讓平常變得非比尋常。
完整項目信息
項目名稱:南寧格洛伊辦公室
設計公司:深圳市超級平常空間設計有限公司
設計範圍:室內設計、燈光設計、軟裝設計
主創設計:陽建勳、吳敏文
項目團隊:張磊、李佳凝、王創哲、宋向茜
軟裝設計:超級平常+格洛伊CROYO
燈光指導:潘宇
項目地點:南寧市青秀區東葛路綠地中央A2-2-708
項目麵積:500㎡
完成時間:2018年4月
項目主材:BOLON地毯、EGGER掛板、Formica防火板、OBSPACE隔斷、SHAW地毯 、沃品牆紙、橡木掛板、永生苔蘚
項目家具:Arper、Asis、Brokis 、Extremis Sticks 、Hay、Interstuhl、Magis、瑪祖銘立、 Normann、 Renz 、Steelcase 、Seletti 、Waldmann 、Vitra
項目施工:廣西格洛伊裝飾有限公司
攝影:範文耀



























評論(1)
很棒!童趣、生機、活力很喜歡這種辦公氛圍,在裏麵既放鬆又能夠專注的工作,能夠在擁有歸屬感的辦公氛圍裏工作是每個上班族的憧憬!