該場地位於交通流量大的公路沿線,並圍繞著客戶運營的混凝土工廠和父母居住的傳統日本住宅展開。因為環境給人的印象有點混亂,所以他們想要一所既能產生視覺擴張又能遮擋周圍環境的房子。
The site is located along a highway with large volume of traffic. A field expands around the site that is adjacent to the concrete factory run by the client, and a traditional Japanese house where the parents reside. Because the environment gives somewhat mixed-up impression, a house was sought that would produce visual expansion while blocking eyes from surroundings.
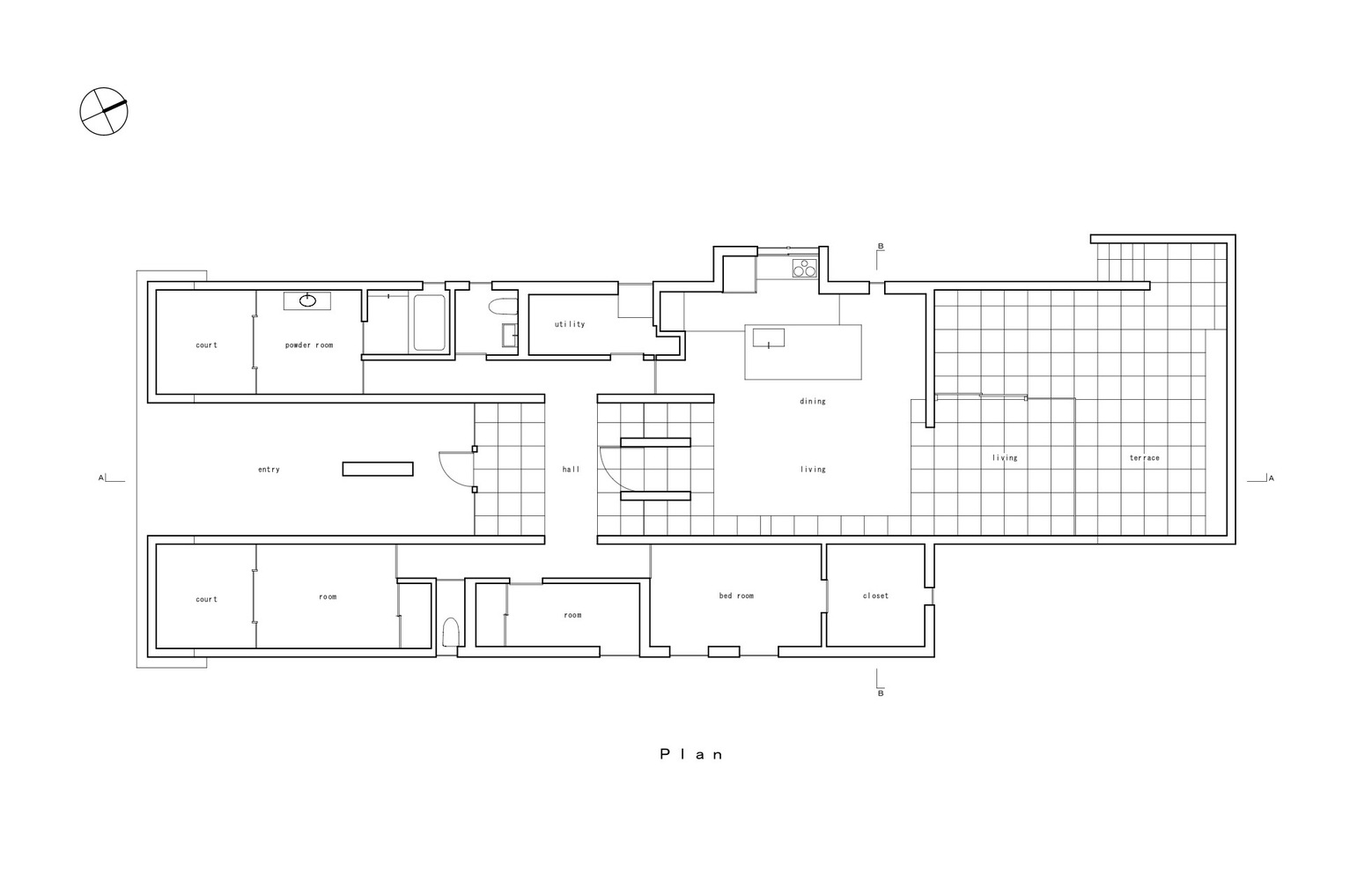
因此,我設計了一個住宅,它的軸線與北側對齊,在那裏你可以獲得最寬的視野,同時布置了從入口到最後麵的露台的空間,它們有自己的延展性。由體量組成的對稱立麵凹進部分被設計成入口。位於中心的厚重的牆壁增加了更多的深度感,也遮擋了人們的視線。
Thus, I planned a house that aligns its axis with the north side where you can obtain the widest view, while laying out the spaces that have their own extensity from the entrance through the backmost terrace. The recess of the symmetric façade composed of the volumes is made into the entrance. The thick and heavy wall positioned at the center adds more sense of depth. It also plays a role of “Eye Stop” that keeps eyes outside from easily coming through.
當進入大廳時,由高體量創造的空間以來自頂燈的水光歡迎客人。空間被無縫的玻璃側壁分割開來,給人一種透視效果,讓人可以看到遠處的空間。兩個粗糙紋理的牆壁被提供給特殊的方向和沉重的印象,以及作為通往客廳的通道之間的空間。在通道中,設置了一扇可以靈活開啟/關閉的門,形成多樣化的空間體驗。
When entering the hall, the space created by the tall volumes welcomes guests with watery light from the top light. The space is divided by seamless glass sidewalls, which give a perspective effect to visibility of the space beyond. The two rough-textured walls have been provided to give special direction and weighty impression, as well as to make the space in between as a passage to the living room. In the passage, a door has been positioned that can be flexibly opened/closed to develop diverse space experiences.
相互連接的起居和餐飲空間被包圍在一個大空間中。設計師嚐試通過區分天花板高度和地板高度來劃分空間。同時,從一個精心設計的開口發出的光線產生了變化的陰影和紋理,創造了一個深空間。
The living and dining spaces that are connected with each other are encompassed within a large volume embraced by the space. An attempt has been made to segment the space by differentiating ceiling height and floor level. At the same time, the light from a carefully-planned opening has produced changing shadow and texture, and created a deep space.
在該區域的盡頭,設計師想要實現一個包含場景或燈光的開放空間。因此,他布置了一個可以作為客廳延伸的房間,並提供了一個圍繞著房間的露台。用於房間的瓷磚也用於露台以產生擴展感,同時增強房間內部和外部之間的連續性。通過北側的玻璃牆,你可以欣賞到被牆的水平線剪下來的景色,讓房子的印象更加豐富。
At the end of the area continued from the entrance, I wanted to realize an open space that incorporates scenes or lights. Therefore, I laid out a room that can be used as an extension of living room, and provided a terrace that surrounds the room. The tiles that are used for the room are also used for the terrace to produce expanding feel while enhancing continuity between inside and outside of the room. Through the glass wall at the north side, you can enjoy the view clipped out by the horizontal line of the wall, making the house impression far richer.
空間序列沿著軸線展開,產生舒適的寧靜,給日常生活帶來精致的美學。
The sequence of spaces, which are unrolled along the axis, generates comfortable tranquility that gives exquisite aesthetics to daily life.
完整項目信息
項目名稱:靜寂の家Tranquil House
項目位置:日本滋賀縣
項目類型:住宅空間/私人住宅
場地麵積:845,69㎡
建築麵積:158,65㎡
完成時間:2019
設計公司:FORM/Kouichi Kimura Architects
主創設計:Kouichi Kimura
攝影:Norihito Yamauchi





























