我當空間設計師已經有十年了,明白人與人之間、人際關係有關的所有一切都是重要的。而我認為關係裏聯係一切的媒介就是“同理心”。第一次見麵時我和客戶就進行了詳細溝通。決定一起合作後,我們繼續進行了多次談話,其中客戶分享給我很多故事。每當那些時候,客戶的工作和他的病人們自然成為了故事的主題。我感到客戶想讓別人理解他同時他自己也希望理解別人。
I have been working as a space designer for decades, and I realized that relationships with people and everything that is done in the relationships with people are important. And I think that the medium that connects everything that is done in relationships is \’empathy\’. I had a long talk when I first met with client. We continued to talk many times after deciding to work together, and client shared many stories. At that time, the nature of his job and patients were the main topics of his stories. I felt that he wanted something of his to be emphasized with another person and also himself empathize something of another person.
我們進行的會麵越來越多,隨著時間推移我漸漸想到,比起強調、勸說和了解,用心感受並沉浸其中更能留下一個較為持久的印象。我著手進行設計,希望這個空間能成為一個令前來韓醫診所求醫的病人們感到內心平和並說出他們心底想法的地方。
The more meetings we had, I came to think that as time passes, more than something being forced, persuaded or understood, things that can be felt in the heart and soaks in naturally leaves a longer lasting impression. I started designing hoping for the space to become a place where the patients who come to the oriental medicine clinic feel peaceful and be able to talk about everything about them.
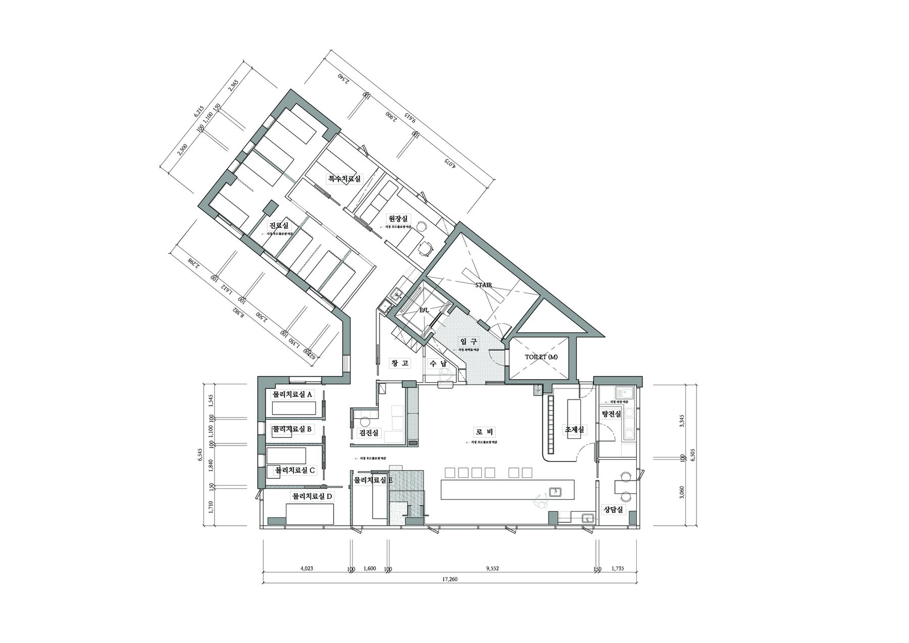
為了營造出那樣的氛圍,空間上采取了三個措施。第一點,是空間結構的簡化。除了起重要作用的結構外,我們想把裝飾性的結構去除掉。我們希望“Aeichi韓醫診所”的建築結構傳達出的信息是精煉簡潔的,不需任何花俏的語言。
To create that feeling, there are three points visualized in the space.The first is the simplified structure of the space. Except for functional structure, we wanted to take out the structures for decoration. We wanted the message given by the structure of the ‘Aeichi Korean Medical Clinic’ to be concise and simple, that did not need any florid language.
第二點是促進交流的措施。我們使用了裝置來打開空間讓光線滲入,通過引入室外要素,光線貫穿空間且不幹擾日常生活,並記錄空間中的每天變化。同時,部分牆體被破開,門的開口麵積被最小化到不影響功能使用為止。我希望通過打開的部分,在空間中建立一種情感交流或共情連接(盡管不是實際中肉眼看到的交流)。同時我認為環顧這個空間還會給人一種的強調實際交流的感覺。
And the second is the devices for communication. We used objet to open the space and to let light soak in so that by welcoming the outside elements naturally the outside light can permeate into the space without disturbing the lifestyle and also to naturally recognize the changes of the day in the space. In addition, the walls are partially opened and doors are minimized to the extent that they do not harm the function. I hoped that through the open section, an emotional communication or bond of sympathy (even if it is not visual communication) beyond space could form. And I think that looking at the space widely gave an extra element that brought out an image of visual communication.
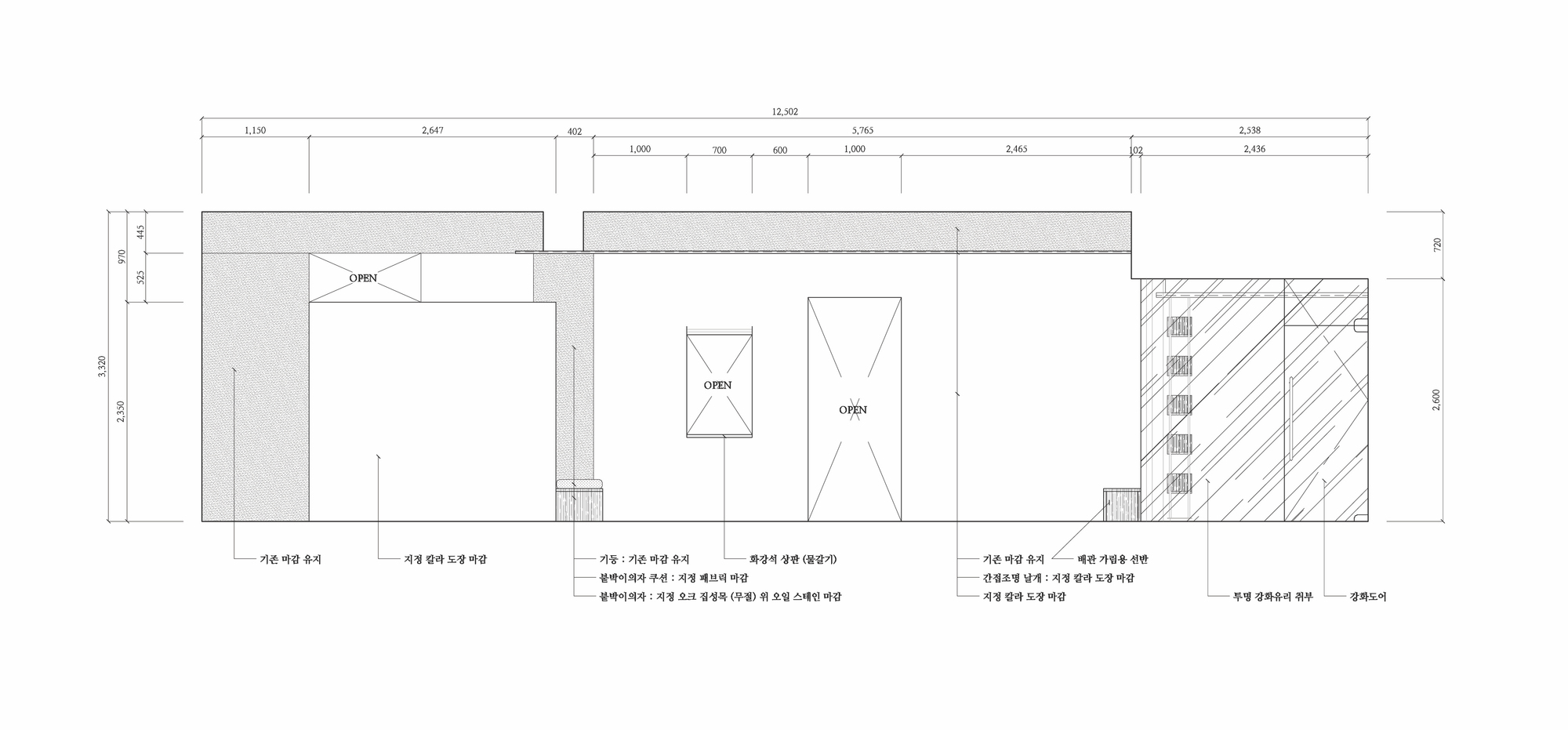
最後,我們使用了一種熟悉又溫暖、不會引起任何人不適的材料。盡管全新、有趣的材料相繼誕生,但我認為熟悉又親切的材料更符合“Aeichi韓醫診所”的理念。
Finally, we used a familiar and warm material that isn’t discomforting to anyone. New and interesting materials continue to emerge, but I thought familiar and friendly material corresponded with the message of ‘Aeichi Korean Medical Clinic’.
盡管在現在這個時代,短暫又具有衝擊力的形象隻能偶爾留存,但很多事物仍隨時隨地偶然浮現在腦海中又或者我們雖然並不了解但仍能記得並經常沉浸其中。而我希望“Aeichi韓醫診所”能成為一個令大家感到親切又留下持久印象並的空間。
Even though this is an era when short and impactful images exist sporadically, the things that come across the mind from time to time even now or the things that we remember are the familiar things that we soaked in without even our knowing. And I hope that ‘Aeichi Korean Medical Clinic’, as it made me realize that my job as a space designer has soaked in naturally to me, will become a familiar but long-lasting space that soaks in naturally to many people.
完整項目信息
項目名稱:Aeichi韓醫診所
項目位置:韓國
項目類型:商業空間/診所設計
完成時間:2018
項目麵積:179平方米
設計公司:By Seog Be Seog
攝影:Yongjoon Choi





































