LOFT中國感謝來自 深圳範創意環境藝術有限公司 的商業項目案例分享:
容德醫館位於成都時尚地標春熙路的輻射周邊,映照著這個城市豐富而鮮活的生活藝術。從現代人的生活角度出發,通過商業策略與藝術創作的平衡探求,對傳統中醫藥國粹進行了一次別有新意的空間敘事。
The project is a traditional Chinese medicine (TCM) clinic situated within Chunxi Road Commercial Circle, which embodies the diversified and lively art of life in Chengdu. Based on modern people’s lifestyle, Fan Art & Design well balanced commercial strategy and artistic creation in the interior design, and presented a unique spatial narrative centering on TCM, the treasure of Chinese cultural heritage.
中醫藥的背景文化經提煉後成為設計主線,古法自然的精神也貫穿在“人與本草”為主角的空間情境中。店鋪立麵以柔和的粉色和大麵積的玻璃幕牆,顛覆傳統醫療空間的冷峻印象,在品牌與消費者之間搭建起舒適的信賴關係。以契合年輕人群的健康茶飲作為中醫文化體驗的開場導視,吸引急於打拚未來的都市人放慢腳步而關照自己,給予他們生命裏一個溫柔的提醒——“你比理想更重要”。
The cultural context of TCM was refined as the thread of the overall design, and the spirit of conforming to the law of nature and practices inherited from ancient times was closely integrated into interiors where people and herbals are the protagonists. The facade is characterized by warm pink finish and large areas of glass, which breaks through the stereotype of traditional cold tone of healthcare spaces and also shortens the distance between the brand and consumers. Stepping into the space, people will be firstly welcomed by an area which provides variety of healthy tea drinks fitting with the youth. It aims to slow down the pace of young urbanites who are struggling for a bright future and remind them to take care their health, just as RONNDE’s slogan goes, “You are more important than your dreams” .
粉色與清新感的綠構成溫婉的馬卡龍色係,和諧穿插在室內動線的視覺呈現中。遵循“天人合一”的理念,空間的實虛界麵、功能陳設、裝飾藝術等凝結成有機的整體。座椅和背景牆描摹出山水意象,與幾何感的燈飾構成天圓地方的對景。植物標本裝置的引入,更增強自然元素的生命氣息。
Pink and refreshing green, which constitute a macaron color palette, are interspersed throughout the space. In line with an important TCM concept — “Unity of Human and Universe”, the spatial interfaces, furnishings as well as decorations were integrated as a whole. Seats and backdrop walls show the imagery of mountains and water, and echo the decorative lighting fixtures with amazing geometric shapes. Besides, art installations featuring plant specimens were brought into the space, adding natural vitality to it.
軟裝擇取輕奢手法,皮革、玫瑰金與拉絲鏡麵營造新古典的精致質感,素雅的水磨石地麵鋪墊簡約留白的基調。植物標本的水晶裝置瀠洄於明暗光影中,插花窗簾彰顯手作情懷。藥材櫥櫃作為中醫藥房的標誌性配件得到保留,但以時尚輕盈的線條進行全新演繹,並與文藝吊燈和幾何櫃台相得益彰,將新鮮活力的品牌魅力盡致詮釋。
The decorations deliver a feeling of affordable luxury. Leather, combined with rose-gold brushed stainless steel, generate neo-classical and exquisite spatial textures, while austere terrazzo floorings set an elegant and simplistic tone. Crystal installations enclosing plant specimens reflect and interact with light and shadows, and curtains inserted with flowers show ingenious craftsmanship. In addition, the medicinal herbs cabinet, which is the iconic equipment in TCM pharmacies, was given clear lines and stylish appearance. It is perfectly coordinated with the pendent lamps and geometric service counter, greatly presenting the fresh and vigorous charm of the brand.
中藥材是自然的饋贈,中國人用智慧發掘出這座寶庫。我們將靜態的草本活化為時代趨勢下的要素,以親和可觸的空間敘事,傳遞人本主義的生活態度,讓每個人透過本草認識到更好的自己。
Medicinal herbs are gifts from nature, and wise Chinese people turned them into treasures. In the intimate and tactile space, the designers revitalized herbs based on the trend of the times, conveyed a humanistic attitude towards life, and wished to remind people to care more about themselves.
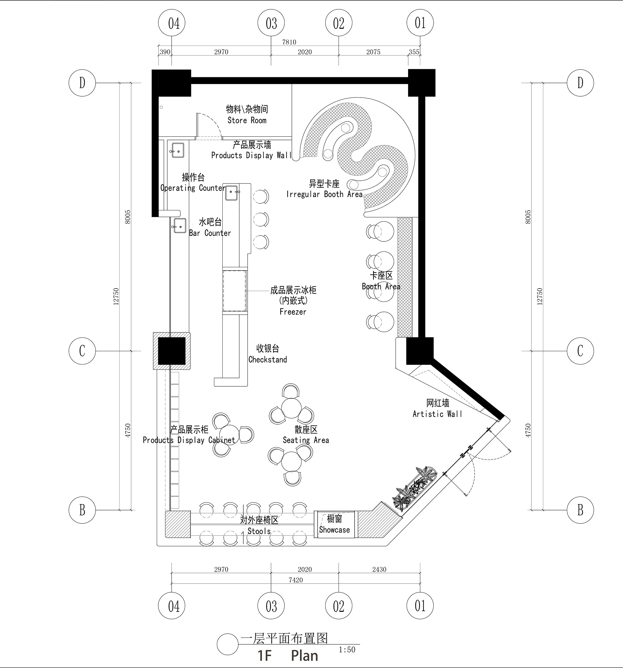
∇ 一層平麵圖 1F plan
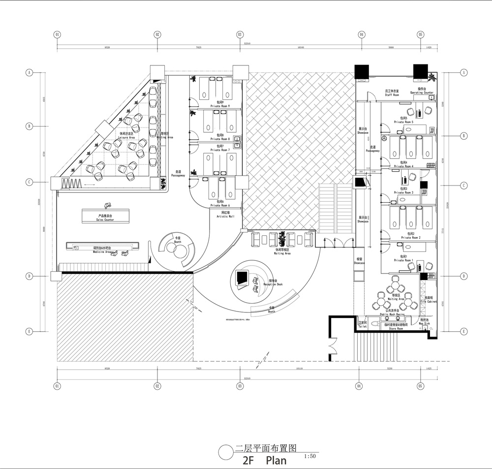
∇ 二層平麵圖 2F plan
完整項目名稱
項目名稱:容德醫館
設計機構:深圳範創意環境藝術有限公司(IAID北京無限建築設計旗下關聯品牌)
官網:www.fanlifestudio.com
設計主創:劉靚
設計團隊:劉洋,龐麗媛,宋樂思,王修權
項目地點:四川省成都市錦江區小科甲巷一號
項目麵積:800㎡
項目完工:2018年8月
主要材料:水磨石、不鏽鋼、超白鋼化玻璃、乳膠漆、白色大理石、亞克力、布藝、皮革、幹花、透明樹脂、實木漆麵
項目攝影:蔡掌櫃
Project name: RONDE TCM CLINIC
Design studio: FAN Art & Design (a sub-brand of IAID) www.fanlifestudio.com
Chief designer: Liu Jing
Design team: Liu Yang, Pang Liyuan, Song Lesi, Wang Xiuquan
Location: No.1, Xiaokejia Alley, Jinjiang District, Chengdu, Sichuan Province, China
Area: 800 m2
Completion time: August 2018
Main materials: terrazzo, stainless steel, ultra clear tempered glass, latex paint, acrylic, fabric, leather, dried flower, transparent resin, painted wood veneer
Photos: CAI ZHANG GUI PHOTOGRAPHY STUDIO

















































