印度尼西亞的Albizzia住宅,是從一個翻新祖母的住宅的計劃開始,在拆除的過程中,發現木屋架結構保存完好。原來是采用了一種非同尋常的木材,在被運送到萬隆市很久之前這些木材就生長在Ciamis的鄉村裏。
Started from a plan to renovate the Grandma\’s house, during the demolition the wooden roof truss structure was discovered in a very good condition.? It turned out that the timber was an extraordinary one, in which it had been preserved in the countryside of Ciamis before delivered to the city of Bandung, a long time ago.
本次項目的這種木材的品種叫做Moluccan合歡樹,是一種生長迅速且經濟的樹。但它的潛力很少被最大化,因為它的等級隻是在IV-V左右。然而在西爪窪的Ciamis,當地農民長期掌握著一項技術:他們在收獲季節將當地的這種木材埋在稻田下麵。這種壓實技術顯著提高了木材的等級,可以讓它持續使用30-45年。將木材幹化處理不僅僅是讓它變得更加堅固,還將大地裏的兩種物質詩意地結合在一起,它們互相促進形成一個整體。
The tree species are Moluccan Albizzia, widely notable as a fast-growing and economical tree. The potential is rarely maximized because of its low grades that merely stands around IV-V.? However, there has been a long-established technology by local farmers in Ciamis, West Java, in which they bury the local timber beneath the paddy fields after the harvest season. This compaction has increased the wood grade significantly so it can last up to 30-45 years.The timber mummification is more than about filling up the wood pockets to become sturdy, the poetic is embedded in a tale of two earth substances that are mutually reinforcing into a unity.
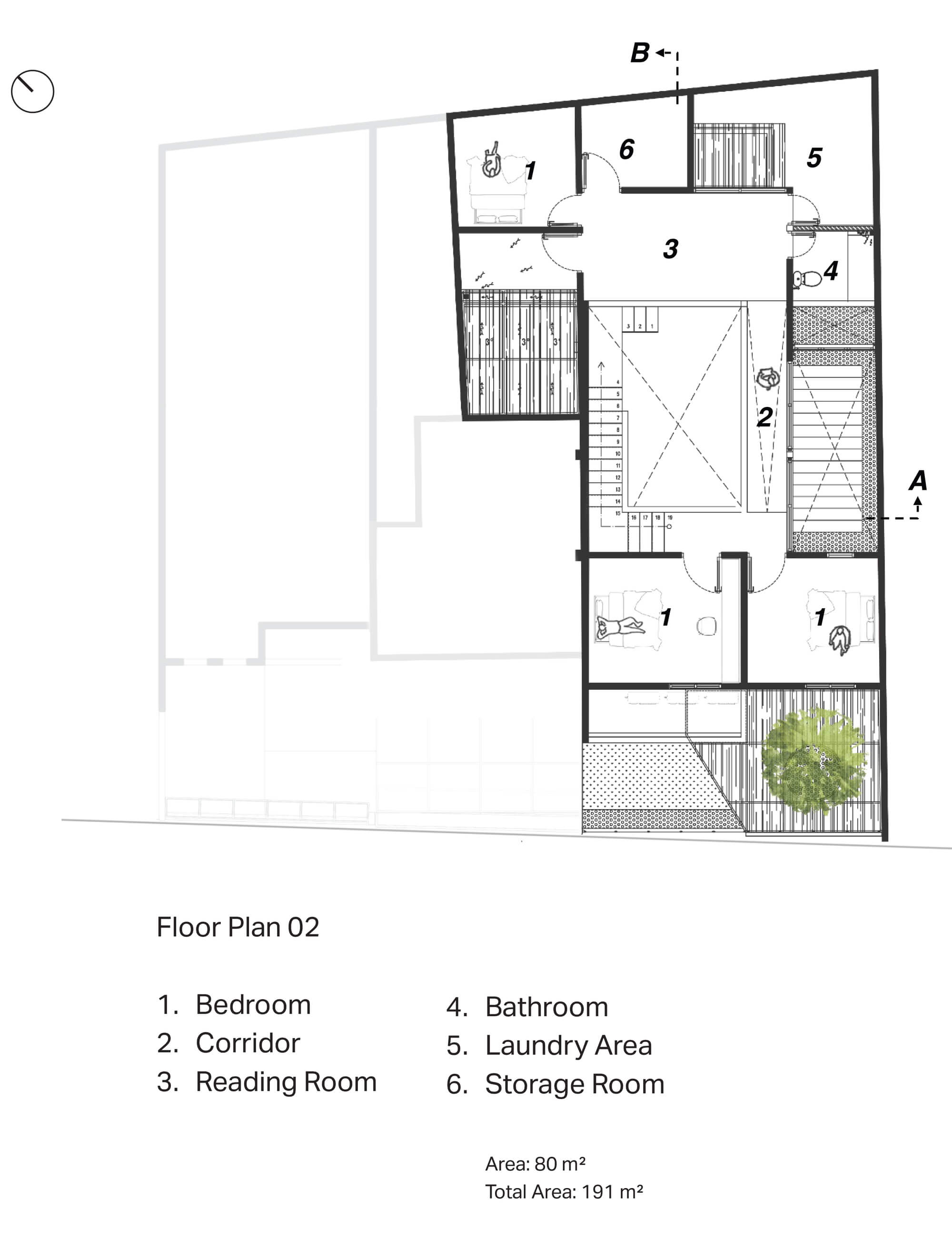
設計通過在結構和空間上保留和擴展桁架的手法強調了現有建築裏的這個木屋架。合歡樹這種木材被著重運用於其他建築元素中,例如在室內空間的天花板和書房采用這種木材,用來介紹當地的這種珍寶。
The design process highlights the wooden roof truss in the existing building, by a way of conserving and expanding the truss structurally as well as spatially. A thorough expansion comprises a guided manner, from the old construction towards a new structure. An accent of Albizzia Wood is also placed around the non-structural element such as the ceiling and reading chamber to introduce the local treasure inside of the interior space.
完整項目信息
項目名稱:Albizzia
項目位置:印度尼西亞
項目類型:住宅空間/別墅設計
完成時間:2019
項目麵積:191平方米
設計公司:Aaksen Responsible Aarchitecture
攝影:KIE






















