LOFT中國感謝來自 修迪建築設計(SUD Architectes) 的建築改造案例分享:
一.項目簡介 PROJECT BRIEF
修迪建築設計將一個30年代建成的文物保護建築即第一個雪鐵龍車庫改造成為集辦公、教學、陳列等混合使用的改造項目。該項目榮獲Grand Prix SIMI 2015年度“建築改造類”大獎。
SUD Architectes refurbished the 1st Citroën garage which was constructed in 30’s as a protected heritage architecture and developed into a mixed-use program of offices、education and showroom. It rewarded SIMI 2015 Grand Prize Winner-Renovated Building Category.
∇ 1樓雪鐵龍展覽廳
二.項目設計介紹 PROJECT DESIGN INTRODUCTION:
1. 項目背景 Project Background
雪鐵龍舊車庫於1932年竣工,並於1992載入法國國家文物保護曆史古跡名錄。房地產集團6e Sens買下了裏昂核心地標——雪鐵龍車庫,它建成之時被認為是全世界最大的車庫。1932年,這棟建築被Maurice-Jacques Ravazé稱為名副其實的汽車殿堂。
Registered as a Monument Historique in 1992, the Citroën garage was completed in 1932.The Real Estate Group 6eme Sens acquired the iconic Citroën garage located in the heart of Lyon, which was considered to be the largest garage in the world when it was created. This building was described by Maurice-Jacques Ravazé in 1932 as a veritable car temple.
∇ 辦公層中庭
設計目標:保護曆史建築的個性,將其改造成符合所有可持續發展標準的辦公樓。
Design Objective: To preserve the identity of this building registered as a historic monument by transforming it into an office building that incorporates all the criteria for sustainable development.
∇ 采光公區
∇ 公區
2. 項目設計 PROJECT DESIGN
雪鐵龍車庫舊庫長135米、寬52米、占地4公頃以上,由莫裏斯-雅克·拉瓦茲、讓·普魯維和安德烈·雪鐵龍等建築師和藝術創意人才共同設計。在改造的開始,如何在改造過程中做好這座曆史建築的保護和再利用,是我們麵對的第一個挑戰。
The Citroen old garage was 135 meters long, 52-wide with covering more than 4 hectares of floor area, which was designed by the architecture and creative talents of Maurice-Jacques Ravazé, Jean Prouvé and André Citroën and completed in 1932. At the beginning of the renovation, how to protect and preserve this historic building in the process of renovation was the first challenge for SUD Architectes.
經過反複推敲和驗證,我們對這棟裏昂地標建築進行重新分類,並給到一個全新的身份與形象“NEW DEAL”,旨在返璞歸真,捕捉其原始設計的精髓,以實現恢複其1930建成時的榮光。同時,我們植入現代業態,使其改造成為一個集共享辦公,商科學校,傳統辦公與雪鐵龍展覽廳的多功能辦公大樓。
After deep research and verification, we reclassified the Lyonnais landscape iconic building and gave it a new identity “New Deal”, in order to return to the original design spirit and capture the quintessence of its original qualities to realize the achievement of the restoration of its 1930 glory. At the same time, we implanted the modern business type and transformed into a multi-functional office building integrating Shared Office, Business School, Traditional Office and Citroen Exhibition Hall.
3. 項目特點 PROJECT CHARACTERISTICS
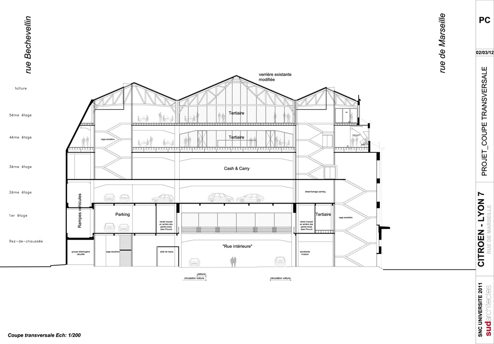
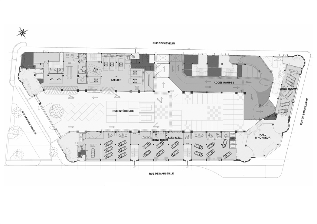
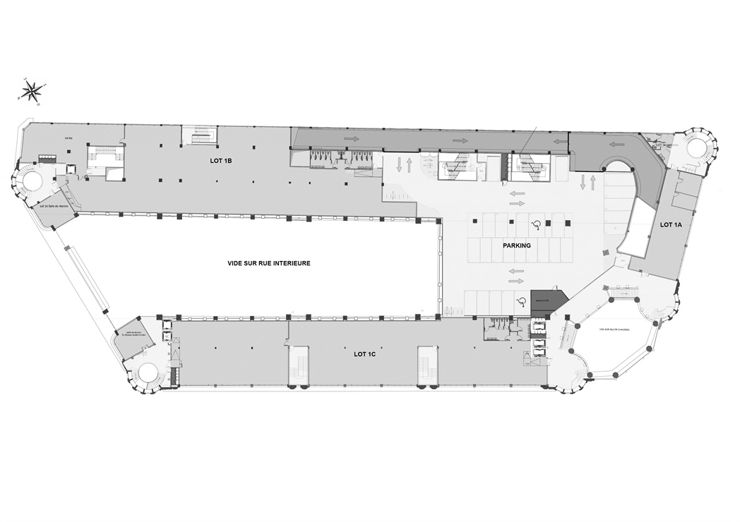
31,500平方米的總麵積分別分布在6個樓層,其中,一層為雪鐵龍經銷商作為展覽廳使用;三層榮譽殿堂經過重新翻新,恢複了往日的輝煌;三層以上更容易引入自然光的區域則改造成為帶露台的辦公空間。其建築物原著名的特色建築物即入口坡道依然保留,並作為通向每一層停車區域的通道。建築周圍的坡道被留作停車場,五層的空間被改造成辦公室、學校以及共享工作空間。
31,500 m² is distributed over 6 levels that relinquishes the ground floor to the Citroën dealership for Exhibition, and the hall of honor is refurnished to its original glory over 3 levels; the upper stories are converted into offices with the creation of patios to bring in light. Characteristic of the building, the famous access ramps remain,which serve as access to the parking lots present on each story. And the ramps encircling the building are preserved to serve as parking spaces and the five levels are converted to accommodate offices, higher education spaces and a co-working space.
∇ 樓層剖麵
從法國建築物來看,這個綜合體項目的關鍵問題是為未來的各種用戶提供功用性,同時又不改變原來的動線和體量。就每層樓用於傳遞光線的露台而言,混凝土柱和梁結構被直接暴露在外,並對Jean Prouvé製造的所有金屬組件——護欄、大門等都進行了升級。
On the sides of buildings in France, the essential issue of this complex project is to provide the functionality for various future users without altering the original flow and volumes. Concerning the patios created on each floor to convey light, the concrete post and beam structure was left exposed and all the metal components made by Jean Prouvé – guardrails, main gate – were upgraded.
改造後的建築保留了其原貌特征, 並讓這棟三十年代的建築變得舒適、親近和現代。我們對建築內的傳聲效果也進行了徹底改造,並改善了絕緣和暖氣管道設施。為了保證最佳的設計效果,修迪建築設計全程參與施工現場的監督和管理工作。
After renovation, the building retains its original architecture feature and the program has brought it comfort, accessibility, and modernity to this 1930s era building. The acoustics were particularly thorough, as well as the improved thermal insulation and installation of a heat pump. In order to ensure the best design effect, SUD Architectes was fully involved in the supervision and coordination of the construction site.
該項目獲得了綠色建築評估標準BREEAM頒發的“優秀”環境評估認證;榮獲Grand Prix SIMI 2015年度“改造建築類”大獎。
Eventually, it was certified as “Excellent” by BREEAM(Building Research Establishment Environmental Assessment Method)and Winner of Grand Prix SIMI 2015, renovated building category.
∇ 剖麵圖
∇ 一樓平麵圖
∇ 二樓平麵圖
∇ 四樓平麵圖
∇ 五六樓平麵圖
∇ 剖麵圖_采光
∇ 剖麵圖表
∇ 法國裏昂雪鐵龍車庫改造項目視頻
項目主要信息
項目名稱:法國裏昂雪鐵龍(Citroën)車庫改造項目
業主:6eme Sens Immobilier
建築事務所: SUD Architectes 修迪建築設計(聯合Alep Architectes建築事務所)
事務所網站: www.sudarchitectes.com
主創建築師: Yannick PASCAL
設計團隊:SUD Architectes Lyon
聯係郵箱:llin@sudarchitectes.com
項目完成年份: 2015
建築麵積:31,500平方米
項目位置: 35 Rue de Marseille, 69007 Lyon, France
攝影師:Studio Erick Saillet;Romain Blanchi; SUD Architectes



























