LOFT中國感謝來自 閏間室內設計(北京)有限公司 的住宅項目案例分享:
一切由一幅畫開始 It began with one painting
這幅傳統的日式繪畫被稱作“Yozakura Gekka”(月下夜櫻),由千住博創作,描繪了一幅月夜下一棵樹枝低垂盛開著的美麗櫻花樹。
This traditional Japanese style painting is called “Yozakura Gekka” (by Hiroshi Senju), featuring an exquisite weeping cherry tree in blossom lit by the moon light.
畫的主人希望有一個專門能欣賞它的地方,在那裏他能安靜地享受櫻花凋謝的美麗景象。他想要一個簡單而優雅的環境,希望能夠將客廳,書房與居室打造成奢侈酒店那樣。
It was for this painting that the owner wished to have a private space to admire – where he could spend his time quietly and feel the beauty of falling petals. He wanted to create simple but elegant atmosphere like luxurious hotel for his living room/study and bedroom.
這棟建築建於40年前,此次翻修後,原來的結構保持不變,但房子的西側被改造成了一個單獨的,包括客廳、書房區域和居住區域的寬闊空間。儲藏單元在兩區域之間,將它們分隔的同時又不完全封閉整個空間,保持空間的開闊。廚房和洗手間則被安置在了西側。
The building was a one-story wooden structure of 66 square meters that was build more than 40 years ago. Upon this renovation, the original main structure was kept unchanged but the west side of the house was made into a large spacious single room containing the living room/ study and the bedroom area. Storage unit between those two areas separates the room but does not close off the space, leaving openness. Kitchen and a bathroom are placed in the east side.
為了體現主人對這幅畫和櫻花盛開的喜愛,此項目的理念是將這幅畫成為房子的中心,而不是創造一個空間展示它。
To incorporate the owner’s love for the painting and cherry blossoms, the concept for this project was proposed that the painting was to become the center of the house, rather than creating a space to exhibit it.
四季 Four Seasons
設計借助了自然界中四季的概念。而畫代表著春天。夏天:由滑動門上的麻葉圖案象征。光線會柔和地透過有麻葉圖案的紙屏風進入房間。
As “Yozakura Gekka” symbolizes Spring, the nature and its four seasons were introduced into the design. Summer is represented in “Asanoha Monyou (hemp leaf pattern)” on the three-parted sliding doors. The sunlight from the south side would be softened by the hand-crafted Yoshino Washi-paper that lined the inside of glass doors, leaving the pattern to emerge.
秋天:由漆板上的楓葉象征。冬天:由編入鬆針圖案的置於天花板的綢物象征。櫻花能耐嚴寒一直到它們開花。冬天是補充這幅畫一個必不可少的元素。
Autumn is pictured in the elegantly lacquered panel of the Byakudan finish, with “Momiji Monyou (maple leaf pattern)” in scarlet and gold.Winter is expressed in “Shiki-Matsuba Monyou (pine-needle covering pattern)” that was woven into the Nishizin silk covered the curved ceiling. Cherry buds would awake in winter and endure the cold until the spring blossom time. To complement the beauty of Yozakura Gekka, the winter essence was essential to the place.
側門上流動的圖案代表水,暗示著後麵的浴室設施。日本扁柏用於家具和室內裝飾,意大利大理石用作地板材,風格上是現代與傳統的混合。
“Kawari-Kanzesui Monyou (flowing pattern with swirls)” on the sliding Karakami-paper door represents water, suggesting bathroom facilities laid behind.Additionally, hinoki cypress was used for newly designed furniture as well as the interior, which would give refined impression with its delicate wood texture and the natural finish. Combined with the Botticino Classico (Italian) marble stones covered the floor, the place would give the impression of the modern incorporated with the traditional Japanese style.
∇ 改造前 & 改造後
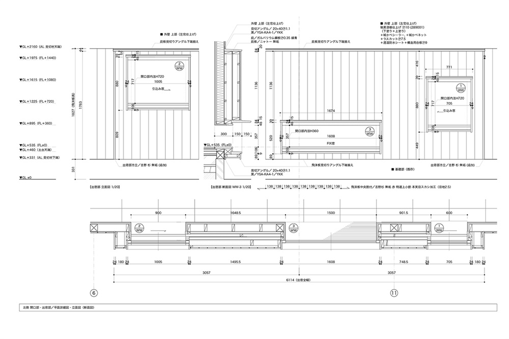
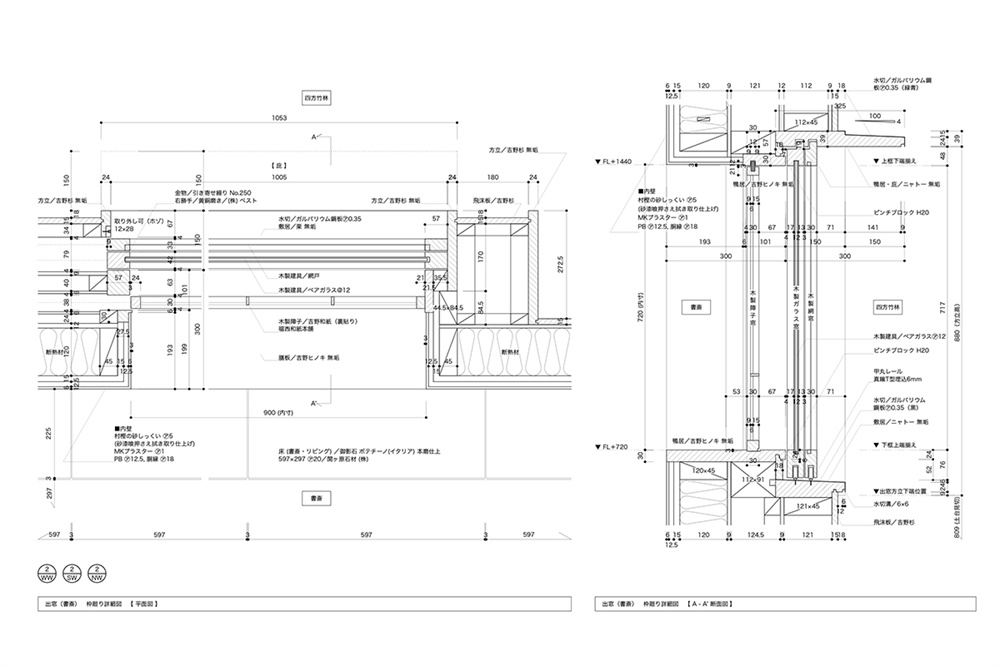
∇ 詳圖
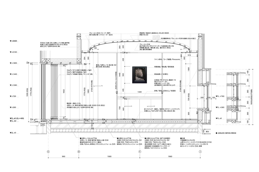
∇ 剖麵
∇ 櫻熙居/Oukikyo 視頻
主要項目信息
項目名稱:櫻熙居/Oukikyo
設計公司:閏間室內設計(北京)有限公司
本案設計師:田村篤昌/Atsumasa Tamura
官網:http://www.atsumasatamura.jp/cn/
聯係郵箱:intercalary_itc@163.com
完成年份:2018 年 04 月
建築麵積:66㎡
項目位置:日本(和歌山)
攝影師:照井壯平/Sohei Terui
主要材料:大理石/木材/絲綢
地麵大理石-品牌Sekistone-花色Botticino Classico
天花絲綢-品牌Tatsumura-花色Shiki Matsuba Monyou
推拉門-品牌Tanihata-亞麻花紋

































