一家專門供應意大利食品的餐廳麵積約34平方米,位於一個的商業建築中,由於場地有限,需要擴建一個新的空間約40平方米,以更好的接待客戶。
A kitchen specialized in Italian food located in a commercial building with approximately 34 m² and by that time, with few places available, needed an expansion to a new room of approximately 40 m² in useful area, which was add into the project to improve the reception of customers.
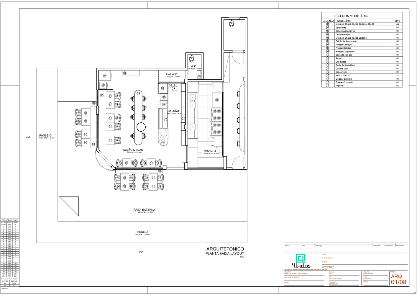
通道是新大廳室內外一體化概念的起點。帶有波紋玻璃的鋁合金窗戶向兩側開放,邀請來自Beira Mar大道的自然微風。在其中一扇窗戶的軸線上,建造了一個由5x5cm白色陶瓷覆蓋的石製懸空長椅,為空間的使用創造了更好的活力。
The sidewalk was the starting point to the integration concept between the outdoor and indoor of the new hall. The guillotine aluminum windows with corrugated glass open to the both sides of the civil work invite the natural breeze coming from the Beira Mar Avenue. A suspended bench in masonry, covered by 5x5cm of white ceramic, was built on the axis of one of the windows, creating a better dynamism in the use of space.
櫃台是大廳的中心,由磚石砌成,上麵覆蓋著和長凳一樣的陶瓷。一張由碳鋼板製成的中央桌子與直徑60厘米的柱子連接。
The counter is the heart of the hall, made of masonry and covered with the same ceramic as the bench. A central table made of a carbon steel sheet was drawn to improve the room connecting itself with a column of 60 cm in diameter.
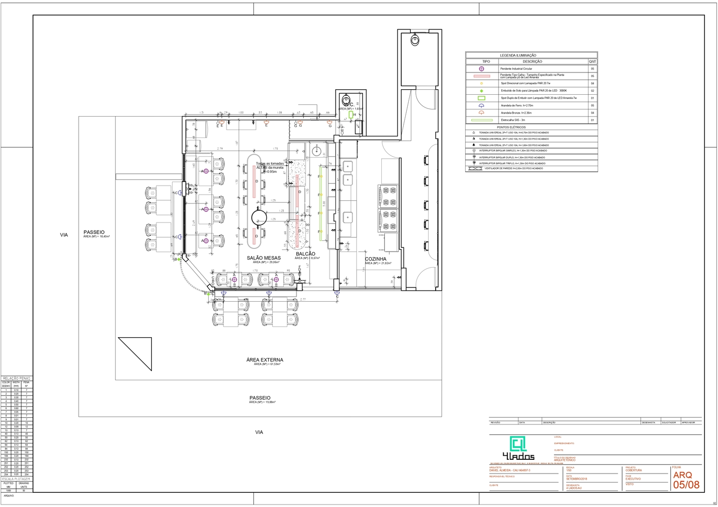
∇ 平麵圖 plans
完整項目信息
項目名稱:Factory Restaurant
項目位置:巴西
項目類型:餐飲空間/餐廳
完成時間:2018
項目麵積:74平方米
設計公司:4Lados.au
設計團隊:Daniel Almeida, Romulo Sandes, Vivian Madureira, Jéssica Dória, Wendel Carvalho, Ingrid Maria Lima.
攝影:Filippe Araujo








































