LOFT中國感謝來自 重慶山點水建築設計事務所 的餐飲空間項目案例分享:
“圓則杌棿
方則嗇吝”
天圓則運動變化,
地方則收斂靜止。
一動一靜、一收一放之間
不滿不溢
蘊含著回味無窮的東方平衡美學
一軸入口
兩枝韌竹
幾許片石
這番柔軟雅致
隻要你來
就與你溫和相擁
踱步至前廳
又見一方豁然明朗
“故人具雞黍
邀我至田家”
字裏行間盡是好客之道
滿目眼前還有清山柔水
纖細不失韌勁的雅竹
樸直還帶謙和的掛軸
一股向上的力量躍然眼前
空間如人
方圓的圓
是圓潤
是融通
是人心的柔軟
以柔情待人
用方正律己
一眼到底的層層複圓
似由內而外的柔軟漣漪
溫和靜謐地迎接每一位來者
我與鄰桌
卡座與包房
都用這片色調柔軟淺淡、
溫潤喜悅的孔狀隔斷區別開來
恰到好處的距離
兼並著隱秘與通透
我們和自然
有著與生俱來的親近感
幾支骨正筋柔的綠植
與薄簾上的水墨君子交相呼應
給麻辣鮮香的川菜味蕾再調幾分清爽
如此輕靈愜意的就餐氛圍裏
體驗一番味動心靜的感官盛宴
這世間
色、聲、香、味、觸、法
六塵齊備
這般美好
我們願意以和待之
拙淡中不失樂天達觀
做善意的、有溫度的情感空間
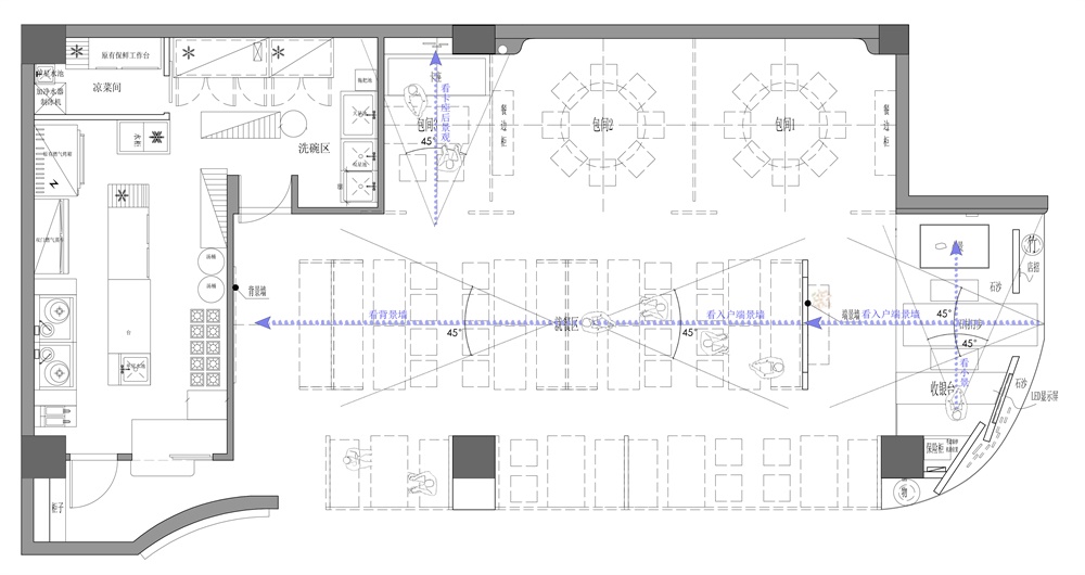
∇ 平麵分析
主要項目信息
項目名稱:思味堂意境川菜餐廳設計
項目地點:中國 . 重慶 . 江北區財信廣場
項目麵積:140㎡
完工時間:2019年7月
項目造價:60萬元
設計單位:山點水建築設計事務所
服務內容:空間設計
主持設計:袁新智
版權聲明:本站所有文章除投稿授權發布外,其他文字內容均為原創,享有著作權保護,未經許可不得以任何形式進行轉載(包括且不限於:媒體、網站、公眾號等)。所有項目照片/設計圖形版權歸原作者所有。本站部分內容源自網絡公開資源或用戶分享,如若侵犯了原作者的合法權益,可聯係我們進行處理。



























