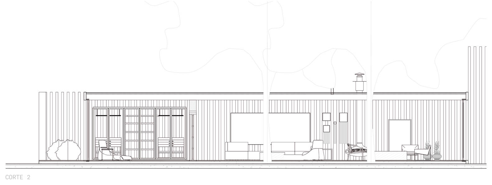
Studio Otto Felix設計的Casa das Sibipirunas住宅被劃分為一間帶有壁爐的客廳、廚房和帶有衣櫃的套房,形成了一個具有反思性和創造性的住宅。該住宅基於三個主要元素:玻璃、石膏和羅馬石灰華。這些材料的強烈存在重新創造了鄉村別墅的概念,帶來了更現代、更簡約的設計。通過結構件或者金屬梁的方式創建,在其餘空間中使用玻璃封閉,住宅由Lock Engenharia完成了工作,並與兩棵已經存在的樹木融合在一起,賦予環境詩意和有機感。
Casa das Sibipirunas divided into a living room with fireplace, kitchen and a suite with closet, instigates a more reflective and disconnected dwelling, where the proposal for a simpler life was established as a reference. Proposing a contemporany architectural project that, in technical terms, can be considered light and ease to perform, the residence was based on three main elements: glass, plaster and Roman travertine. The strong presence of these materials reinvents the concept of country house and brings a much more modern, minimalist and famous re-reading. Created by means of structural pieces, or commonly called metal beams, with glass closure in the remaining spaces, the house had the work executed by Lock Engenharia, and integrates with two trees that already existed in the place, to which poetically and organic, baptized the environment.
在入口處,通過木製人行道和綠色花園引導遊客。天花板采用石膏製成,允許陽光進入,營造出一種有趣的光影效果。在夜晚,光線滲透到建築的柱子上,營造出一種優美的氛圍,突出了環境的結構。客廳設有一個壁爐,這是一個與過去和現在形成鮮明對比的重要元素。通過Kamy的地毯分隔了這個地方,打破了空間的表現和劃分的範式,這些空間通過精心挑選的家具相互聯係,並以相似的舒適度和精致度進行排列。
At the entrance, the visitor is guided by a wooden walkway and a green garden, providing a tropical reception, rich in bossa and contemplation. The ceiling, in slated plaster, allows the entrance of sunlight and creates an interesting play of light and shadow. At night, the lighting that permeates the pillars of the building creates a scenic atmosphere and highlights the structure of the environment. The living room has a fireplace, which welcomes and displays by fire, a vital element that contrasts past and present. By Kamy’s carpet delimits the place, breaking the paradigm in the presentation and division of the spaces, which talk to each other with carefully selected furniture and arranged with similar proportions of comfort and sophistication.
家具是一個單獨的章節:優雅和冷靜,帶有較暗和溫暖的色調,並與項目的其餘部分相互作用。例如,餐桌配有黃銅腳和質樸的皇家咖啡花崗岩台麵,就是一幅原創的專業畫作。為了以獨特的方式將這個概念聯係起來,建築師使用了當地藝術家的元素和作品,或者是專為展覽而創作的作品。例如,由CacáDeleva設計的陶瓷花瓶,Juliana Maia製作的掛毯,以及由Tida Ricco提供的渲染作品,完成了故事的敘述。此外,仍然來自Caca的石膏模型繪畫,通過小雕像、意大利麵卷和鮮花等元素,創造了一種藝術幹預,讓我們回到童年和更簡單的時代。每一件作品都有其獨特之處。
The furniture is a separate chapter: elegant and sober, with darker and warmer tones, and that interact with the rest of the composition of the project. The dining table with brass feet and rustic imperial coffee granite top, for example, is an original professional drawing. To tie the concept in a unique way, the architect used elements and works that already existed, or that were created especially for the show, of local artists. Ceramic vases, by Cacá Deleva, tapestries made by Juliana Maia, and rendered by Tida Ricco, for example, complete the narrative. In addition, paintings with plaster cast, still from Cacá, created an artistic intervention that brings us back to childhood and simpler times, through elements such as figurines, pasta rolls and flowers. Each one with its singularities, transgress the fragility of the times.
受到40年代和50年代解決方案的啟發,團隊將聖保羅市舊建築中的紅色陶瓷地板作為參考。建築師用羅馬石灰華的碎片重新創建了空間,這些碎片來自對大理石殘餘物的再利用。除了展示該項目的可持續性方麵之外,它還構成了極簡主義的基礎。
Inspired by the solutions of the 40s and 50s, Otto brought as a reference the red ceramic floors found in old buildings in the city of São Paulo. The architect recreated the paging with shards of Roman Travertine, from the reuse of leftovers from a marble. Besides presenting one of the sustainable facets of the project, it still constitutes the bench of minimalist cuisine.
主臥套房還配備了設計師設計的床頭櫃和床身,以及一個被分割在壁龕和架子之間的大型絨皮衣櫥。浴室背景中出現的一麵大鏡子,根據所看到的時刻,創造出看到日出或日落的感覺,完成了精美的觸感裝飾。
The master suite also features designer pierces such as the headboard and base of the bed, as well as the large suede-clad closet, divided between niches and shelves. The bathroom follows the concept of ruin . A large mirror appearing in the background creates the sensation of seeing a rising or setting sun, depending on the moment it is seen, and completes the décor of fine touch.
完整項目信息
項目名稱:Sibipirunas House
項目位置:巴西
項目類型:住宅空間/別墅設計
完成時間:2019
項目麵積:250平方米
設計公司:Studio Otto Felix
攝影:Denilson Machado – MCA Estúdio


































