粗糙的當地石材和光滑的灰泥拚接在一起形成了這座房子的外立麵,由Nomo Studio設計,可以俯瞰Menorca的大海。
A patchwork of roughly hewn local stone and smooth plaster forms the facades of this house, designed by architects Nomo Studio to overlook the sea in Menorca.
房子建在一個傾斜的灌木叢山上,工作室使用了當地的石頭來象征建築和周圍景觀的共生關係。
Nomo Studio used the hyper-local stone to symbolise the symbiosis of architecture and landscape surrounding the house, which is built on a sloping scrubland hill.
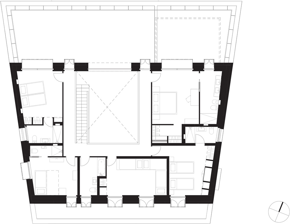
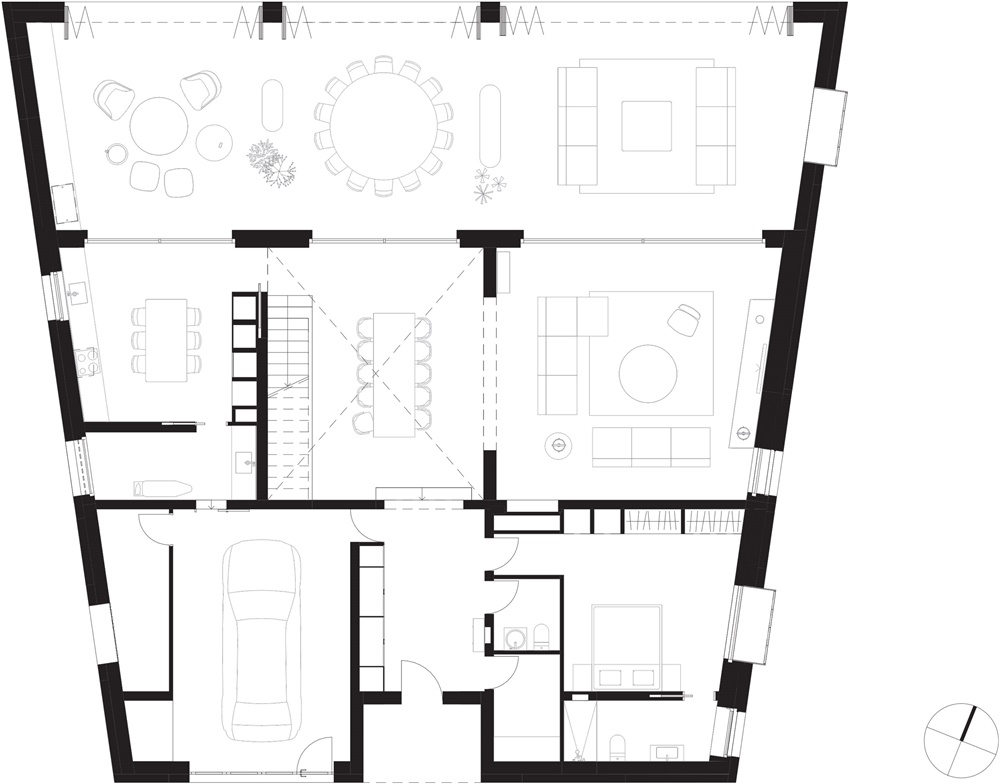
石屋的北麵是一個100平方米的門廊,由開放的玻璃幕牆組成,在夏季時開放為乘涼處,或在較涼爽的季節封閉形成一個冬季花園。穿過門廊是一個兩層高的中央接待區,這裏是住宅的核心。
At the north-facing front of Stone House is a 100-square-metre porch.It features an opening glazed facade, which means it can be used as shaded area open to the elements in summer, or enclosed to form a winter garden in cooler seasons.The porch leads through a central, double-height reception area that acts as the heart of the home.
臥室、起居室、廚房和車庫也圍繞著這個中心空間布置。木製百葉窗設有深透鏡和投影框架,使住宅的立麵充滿活力,並將自然光帶入房間。
Bedrooms, living spaces, a kitchen and garage are also arranged around this central space.Wooden-shuttered windows, housed both in deep reveals and projecting frames, animate the home’s elevations and bring natural light into the rooms.
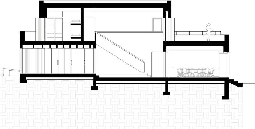
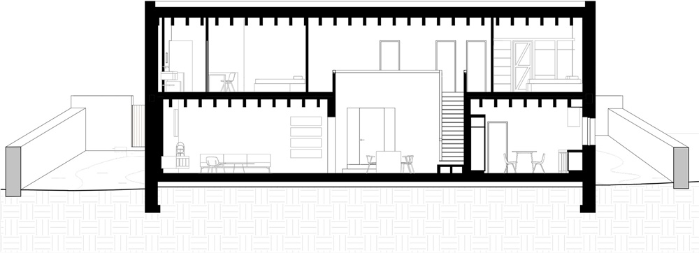
“一些細節,比如一個堅固的懸空樓梯,結合扶手照明,在傳統建築和現代建築之間創造了有趣的對話。”
“Details such as a solid hovering stair with integrated handrail-lighting create an interesting dialogue between traditional and contemporary architecture,” said the architecture studio.
室內也延續了外觀的樸實色調,配有沙色混凝土路麵,粉刷木梁和鬆木工。
The interior continues the earthy palette of the exterior, with sand-coloured concrete pavements, whitewashed wooden beams and pine carpentry.
∇ 平麵圖
∇ 剖麵圖
完整項目信息
項目名稱:STONE HOUSE
項目位置:西班牙米諾卡島
項目類型:住宅空間/別墅
完成時間:2019
項目麵積:400m²
設計公司:Nomo Studio
設計團隊:Alicia Casals, Karl Johan Nyqvist, Mira Botseva, Jennifer Méndez
景觀團隊:Cristina Gil de Biedma and Bárbara Saavedra
攝影:Joan Guillamat









































