這個三居室住宅由一個有著百年曆史的汽車裝配廠改造而成,原廠房建於1926年,在20世紀90年代後期,該建築被改造成基本的公寓,但沒有有效地利用每一間公寓所包含的大量空間。
This warehouse conversion creates a flexible three-bedroom residence within the raw concrete shell of a 100-year-old car assembly factory. The original factory building was constructed in 1926, with its robust concrete frame supporting an assembly line of carriages and vehicles for several companies including Rolls Royce. In the late 1990s, the building was converted into basic apartments that did not make effective use of the generous volumes that each contained.
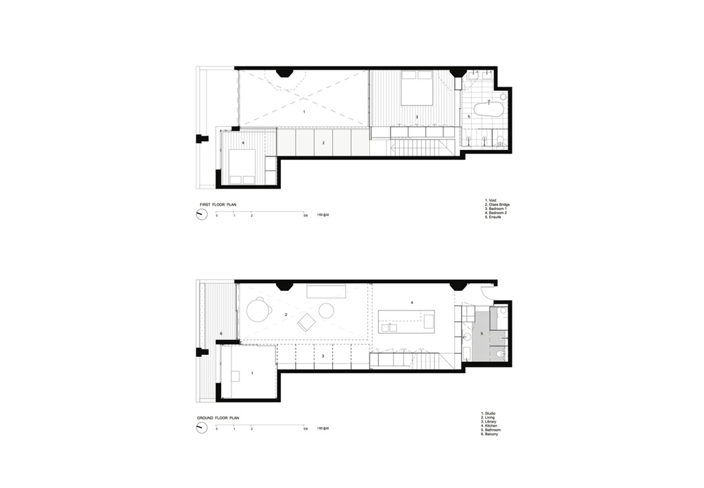
我們的方案是完全拆除現有公寓的整個內部,露出混凝土外殼,然後使用一係列由輕質鋼框架來劃分活動區域,重新布置包括三間臥室在內的一係列靈活的生活空間。每個空間都向主體量開放,因此分區的靈活性也提供了共享空間,在整個空間中增加了一種寬敞的感覺。
Our proposal was to entirely demolish the entire interior of the existing apartment to reveal the concrete shell, and then construct series of flexible living spaces including three bedrooms using a series of movable partitions supported by a lightweight steel frame. Each of the spaces open towards the main volume, so that the flexibility in partitioning also delivers shared spaces that add a feeling of generosity throughout.
∇ 軸測圖
∇ 平麵圖
∇ 剖麵圖
完整項目信息
項目名稱:Camperdown Warehouse
項目地點:澳大利亞悉尼
項目類型:住宅空間/私人住宅
項目麵積:130㎡
完工時間:2018
設計公司:Archer Office
主創設計:Tomek Archer, Carmen Blanco
攝影:Kasia Werstak
























