LOFT中國感謝來自 MOC DESIGN OFFICE 的教育空間項目案例分享:
MOC DESIGN OFFICE受客戶委托完成了位於深圳前海的溫莎雙語幼兒園的設計。
溫莎雙語幼兒園是知名的德威英國國際學校的姊妹學校,是中國目前唯一一家引入並全麵執行英國早期教育體係(EYFS)的幼兒園。
MOC DESIGN OFFICE is hired to design the Windsor Bilingual Kindergarten in Qianhai, Shenzhen.
Windsor Bilingual Kindergarten is the sister school of the renown Dulwich College. It is currently the only kindergarten that introduces and thoroughly implements the British Early Years Foundation Stage (EYFS) in China.
這是一所位於商業中心的幼兒園,位於深圳前海壹方中心相對僻靜的街區內。由於項目場地戶外麵積有限,如何在現有場地條件下實現整體的功能需求成為設計考量的重點。
The kindergarten locates in the CBD, within a quiet block of Unicenter Qianhai, Shenzhen. Due to the limited outdoor area, the design focus is to achieve the overall functional needs under the current conditions.
∇ 從戶外活動區看向入口,the entrance view from the outdoor area
孩子通過與各種事物的接觸觀察和遊戲,培養出敏銳的感知力、表達能力和解決問題的能力。設計師的目標是以孩子為中心,創造一個啟發性的、提供更多可以與自然接觸,能夠自由穿行遊戲、探索和塑造的空間。
Children grow their keen awareness, expression and problem-solving ability by establishing contacts with, observing and playing games with things. So the designer’s target is to focus on the children and to create an inspirational space where they can get closer to the nature, walk, play, explore and build freely as they wish.
前廳是是每個孩子每天在進入這幢建築之後的必經之路,我們希望除了接待功能之外,前廳也是一個有趣的、有活力的的空間,因此沙池被安排到該區域靠窗的位置,讓孩子可以陽光中活動。
The entrance hall is a very playful, energetic and exciting space and as the only pathway welcoming every child into the building. A sandpit is created next to the windows, engaging the children to play in the sunlight.
∇ 沙池,Sandpit
每個孩子都渴望長大,因此設計時並不過分的使用色彩和過於卡通的圖形等去激發兒童的興趣,而是在空間中克製的使用色彩和圖形。
3~6歲的孩子容易將觀察到的事物簡化成單一簡明的符號,以此為基礎產生對環境事物的認知,故在設計上我們選用了簡潔明了的房屋造型作為貫穿元素,使空間整體簡潔而不失活潑。
All kids are eager to play and grow up together. The design abandons excessive colors and cartoon patterns to inspire the kid’s interest, but rather carefully select and restrict its usage.
The 3-6 years old children usually convert what they see into simple symbols and it is the way they explore and learn about the environment. Therefore, the house-shaped benches have been cut into the sides of the room to bring out the simplicity and vitality.
∇ 通往公共活動區的走廊提供了座位,是孩子們交流的重要場所,The corridor to the public playground is an important meetup place for the children.
∇ 簡明的色彩和造型,使空間簡潔而不失活潑,Simple colors and clear-cut shapes make the space look clean and vigorous
玻璃幕牆一側被規劃為公共活動區,日間的陽光充滿該區域,公共活動區內定製了結合滑梯,攀爬,搖蕩等功能的活動器械,有效的讓孩子在遊戲中認識到空間,平衡,速度和節奏,同時也是對戶外活動場地麵積的補充。
To further connect the children to the nature, the window side is transformed into the public playground, which ensures they have adequate sunshine. The slides, ramps, swings and other facilities are customized for the children, so as to effectively nurture them the perception of space, balance, speed and rhythm through the games while making the supplement to the outdoor activity area.
∇ 兒童公共活動區,Children’s public playground.
為了在有限的範圍裏增加兒童的活動空間,我們針對兒童尺度設計了錯層的空間結構,構建了一個專屬孩子的空間。
The split-level spatial experience is designed to expand the extra space for activities, which exclusively accommodates the kids for their height.
這樣的錯層也在教室中形成抬高的平台,豐富了教室的空間層次的同時也增加了孩子運動量。教室內還設置了獨立的小房子,並將樓梯下方設計為可供兒童鑽爬的小空間,這些空間在實際使用中深受喜愛,成了孩子們私下交換秘密和角色扮演的地方。
The split-level arrangement is also adopted in the elevated platform in the classroom, providing different functional levels and encouraging the children to explore around. There are also a separate cabin here as well as some small space under the stairs for crawling and playing. It turns out that they are the kids’ favorite spots for sharing intimate secrets and doing role plays.
∇ 錯層平台分析圖,Elevated platform analysis
∇ 錯層在教室中形成的抬高平台,Elevated platform on a split level in the classroom
∇課室外的存物櫃和觀察窗,觀察窗上方毛氈可用磁吸作為班級公告欄使用 Small cupboards and observation window outside the classroom. The felt at the window can be used as the class bulletin board with magnet
鼓勵通過不同形式的活動探索和發展孩子自身特點。室內還規劃有兒童劇場,繪本館,兒童廚房等多個功能空間,鼓勵孩子們在戲劇、閱讀、手工活動中自行探索發現並通過不同的形式參與其中,從而滿足不同年齡孩子的多樣化需求。
The kindergarten follows the edutainment pattern, discovering and developing the children and their characteristics through various kinds of activities. Indoor multifunctional rooms such as children’s theater, picture book library, play kitchen are also designed to invite and encourage the kids to explore and participate in plays, reading and creative crafts. All of them fulfills the diverse needs of children at different ages.
∇繪本館的天花以堆疊的積木為概念進行設計 Picture book library ceiling decorated with building blocks
∇ 繪本館,Picture book library
∇ 兒童劇場同時也可作為舞蹈教室和運動場使用,Children’s theater with functions of dance studio and gymnasium
在城市高速發展的過程中,日與俱增的商業購物中心和住宅樓,正逐步擠壓公共空間,幼兒園未必能像過往一樣獲得足夠大的場地建立低密的獨立建築,這個問題無法回避,幸運的是我們可以看到園方正積極的做出調整,也有幸參與其中:於高密度的住宅與購物中心中辟出一隅,在有限的場地條件下最終呈現出一個充滿活力的教育空間。
In the process of rapid urban development, commercial shopping centers and residential buildings increase day by day and gradually squeeze the public space. Kindergartens are not able to have large enough area to build in a low-density detached structure like the old days. It is inevitable, but fortunately Windsor Bilingual Kindergarten is actively adapting itself and getting involved: a niche is carved out of the high-density residential and shopping buildings and an educational space full of vitality is ultimately created without compromising on the limited site conditions.
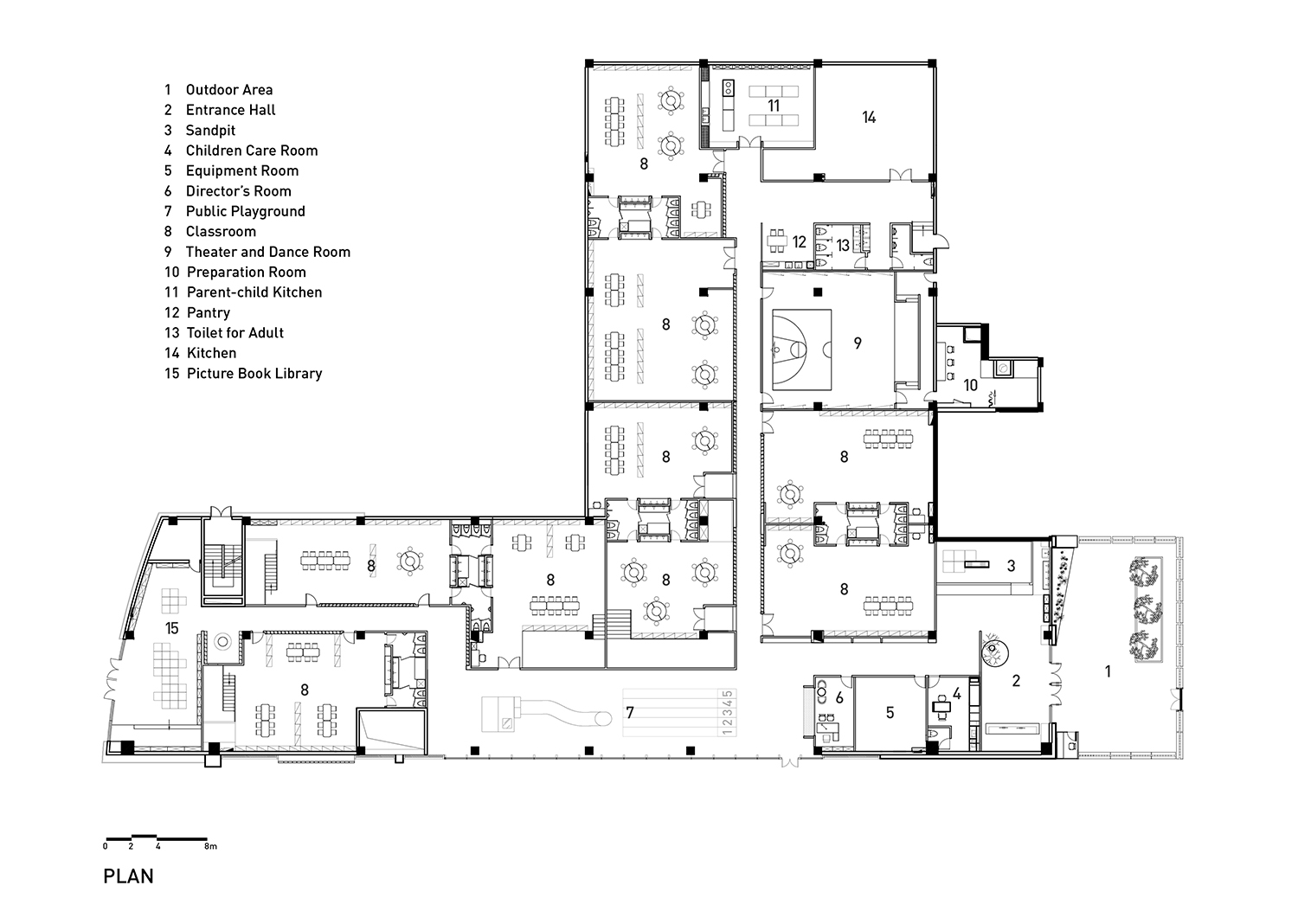
∇ 平麵圖,Plan
主要項目信息
項目名稱: 溫莎雙語幼兒園
設計單位: MOC DESIGN OFFICE
主創設計師: 梁寧森,吳岫微
設計周期:2017.4-2017.7
竣工:2018.3
所在地:中國深圳壹方中心
麵積:2200㎡
主材:木飾麵板,阿姆斯壯PVC地板,阿姆斯壯礦棉板
業主:溫莎幼兒園
攝影師:張超
Project Name:Windsor Bilingual Kindergarten
Design Company: MOC DESIGN OFFICE
Leading Designer:Sam Liang,Vivi Wu
Time:Apr 2017 – Jul 2017
Completion: Mar 2018
Location: Shenzhen, China
Area: 2200㎡
Materials: Wood Panels / Armstrong Hom PVC Flooring / Armstrong Ultima AirGuard Ceiling
Client: Windsor Bilingual Kindergarten
Photographer: Zhang Chao






























