Brella的第一個空間位於Playa Vista–洛杉磯的一個開發中的社區,微軟和Facebook都在那裏設有辦事處。它是由建築師兼聯合創始人Darien Williams和Rectangle設計室的Yasmeen khan共同設計的。這家Brella公司成立於2019年,由兩位母親—Darien Williams和Melanie Wolff所領導。Brella公司提供特定的、靈活的兒童保育服務,按小時付費,通過APP預約服務。
Brella’s first space is located in Playa Vista – a developing neighbourhood in Los Angeles where Microsoft and Facebook have offices. It was designed collaboratively by co-founder Darien Williams, who is also an architect, and Yasmeen Khan, of Rectangle Design Studio. Launched in 2019, the startup is led by two mothers – Darien Williams and Melanie Wolff . Brella’s service provides licensed, flexible child care, that is paid for by the hour and booked through an app.
Brella兒童保育中心室內包括遊戲區域,辦公空間和瑜伽工作室。它有著各種房間,旨在滿足不同年齡的兒童,但也為可能需要工作空間的父母提供地方,還有一個專門做瑜伽的區域。但Brella表示,這是第一個提供“真正靈活的高質量護理”的公司。盡管在線市場模式試圖簡化家庭獲得家庭護理的途徑,健身房和社交俱樂部也嚐試了無證的現場保姆服務,但沒有其他供應商成功地實施了一種真正靈活的高質量護理模式。Brella麵向三個月至六歲的兒童開放,旨在使家長不必參加每月或每年的課程。相反它提供每月固定小時數的服務,可以根據個人需要預訂,如果不使用的話可以轉到下一個月。
Childcare subscription app Brella has opened its first space in Los Angeles, comprising play areas, a co-working space and a yoga studio. It includes a variety of rooms are meant to cater to children of different ages, but also to parents that may need space for work. There is also another area dedicated to yoga. but Brella says it is the first to offer “truly flexible high-quality care”. While online marketplace models have attempted to streamline families’ access to in-home care, and gyms and social clubs have dabbled in unlicensed onsite babysitting, no other provider has executed a successful model of truly flexible high-quality care. Brella is open for children aged between three months and six years old, and aims to save parents from needing to enrol in a monthly or annual programme. Instead, it offers subscriptions to a set number of hours per month, which can be booked according to individual needs and rolled over to the next month if not used.
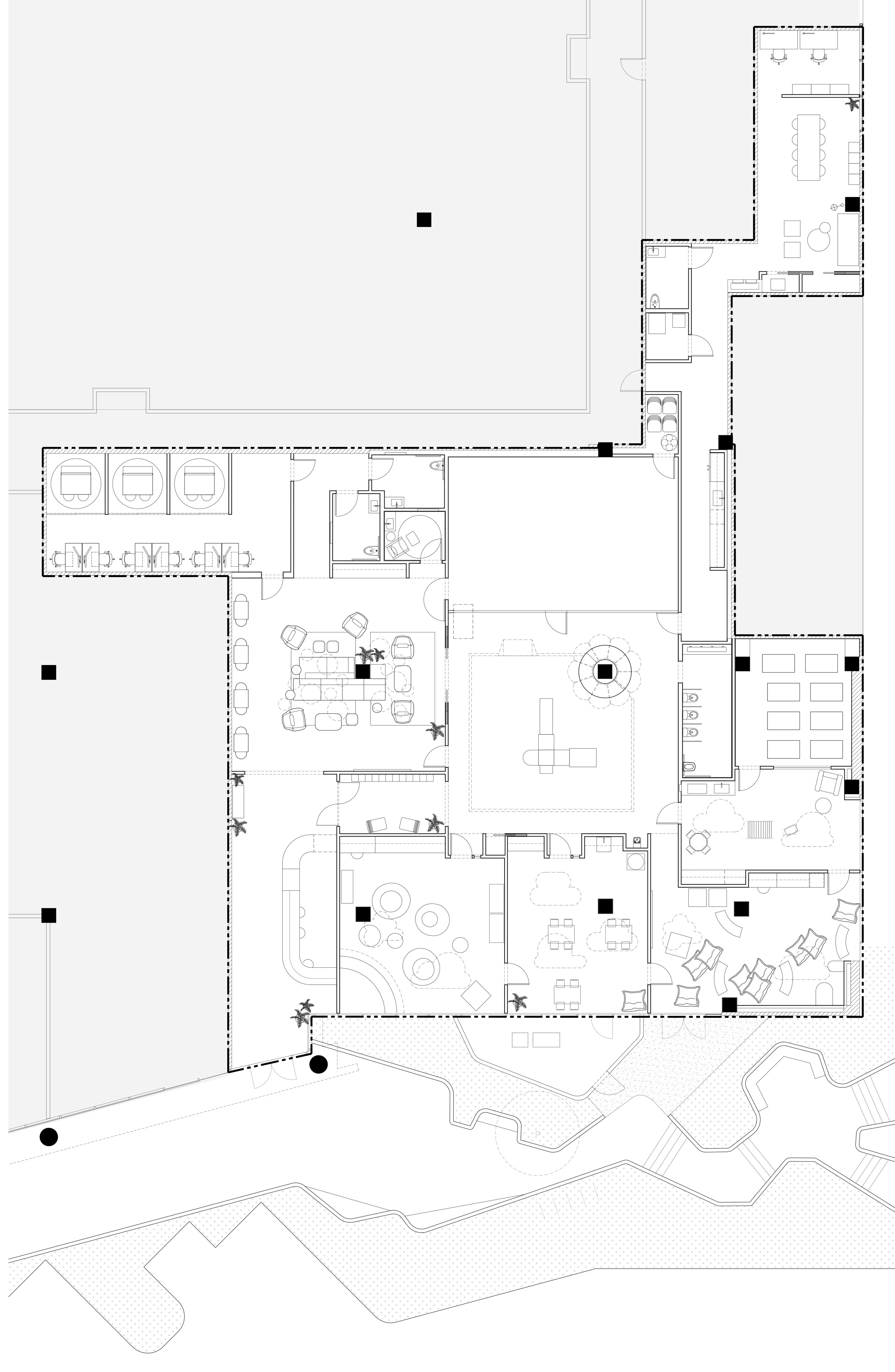
8060平方英尺(743平方米)的空間包括三個不同的教室,每個教室都有不同的功能:創意遊戲室、藝術實驗室和圖書館。這些都位於靠近立麵的地方,那裏有最活躍的光線。所有這些教室都開向一個中央空間,被稱為“操場”。接收間接光線的較小房間被用作安靜玩耍或小憩的區域。對於家長來說,有一個休閑和工作的空間,家長也可以為會議預訂房間。
The 8,060 square-foot (743 square metres) space includes three different classrooms, each with a different function: creative playroom, art lab and library. These are located closer to the facade, where there is the most light for active play. All of these classrooms open onto a central space, dubbed the “playground”.Smaller rooms that receive indirect light are then used as areas for quiet play or nap time. For families, there is a lounge, enrichment studio, and a quiet space, where adults can book rooms for meetings.
利用一些大膽的色彩把這些空間連接在一起。粉刷過的拱形門道從一個房間通往另一個房間,與之配套的拱形天窗背對著立麵,有助於照亮房間。設計師們指定了堅固的商業材料,並營造中性色彩的氛圍。在家具和配飾的選擇上,大多數都采用了早些時候Pantone公布的2020年流行色—經典藍,其他區域則用明亮的珊瑚作為對比。
A bold colour palette is used to tie these spaces together. Painted, arched doorways lead from one room to another, matching arched clerestory windows that are set back from the facade and help illuminate the rooms.The team specified sturdy, commercial materials and made gender-neutral colour.furniture and accessories selections,Most are painted in a hue that resembles the Classic Blue hue that Pantone revealed as the colour of 2020 earlier this week. Other areas are painted in a bright coral as a contrast.
∇ 平麵圖
主要項目信息
項目名稱:Brella公司
項目位置:美國加利福尼亞州洛杉磯
項目類型:公共空間/兒童活動中心
項目麵積:8060平方英尺(743平方米)
完成年份:2019
設計公司:Darien Williams, AIA; and Yasmeen Khan of Rectangle Design Studio
FF&E Design and interior design: Project M Plus in collaboration with Darien Williams and Yasmeen Khan
攝影:Brandon Shigeta






















