全球設計風向感謝來自 寧感設計SOULROOM DESIGN 的辦公室項目案例分享:
靈動之所
THE SOULROOM
我們最關心的是設計師能否獲得一個舒適的創意環境
What we care most about is whether the designer can get a comfortable creative environment.
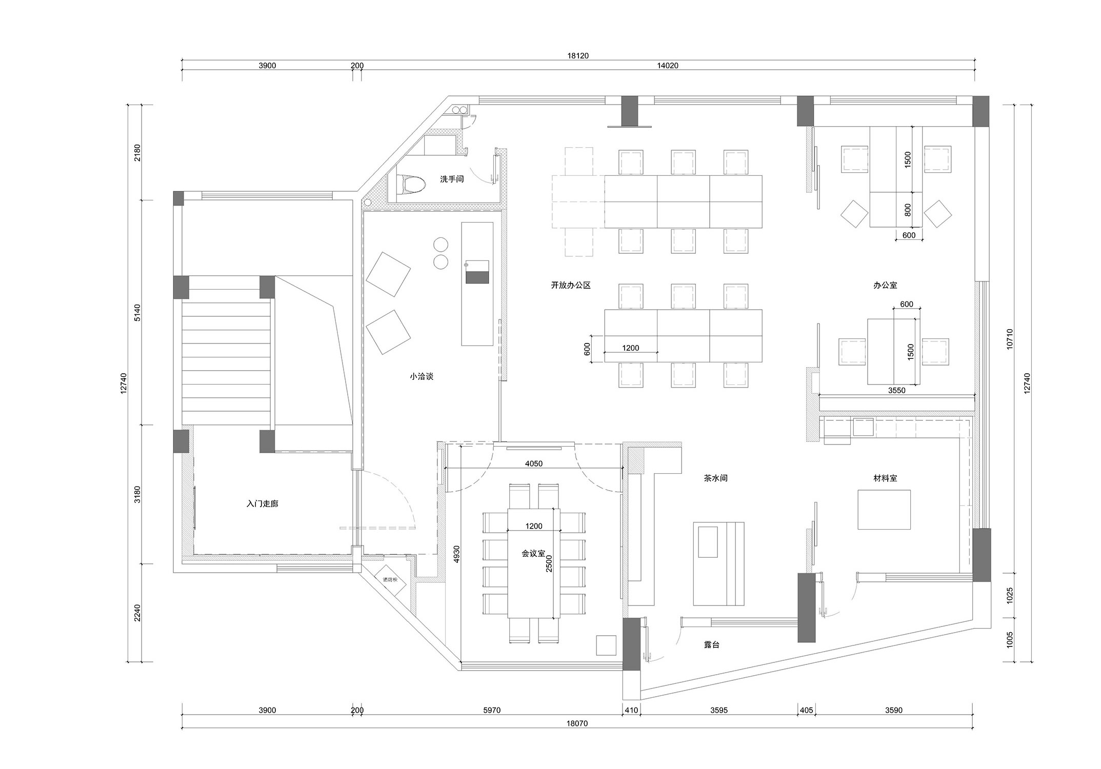
本項目作為設計公司的辦公室,我們最關注的是設計師們的活動與工作場景。因此我們把主要辦公區域放在辦公室的中心區,其餘的功能空間都是圍繞它來打造。
As the office of the design company, we are most concerned about the activities and work scenes of the designers. So we put the main office area in the central area of the office, and the rest of the functional space is built around it.
為了加強入口的形式感和延伸感,門廊的公共區域也做了同一風格的包裝,讓訪客提前進入設計的世界。進門後是會議室和洽談區,深色調的氛圍與全白的辦公區形成鮮明的“黑白”對比。一扇電動玻璃門的區隔,讓設計師們在全心創作過程中免受會議及客戶洽談的影響。
In order to enhance the sense of form and extension of the entrance, the public areas of the porch are also packaged in the same style, allowing visitors to enter the world of design ahead of time. After entering the door, it is a conference room and a negotiation area. The dark-toned atmosphere forms a distinct “black and white” contrast with the all-white office area. The division of an electric glass door allows designers to be free from the influence of meetings and customer negotiations during the whole process of creation.
辦公區整體以白色及灰色素色處理,給設計師一個幹淨、原始的創作空間。天花采用了雙斜麵設計,巧妙地把厚度較大的主梁化為設計元素之一,同時有效的為頂層辦公室隔熱。地麵采用水泥色地膠,讓空間變得更安靜和舒適。廚吧和材料樣板間都圍繞著主辦公區,形成了設計師們生活和創作的重要配套場所。
The office area is treated in white and gray, giving the designer a clean, original creative space. The ceiling uses a double bevel design to subtly transform the larger main beam into one of the design elements, while effectively insulating the top office. The floor is made of cement-colored glue to make the space quieter and more comfortable. The kitchen bar and the material sample room surround the main office area, forming an important supporting places for designers to live and create.
為了確保充分的日常交流互動,總監辦公室采用了三聯動門,在日常使用中可以充分打開,讓兩個辦公區可以融為一體。設計總監辦公桌加設了半圓討論桌以及可轉動顯示器,簡單的小組討論可在此輕鬆解決,提升效率。
In order to ensure sufficient daily interaction and interaction, the director’s office adopts a triple linkage door, which can be fully opened in daily use, so that the two office areas can be integrated. The design director’s desk has a semi-circular discussion table and a rotatable display. Simple group discussions can be easily solved here to improve efficiency.
∇ 平麵布置圖
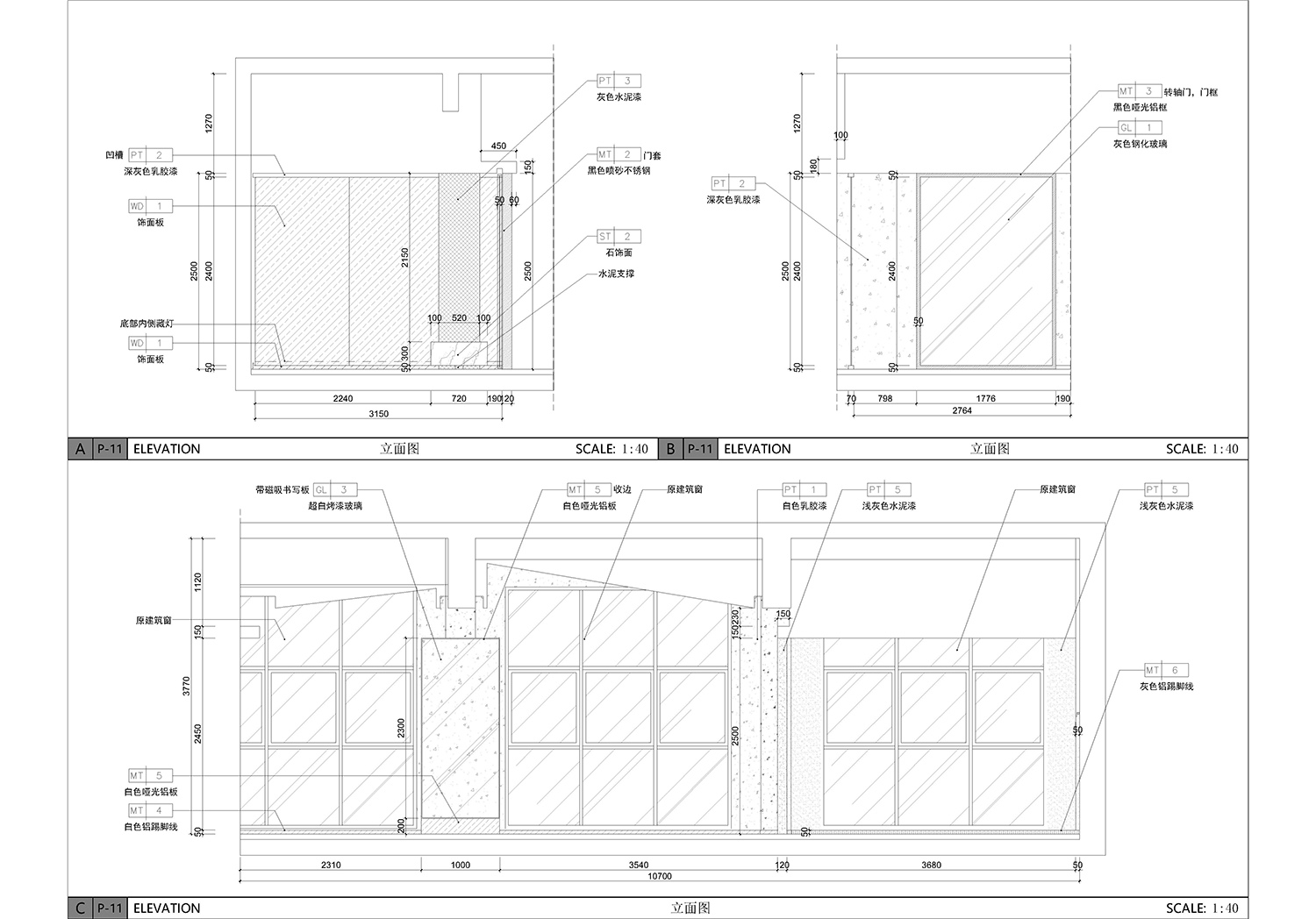
∇ 立麵圖
主要項目信息
項目名稱 : 靈動之所
項目類型 : 辦公室/設計公司辦公室
設計公司 : 寧感設計SOULROOM DESIGN
主創&設計團隊 : 黃寧(主創)、周揚
聯係信箱 : 386960739@qq.com
完工日期 : 2019
合作方:起勢創造 CHEES CREATION
項目地點 : 廣東佛山順德廣東工業設計城G棟
項目麵積 : 178㎡
主要材料 :意大利加德尼亞瓷磚,Ostuni辦公照明,蝸殼辦公家具,米蝸光電
照片版權 : 寧感設計(區廣進)
































評論(2)
內外設計差異巨大,其他不說,看到機箱的時候我以為我看錯了,,,,
這個有點像桃花源的廓然開朗的感覺