全球設計風向感謝來自 野境設計工作室 的住宅空間項目案例分享:
居住“舒適”
以各種裝飾風格劃分居住空間是現在普遍的室內設計習慣,過多無意義的裝飾添加,讓自然、舒適等真正需要的居住品質被擠壓消失了,這次我們想讓“舒適”回到居住空間的設計主導。
設計上的“舒適”要從兩個方麵考慮:一是空間的舒適,約635平方米的獨棟錯層別墅,順應錯層特點的空間規劃,讓業主一家三代五口的使用空間舒適,既有共度的樂趣,又有獨處的享受。
二是生活的舒適,以家庭為單位的居住空間,通常體現出隻圍繞一個年齡層的家庭成員為主角的生活方式。這次設計的使用空間相對寬裕,我們想嚐試均衡考慮父母的收藏喜好、小孩的快樂來源,老人的健康便利來給各家庭成員生活帶來心理上的舒適感受。
根據設計主導,接下來就是把開發商根據類似大數據經驗而規劃的功能空間分布,盡量整理舒適。
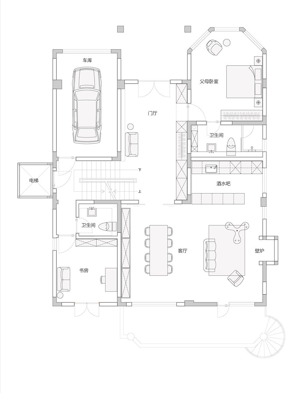
∇ 一層門廳

整合 · 一層
門廳是第一印象,也要兼具多種功能。
牆麵的擱板設計能展示業主收藏的銅版畫,興趣讓裝飾有了意義;進出更衣,換鞋包括老人臥室入口這些具體功能全部整合在另一側牆麵的固定家具中,整體統一的設計和木質材料選擇,讓門廳溫馨親近。
進入客廳前的金屬框架玻璃推拉門,將門廳與客廳靈活分隔或連通,但不阻擋自然光和視線。門廳的末端,同樣木質材料的樓梯引導通往其他樓層。
客廳在這裏隻作為家庭休息廳,是一家人可以圍著壁爐休息聊天的地方。除了設計方便使用的小型水吧和放置書架的功能區域,裝飾部分就預留給家庭成員根據喜好或不同節日氛圍的共同創作。
開放 · 地下層
因與室外下沉庭院相連使用,地下層也並非真正意義上的地下,更適合開放的聚會活動。
先將非承重的隔牆多數拆除,開放空間。再置入起居、收藏、餐廳、健身等,開放功能。空間的連續讓功能多了可能性,功能的多樣則使空間豐富,相互影響。
∇ -1F原始平麵圖(動圖)設計平麵

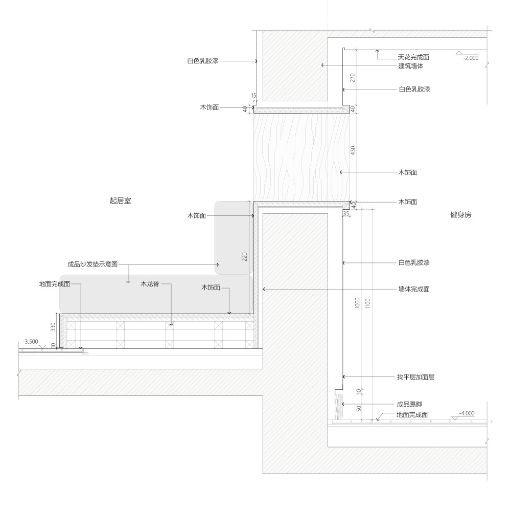
錯層空間發生在每層約1/3的平麵麵積,在地下層錯層空間的牆麵上局部開洞,設計成取景框,建立與主要空間的聯係,也就達到全部空間開放的目的。
∇ 錯層取景框、定製家具、樓梯結合詳圖

“連”係 · 二層
居住空間中最重要的住的部分,和與住本身有關聯的內容都在這一層空間建立“連”係,讓空間上的關係影響情感上的。
空間上的“連”係用了三種方式:直接、間接和局部。
錯層處的空間“連”係是直接的,橫向上原本錯層處的內部隔牆拆除,與外部空間連起來。自然的高差置入合適的功能內容,兒童活動區和書房,空間使用就多了如坐、席地而坐,臥、爬、藏等多種可能的行為動作。
兒童活動空間,利用錯層高差布置了書架及儲藏櫃,書架擱板同時用作爬梯踏步,功能、趣味、裝飾都在一處完成。
隔著樓梯間的另一側是“連”起來的起居和書房,沙發、吧台、書桌、榻榻米,讀書姿勢隨意選擇。
縱向上保留錯層處建築坡屋頂的空間特點,並在書房和兒童活動區的坡頂塗刷不同顏色的彩色塗料,結合頂部嵌入的柔和光源,高空間就能兼顧獨特氣質和舒適感。
局部的“連”係方式也選擇在錯層處的立麵上,在與頂層閣樓的隔牆上開透視方洞作觀察孔,頂層閣樓空間也就能接觸上了。
主臥室與兒童臥室是通過合並原有的兩個獨立衛生間間接“連”係起來的。
合並後的衛生間使用更合理的同時也間接擴大了兩個臥室的麵積,一個衛生間做到了可連通兩個臥室使用,也可分別關起門來單獨使用,互相尊重同時保留親密可能。
獨享 · 閣樓
閣樓是留給孩子的,應該是一種共識。特別的空間形式,天窗,再加上喜歡的玩具場景,可能產生更多的想象,通常孩子會喜歡。
由於建築屋頂形式影響,多角度坡頂彙合相交一處,造成閣樓立麵形狀豐富。空間上按照坡屋頂的走向在隔牆上開大尺寸窗洞,盡量開放的兩個閣樓也保留了獨立和差異。材料上,地麵留給孩子,牆麵和不同角度坡頂都分別塗刷不同顏色的塗料,混淆頂麵和牆麵的存在,讓孩子在單純空間中肆意想象。
居住空間本質上是為了居住,舒適的居住空間才真正能影響居住者日常生活的基本幸福。
希望每個人都能發現真正適合自己的居住“舒適”。
主要項目信息
項目類型:住宅別墅室內設計
項目地址:北京順義
麵積:635平方米
建成時間:2019年
設計單位:野境設計工作室
攝影:OEO、業主、孟超






































評論(2)
窺視欲
滿足家庭成員間間的窺視欲