在大阪一個安靜的住宅區中,SAI Studio一個年輕家庭完成了一個住宅項目,占地5.6米x23.7平方米。客戶要求一個能讓他們感到“綠色”的空間,建築師將其詮釋為與自然共存的簡單行為:在樹下打盹,種花,或站在微風中。
SAI Studio have completed a home for a young family in Yao, Japan, on a narrow 5.6m x 23.7 plot in a quiet and residential area of Osaka. The clients requested a space where they could feel ‘green’, with the architects interpreting this as simple acts of being with nature; taking a nap under a tree, planting a flower, or standing in a breeze.
SAI Studio表示:“一個感覺綠色的房子,不是一個可以從任何地方看到綠色的房子,而是居民積極利用外部空間並與綠色一起成長的家。”
“A home that feels green is not a home where you can see the green from anywhere, but a home where the residents actively use the external space and grow together with the green,” says SAI Studio.
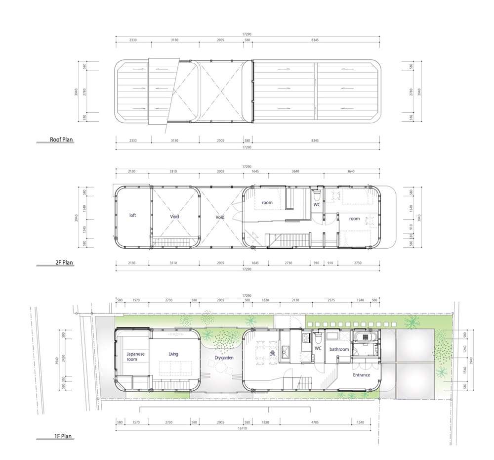
為了在有限的空間內創造室內外生活的感覺,建築師將住宅分為南北兩部分,中間是通高的庭院,由玻璃圍合。盡管在自然光線和帶有樹木的小型凹入礫石坑中都充滿了野外的感覺,但在庭院上放置屋頂意味著它在任何天氣下都仍可以用作房間。 SAI將庭院稱為“枯花園”,這是居住家庭的多功能空間。
In order to create a sense of indoor-outdoor living with limited space, the architects split the house into a north and south building with a full-height courtyard in between, enclosed by glass. Placing a roof over the courtyard meant it could still be utilized as a room in any weather, though natural light and a small indented gravel pit containing a tree give the illusion of being outside. SAI refer to the courtyard as a ‘dry garden’, multi-functional space for the resident family.
大開口和高窗戶也有助於為狹長的室內帶來自然光線和通風。庭院位於客廳和餐廳之間,適合日常使用,使其成為住宅的中心。房子向上建造超過兩層,以進一步最大化空間,臥室在上層。
Large openings and tall windows also help in bringing natural light and ventilation through the long and narrow interior. Geared for daily use, the courtyard is placed strategically between the living and dining rooms, making it the centre of the home. The house is built upwards over two floors to further maximize space, with bedrooms on the upper floor.
建築師說:“該設計希望即使在有限的區域內,枯花園也能讓居民花不同的時間,創造一個空間,每個場景都能以密集和多樣化的方式旋轉起來。”
“This plan hopes that even in a limited area, the dry garden will allow the residents to spend a variety of time and create a space where each scene can be spun up in a dense and diverse manner,” said the architects.
極簡主義家居堅持采用淺色木材,經打磨的混凝土和波紋金屬製成的材料調色板,具有禪意。彎曲的立麵增強了聖所的內涵,居民被包圍在其中。
The minimalist home sticks to a material palette of pale timber, rendered concrete, and corrugated metal, encompassing a Zen feel. Curved facades enhance connotations of a sanctuary, with the residents enveloped within.
∇ 平麵圖
∇ 剖麵圖
主要項目信息
項目名稱:MELT住宅
項目位置:日本大阪
項目類型:住宅空間
設計公司:SAI STUDIO
攝影:Norihito Yamauchi
























