全球設計風向感謝來自 再建築事務所 的餐飲空間(壽司店)項目案例分享:
「大虎壽司」—— 回轉壽司類新品牌。品牌的主理人是潮流愛好者,以潮流的視角和對美食文化的執著,重新定義消費者對傳統回轉壽司古板的印象。
∇ 店鋪外觀,由繁入簡的空間。希望顧客能專注的感受食物原本的溫暖和美味

「大虎壽司」——定位做當下年輕人喜歡的潮流回轉壽司品牌。
品牌的靈感來源於日本潮流藝術家村上隆的太陽花,以巨大的”虎頭“和連續波動的”迷彩虎紋“與當代年輕人建立第一聯接。
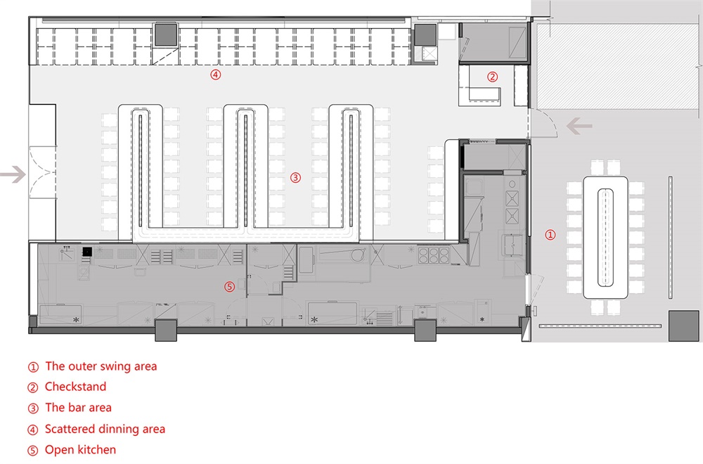
潮流的初衷是對文化的尊重和創新。設計上提出“超級回轉壽司”的概念,將高級日料的手握壽司和回轉壽司結合。 回轉壽司台連通明檔廚房打造成整個空間的視覺中心,所有的壽司製作過程,從新鮮食材的處理,壽司米飯的攪拌降溫、保溫處理到師傅的現場捏製,再傳遞到顧客的麵前。
「每一貫都手握」 傳遞壽司最原本的精神,期望將最新鮮高品質的漁獲食材以溫潤的狀態呈現給更多的消費者。
完整項目信息
項目名稱:大虎壽司
空間設計單位:再建築事務所
品牌合作單位:廣州大茶飯平麵設計有限公司
公司網站:http://zaijianzhu.com/
聯係郵箱:a@www.online4teile.com
項目設計 & 完成年份:2019.05-2019.11
主創及設計團隊:趙亞明,任熠、孟偉
項目地址:深圳市福田區卓悅Intown二樓
建築麵積:170㎡(含外擺)
主要材料:石客照明,威廉建材,佳興廣告
施工單位:深圳市爵典建設集團有限公司-高誌標
客戶:大虎壽司
攝影版權:聶曉聰
版權聲明:本站所有文章除投稿授權發布外,其他文字內容均為原創,享有著作權保護,未經許可不得以任何形式進行轉載(包括且不限於:媒體、網站、公眾號等)。所有項目照片/設計圖形版權歸原作者所有。本站部分內容源自網絡公開資源或用戶分享,如若侵犯了原作者的合法權益,可聯係我們進行處理。



























